Найти в Дзене

Проем для лестницы на второй этаж. Как расчитать лестницу любой формы.

Здесь вы можете почитать, почему я предлагаю, именно те размеры, которые буду использовать в примерах. Для определения необходимых габаритов лестничного проема первоначально требуется произвести расчет параметров самой лестничной конструкции. Приступим. Какой бы формы не была ваша лестница, расчет количества ступеней для всех одинаков. К примеру: Чистовой пол - это пол уже с напольным покрытие (линолеум, кварц винил, керамическая плитка, паркет и т.п.) и все, что лежит под покрытием 2. Подъем для расчета количества ступеней 170 мм. (это не фактический подъем, фактический будет меньше) Для расчета примера высоту подъема беру 170 мм, так как это среднее значение между 150 и 190мм. Так при монтаже лестнице останется возможность разогнать ступени. В данном примере расчет лестницы делаю, чтобы понять, какого размера нужен проем. На стадии проектирования проема допустима погрешность от 100 до 160мм. В высоту 3000 мм можно распределить от 16 до 20 ступеней. Количество ступеней будет равно
Оглавление

Здесь вы можете почитать, почему я предлагаю, именно те размеры, которые буду использовать в примерах.

Для определения необходимых габаритов лестничного проема первоначально требуется произвести расчет параметров самой лестничной конструкции. Приступим.

1. Определяем количество ступеней для любой формы лестницы.

Какой бы формы не была ваша лестница, расчет количества ступеней для всех одинаков.

К примеру:

  1. высота от чистового пола 1 этажа до чистового пола 2 этажа = 3000мм.
Чистовой пол - это пол уже с напольным покрытие (линолеум, кварц винил, керамическая плитка, паркет и т.п.) и все, что лежит под покрытием

2. Подъем для расчета количества ступеней 170 мм. (это не фактический подъем, фактический будет меньше)

Для расчета примера высоту подъема беру 170 мм, так как это среднее значение между 150 и 190мм. Так при монтаже лестнице останется возможность разогнать ступени. В данном примере расчет лестницы делаю, чтобы понять, какого размера нужен проем.
На стадии проектирования проема допустима погрешность от 100 до 160мм.
В высоту 3000 мм можно распределить от 16 до 20 ступеней.

Количество ступеней будет равно, отношению высоты от чистового пола 1 этажа до чистового пола 2 этажа к высоте подъема: 3000мм/170мм = 17,6 штук. (18 ступеней, где 17 надо построить + 1 ступень - это пол второго этажа)

Количество ступеней должно быть целым, округляем по арифметическому правилу.

2. Определим высоту фактического подъема.

Фактически подъем равен, отношению высоты от чистового пола 1 этажа до чистового пола 2 этажа к количеству всех ступеней: (3000мм/18ступеней) = 167мм.

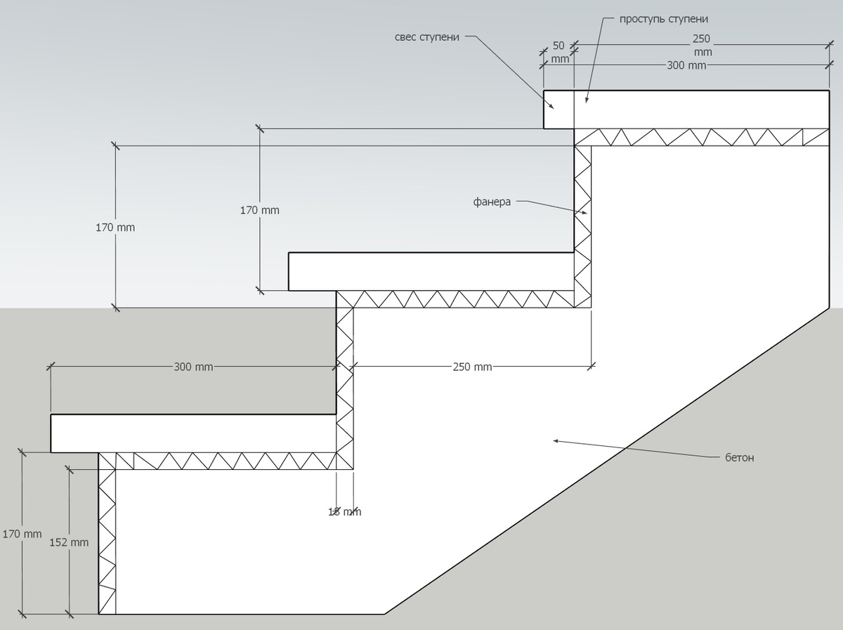
3. Определяемся с глубиной и длиной ступеней и площадки.

  • Глубина (ширина) ступени - 300мм, но в расчет берем 250мм, та как ступень имеют свес от 30мм до 50мм. т.е не берем в расчет, ту ширину, где ступень находить на другую ступень в нахлест.
  • Глубина площадки - 1000мм, в расчет берем - 950мм.
  • Длина ступени - 900 мм
  • Длина площадки - 2000 мм
Указаны минимально удобные размеры для ступеней и площадки. Увеличение длины приведет к удорожанию материала на 11-13%, а увеличение ширины - к удорожанию на 33,5%
Свес с торца ступени, придает лестнице легкости.
Свес с торца ступени, придает лестнице легкости.

Подписывайся и узнаешь, как сэкономить на лестнице! Все на конкретных цифрах и примерах!

Расчет проема для прямой лестницы. Расчет прямой лестницы.

Расчет проема для Г-образной лестницы. Расчет Г-образной лестницы.

Расчет проема для П-образной лестницы. Расчет П-образной лестницы.