Найти в Дзене
Лесстрой Портал

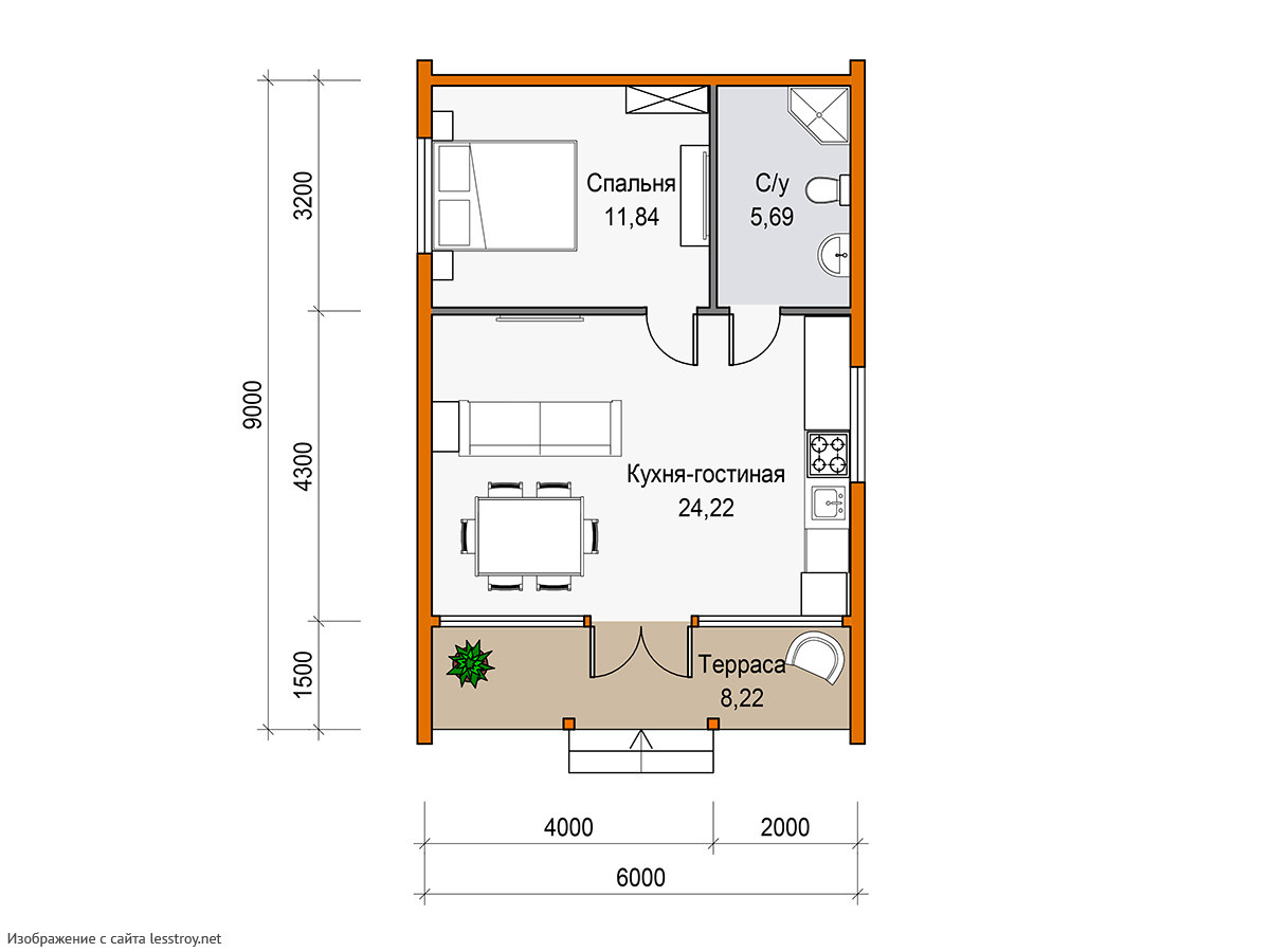
Каркасно-щитовой дом "Барн50" от 1 588 000 рублей

Дом площадью застройки 6×9м, общей площадью 50м2 и стоимостью от 1 588 000 рублей. От нашего подрядчика RealHaus

Ссылка на проект: https://lesstroy.net/user/36477/project/77908/

-2

Описание проекта

"Тепловой контур"
Каркас
1 588 000 ₽

- Монтаж забивных свай 150х150х3000* мм.

- Монтаж каркаса дома из пиломатериала камерной сушки (Влажность не более 22%), в ассортименте
- Утепление перекрытий минватой RockWool LB 200 мм.
- Утепление внешних стен минватой RockWool LB 150 мм.
- Звукоизоляция перегородок минватой RockWool LB 100 мм.
- Укладка пароизоляции Изоспан FD
- Укладка ветрозащиты Изоспан
- Укладка гидроизоляции Изоспан AQ

- Монтаж стропильной системы из доски 45х190 мм.
- Укладка пароизоляции Изоспан FD
- Утепление минватой RockWool LB 200 мм.
- Монтаж контрбруса 40х50 мм.
- Укладка гидроизоляции Изоспан AQ
- Монтаж обрешетки 25х150 мм.
- Монтаж Кликфальца с комплектующими

- Монтаж окон ПВХ двухкамерный стеклопакет, белые
- Монтаж входных дверей, металл с терморазрывом
- Монтаж вентфасада под имитацию бруса сорта АВ, без покраски
- Монтаж вентфасада под Кликфальц

- Проектная документация
- Доставка материала до объекта
- Контроль строительства всех этапов работ
- Уборка территории после выполнения всех работ

"Под ключ"
Каркас
1 996 000 ₽

- Монтаж забивных свай 150х150х3000* мм.

- Монтаж каркаса дома из пиломатериала камерной сушки (Влажность не более 22%), в ассортименте
- Утепление перекрытий минватой RockWool LB 200 мм.
- Утепление внешних стен минватой RockWool LB 150 мм.
- Звукоизоляция перегородок минватой RockWool LB 100 мм.
- Укладка пароизоляции Изоспан FD
- Укладка ветрозащиты Изоспан
- Укладка гидроизоляции Изоспан AQ

- Монтаж стропильной системы из доски 45х190 мм.
- Укладка пароизоляции Изоспан FD
- Утепление минватой RockWool LB 200 мм.
- Монтаж контрбруса 40х50 мм.
- Укладка гидроизоляции Изоспан AQ
- Монтаж обрешетки 25х150 мм.
- Монтаж Кликфальца с комплектующими

- Монтаж окон ПВХ двухкамерный стеклопакет, белые
- Монтаж входных дверей, металл с терморазрывом
- Монтаж вентфасада под имитацию бруса сорта АВ, без покраски
- Монтаж вентфасада под Кликфальц

- Монтаж имитации бруса на внутренние стены и потолок, без покраски
- Монтаж половой доски, без покраски
- Монтаж террасной доски, без покраски

- Проектная документация
- Доставка материала до объекта
- Контроль строительства всех этапов работ
- Уборка территории после выполнения всех работ