Добавить в корзинуПозвонить
Найти в Дзене

Очень быстрые домики из газобетона - коробка за 3 недели

Я поражаюсь нашим экономическим властям, установившим такой безумный курс рубля и безумные банковские проценты. (окончил Экономфак МГУ и работал в Госплане СССР, и кое что в этом понимаю).
В этих условиях хочется строить домики небольшие и ОЧЕНЬ быстро - кредиты брать бессмысленно. Если не хватило денег закончить стройку сразу, то надо остановиться, доработать денег и двигаться дальше.
Как вы наверное поняли, сейчас я строю преимущественно из газосиликата, хотя и из деревянного каркаса тоже могу, но не хочу - там очень много строительных рисков, а экономия несущественная. В конце прошлого года у меня было два "рекордных" и замечательных объектика. Они оба были небольшими, и там самыми замечательными были сроки - домик (по сути хозблок) 6*7 построен был за 3 (!!!) недели. Это с фундаментом, стенами, крышей и кровлей из металлочерепицы. Утепления чердачного не было (оно там заняло бы 1-2 дня), но зато был немаленький пандус для техники - 6*3 м. Мне это кажется замечательн

Внешний вил - фото хозяйки
Внешний вил - фото хозяйки

Я поражаюсь нашим экономическим властям, установившим такой безумный курс рубля и безумные банковские проценты. (окончил Экономфак МГУ и работал в Госплане СССР, и кое что в этом понимаю).

В этих условиях хочется строить домики небольшие и ОЧЕНЬ быстро - кредиты брать бессмысленно. Если не хватило денег закончить стройку сразу, то надо остановиться, доработать денег и двигаться дальше.

Как вы наверное поняли, сейчас я строю преимущественно из газосиликата, хотя и из деревянного каркаса тоже могу, но не хочу - там очень много строительных рисков, а экономия несущественная. В конце прошлого года у меня было два "рекордных" и замечательных объектика. Они оба были небольшими, и там самыми замечательными были сроки - домик (по сути хозблок) 6*7 построен был за 3 (!!!) недели. Это с фундаментом, стенами, крышей и кровлей из металлочерепицы. Утепления чердачного не было (оно там заняло бы 1-2 дня), но зато был немаленький пандус для техники - 6*3 м.

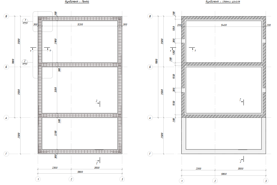
План фундамента
План фундамента

Мне это кажется замечательным событием.

Ясно, что, например, такой домик будет не сильно дольше.

Двухспаленный мини-дом
Двухспаленный мини-дом

Да и такой - тоже.

Трехспаленный мини-дом
Трехспаленный мини-дом



Это означает что "коробку" небольшого простого 2-3 спаленного дома можно и нужно сложить за месяц, или чуть-чуть больше! Из газобетона, с нормальным бетонным фундаментом и бетонным же перекрытием над ним, с металлической кровлей..

Канализация в цоколе и гильзы для коммуникаций не удлинят время стройки и добавят денег в смету неощутимо.

Окна и двери ставятся за один день, если их заказать заблаговременно, а заказывать можно как только бригада заехала на стройку или даже чуть раньше - как готова рабочая документация, а ставить не дожидаясь завершения этого этапа, как только есть черновая кровля.

Я с самого начала моей строительной деятельности мечтал построить много - много небольших и недорогих домиков. И это мое достижение осени прошлого года - существенный шаг к достижению этой моей мечты. Хотя с точки зрения денег большие дома строить выгоднее и удобнее - меньше суеты с переездами на площадки и их обустройством, освоения новых место..

Продолжение следует.
Для комментов предлагаю использовать мой строительный телеграмм канал - вот ссылка на канал,
https://t.me/prav_dom - вот - на публикацию про эту статью
https://t.me/prav_dom/130
- здесь, в дзене, мне проще писать, а там вам проще комментировать... И там не надо никуда подписываться, как хочет обычно дзен..
продолжение следует... Особенно пока есть время и силы..

Обязательно скоро будет про устройство таких домиков и про деньги....