Добавить в корзинуПозвонить
Найти в Дзене
Мастерская дизайнера

Функциональные зоны кухни и спортуголок в спальне: изменение планировки квартиры в жилом комплексе "Зеленый квартет"

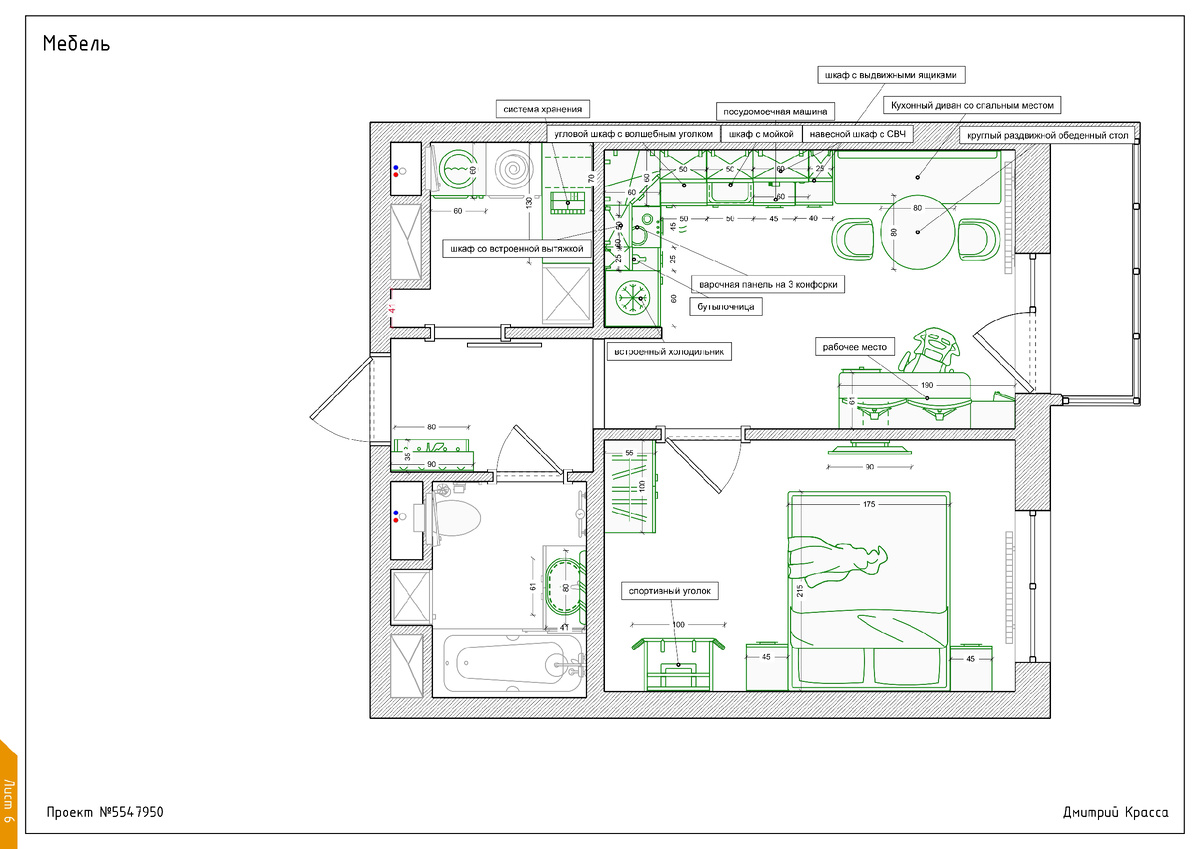
Продолжаю работать над проектом квартиры в жилом комплексе "Зелёный квартет" и вновь возвращаюсь к корректировке планировки, поскольку остаются моменты, вызывающие сомнения у клиента – молодого человека. Это правильный подход, ведь гораздо лучше проработать все детали на этапе проектирования, чем потом столкнуться с неудобствами в готовом интерьере. В обновленном плане предлагается переместить рабочее место с компьютером и двумя мониторами из спальни в кухню-гостиную, туда, где раньше находился телевизор. Рабочий уголок находится в кухне-гостиной напротив декоративной стены и удачно расположен рядом с окном, что позволяет вести трансляцию через веб-камеру на привлекательном фоне интерьера. В спальне еще есть пространство для утренних разминок и тренировок. Шведская стенка и турник удачно разместились здесь. Согласно этим изменениям обновлен план расположения розеток: Исправлено освещение в спальне: Хочу обратить внимание, что все планы реализуются в российском онлайн-редакторе Remplann

Продолжаю работать над проектом квартиры в жилом комплексе "Зелёный квартет" и вновь возвращаюсь к корректировке планировки, поскольку остаются моменты, вызывающие сомнения у клиента – молодого человека. Это правильный подход, ведь гораздо лучше проработать все детали на этапе проектирования, чем потом столкнуться с неудобствами в готовом интерьере.

В обновленном плане предлагается переместить рабочее место с компьютером и двумя мониторами из спальни в кухню-гостиную, туда, где раньше находился телевизор.

Планировка квартиры с мебелью в Remplanner
Планировка квартиры с мебелью в Remplanner

Рабочий уголок находится в кухне-гостиной напротив декоративной стены и удачно расположен рядом с окном, что позволяет вести трансляцию через веб-камеру на привлекательном фоне интерьера.

В спальне еще есть пространство для утренних разминок и тренировок. Шведская стенка и турник удачно разместились здесь.

Согласно этим изменениям обновлен план расположения розеток:

План розеток в Remplanner
План розеток в Remplanner

Исправлено освещение в спальне:

План освещения в Remplanner
План освещения в Remplanner
План управления освещением в Remplanner
План управления освещением в Remplanner

Хочу обратить внимание, что все планы реализуются в российском онлайн-редакторе Remplanner.

Обложка проекта в Remplanner
Обложка проекта в Remplanner

Все листы проекта доступны для просмотра онлайн по следующей гостевой ссылке:

Бесплатный онлайн планировщик Remplanner. Дизайн-проект квартиры своими руками

Подборка всех материалов по этому проекту здесь:

Квартира в ЖК "Зеленый квартет" | Мастерская дизайнера | Дзен

Вы можете ознакомиться с моими услугами по дизайну интерьеров, посетив мой профиль на платформе Houzz. Ссылка для перехода к моему профилю: Houzz.