Найти в Дзене
ЭТО ВАШ ИНТЕРЬЕР

Мне досталась запущенная квартира в старом фонде, где жила бабушка. Показываю, как я бюджетно обновила старенькую "двушку"

Героиня моей сегодняшней статьи стала замечательная девушка Анастасия, которая занимается флиппингом. Простыми словами — она покупает старенькие и невзрачные квартиры, делает ремонт и перепродает за более высокую цену. На этот раз ей подвернулась двухкомнатная квартира, которая находится в столетнем доме. Дом в стиле конструктивизма, был построен по индивидуальному проекту, поэтому имеет не типичную планировку. Раньше в доме было три этажа, но в дальнейшем надстроили еще два этажа сверху (квартира находится на четвертом этаже). Бывшая хозяйка квартиры — милая пожилая женщина Лидия. Она прожила здесь почти всю свою жизнь и вот недавно решилась на продажу своего жилища (она переехала к детям). Основной целью было поддержание духа исторического здания и создание современного, визуально более свободного пространства. Для этого хозяйка квартиры использовала креативные и бюджетные решения, чтобы создать интерьер, который будет вызывать яркие эмоции и станет источником вдохновения для твор
Оглавление

Героиня моей сегодняшней статьи стала замечательная девушка Анастасия, которая занимается флиппингом. Простыми словами — она покупает старенькие и невзрачные квартиры, делает ремонт и перепродает за более высокую цену.

На этот раз ей подвернулась двухкомнатная квартира, которая находится в столетнем доме. Дом в стиле конструктивизма, был построен по индивидуальному проекту, поэтому имеет не типичную планировку. Раньше в доме было три этажа, но в дальнейшем надстроили еще два этажа сверху (квартира находится на четвертом этаже).

Бывшая хозяйка квартиры — милая пожилая женщина Лидия. Она прожила здесь почти всю свою жизнь и вот недавно решилась на продажу своего жилища (она переехала к детям).

Проект

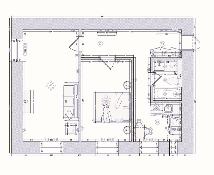
  • Местоположение: Москва
  • Площадь квартиры: 47 квадратных метров
  • Владельцы: девушка (квартира будет перепродаваться)
  • Бюджет: 2 000 000 рублей
-2

Основной целью было поддержание духа исторического здания и создание современного, визуально более свободного пространства.

Для этого хозяйка квартиры использовала креативные и бюджетные решения, чтобы создать интерьер, который будет вызывать яркие эмоции и станет источником вдохновения для творчества и отдыха.

Прихожая

Пол во входной зоне выложен керамогранитом, который переходит в кухню. Одну стену решили сделать акцентной и полностью очистили до кирпича. Старую кирпичную кладку, которой уже более ста лет, не стали реставрировать, а лишь слегка обновили и покрыли лаком. Остальные стены покрасили в белый цвет.

-4

У входа установили открытые крючки для одежды, а рядом с ними — небольшую систему хранения, которую спрятали за текстильной перегородкой.

Кухня

При входе на кухню разместилась уютная столовая зона с небольшим столиком, основание которого выполнено из чугуна, а столешница — из мрамора. Раскладной стул бы приобретён в Икее уже давно, а рядом с ним установлен винтажный стул из дуба.

-6

Слева от входа в кухню расположен бюджетный гарнитур с классическими белыми фасадами. Рабочую столешницу и фартук изготовили своими руками знакомые мастера, используя ОСБ-панели и керамическую мозаику.

-7
Кривое отверстие возле газовой трубы появилось здесь случайно. Изначально мастер практически полностью выровнял стену и зашил трубу, но когда пришло время подключать газ, газовщик потребовал полностью освободить её.
Хозяйка предложила мастеру взять перфоратор и разбить стену. После этих действий она решила покрасить получившееся отверстие в белый цвет и оставить его как своеобразную «фишку» интерьера.
-8

Чтобы не дробить рабочую зону — столешницу продлили до подоконника. Холодильника здесь нет, но для него было предусмотрено место слева от раковины.

Гостиная

Самую большую комнату в квартире отдали под гостиную. Одну стену здесь так же как и в прихожей оставили в родном кирпиче. Напольное покрытие здесь родное и ему уже сто лет. Это массив дерева, правда какого именно новая хозяйка не смогла выяснить, но толщина доски составляет 6 сантиметров.

-10
Правда напольное покрытие пришлось полностью отреставрировать, и это было очень трудоёмким процессом, над которым работали два мастера. Также укрепили лаги.
-11

Окна были заменены на новые вместе с подоконниками. Чугунные батареи были зачищены и покрашены. В этой комнате организовали небольшую зону отдыха с зелёной банкеткой, напротив которой появилась винтажная тумба с большой картиной (эту картину написала подруга нашей героини).

-12

Остальное наполнение хозяйка оставила на усмотрение будущих покупателей, чтобы они могли создать атмосферу по своему вкусу.

Спальня

Спальню было решено сделать максимально светлой, поэтому потолок и стены окрасили в белый цвет. Что касается мебели, то хозяйка ограничилась лишь основными предметами: двуспальной кроватью, парой винтажных стульев и зеркалом.

-14

Для организации хранения здесь есть место, но хозяйка решила оставить покупку шкафа и комода будущим жильцам.

Ванная комната

В результате перепланировки, ванную комнату удалось немного увеличить. На полу использовали керамогранит, а стены оформили водостойкой краской и керамической мозаикой. Под раковиной сделали столешницу, под которой можно будет установить стиральную машинку.

Если вам понравилась статья, то не забудьте поставить лайк и подписаться, чтобы не пропустить новый материал!

Так же пишите в комментариях, что вам понравилось в этом проекте, а что вызывает сомнения.