Найти в Дзене
ДОМОСБОР

Жена в восторге, дети счастливы, хороший сон, а машину больше не царапают. Дом из клееного бруса КБ-110

Вы решили, что квартира больше не отвечает вашим требованиям комфорта? Кажется, пора выйти на новый уровень жизни — построить загородный дом из клееного бруса, который подарит вам пространство, уют и гармонию с природой. Проект дома из клееного бруса КБ-110 — это именно то, что нужно для комфортной и размеренной жизни за городом. Этот одноэтажный дом создан для семьи, которая ценит функциональность и рациональное использование пространстве. В планировке дома нет ничего лишнего. На общей площади 92 м2 расположено все необходимое для комфортного проживания за городом: Дом выполнен в скандинавском стиле с лаконичным прямоугольным дизайном и сложной крышей. Благодаря технологии строительства из клееного бруса, дом сочетает экологичность и долговечность, а деревянные ламели придают интерьеру уют и тепло. Выбирая дом из клееного бруса КБ-110, вы получаете идеальное сочетание стиля, комфорта и практичности. Воплощайте свою мечту о жизни за городом уже сегодня!
Оглавление

Вы решили, что квартира больше не отвечает вашим требованиям комфорта? Кажется, пора выйти на новый уровень жизни — построить загородный дом из клееного бруса, который подарит вам пространство, уют и гармонию с природой.

Проект дома из клееного бруса КБ-110 — это именно то, что нужно для комфортной и размеренной жизни за городом.

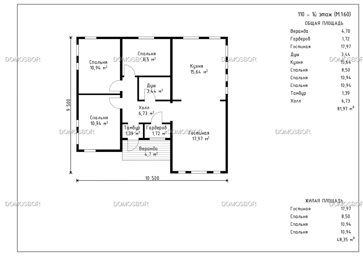
Идеальная планировка для семейного уюта

Этот одноэтажный дом создан для семьи, которая ценит функциональность и рациональное использование пространстве. В планировке дома нет ничего лишнего. На общей площади 92 м2 расположено все необходимое для комфортного проживания за городом:

  • 3 спальни — достаточно пространства для родителей, детей и даже гостей.
  • Просторная гостиная площадью 18 м2, которая станет сердцем вашего дома.
  • Кухня площадью 16 м2, где готовить — одно удовольствие.
  • Уютная гардеробная для хранения вещей.
  • Функциональный тамбур, который сохранит тепло зимой.
  • Просторная веранда — идеальное место для утреннего кофе или уютного вечера с родными и друзьями.

Дом выполнен в скандинавском стиле с лаконичным прямоугольным дизайном и сложной крышей. Благодаря технологии строительства из клееного бруса, дом сочетает экологичность и долговечность, а деревянные ламели придают интерьеру уют и тепло.

-2

Характеристики дома

  • Общая площадь: 92 м2
  • Полезная площадь: 82 м2
  • Жилая площадь: 49 м2
  • Габариты строения: 10 х 11
  • Этажность: 1 этаж
  • Кол-во спален: 3 спальни
  • Кол-во санузлов: 1

Выбирая дом из клееного бруса КБ-110, вы получаете идеальное сочетание стиля, комфорта и практичности.

Воплощайте свою мечту о жизни за городом уже сегодня!