Добавить в корзинуПозвонить
Найти в Дзене

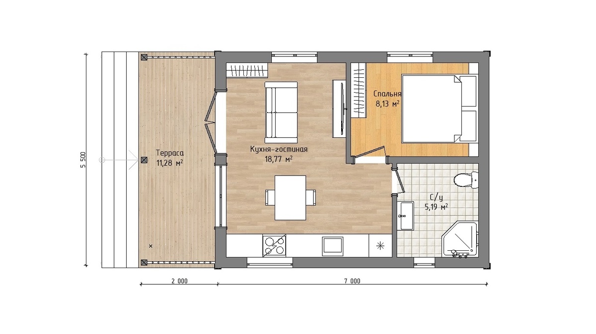
Небольшой одноэтажный дом в стиле Барнхаус 5,5х7 м.

Площадь помещений 32,08 м², терраса 11,3 м².
Каркас из доски сечением 100х50, 150х50, 200х50 мм.
Фундамент свайный.
Регион строительства Омская область.
В состав проекта входит:
- Эскизный проект;
- Конструктивный раздел;
- Спецификация материалов;
- Схема раскроя пиломатериала.
Полный эскизный проект можно посмотреть по ссылке
disk.yandex.ru/i/m88gpO3L... #купитьпроектдома #заказатьпроектдома #проекткаркасногодома #проектдома #каркасныйдом #проекткаркас #проектдомамосква #проектзагородногодома

Площадь помещений 32,08 м², терраса 11,3 м².
Каркас из доски сечением 100х50, 150х50, 200х50 мм.
Фундамент свайный.
Регион строительства Омская область.
В состав проекта входит:
- Эскизный проект;
- Конструктивный раздел;
- Спецификация материалов;
- Схема раскроя пиломатериала.
Полный эскизный проект можно посмотреть по ссылке
disk.yandex.ru/i/m88gpO3L...

#купитьпроектдома #заказатьпроектдома #проекткаркасногодома #проектдома #каркасныйдом #проекткаркас #проектдомамосква #проектзагородногодома