Найти в Дзене

Как в небольшой квартире создать дополнительную спальню? 🧐

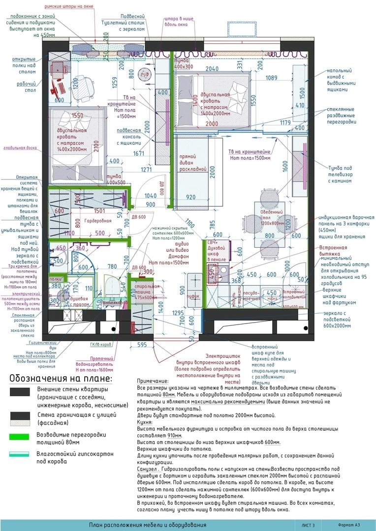
Когда к нам обратилась владелица квартиры запрос был достаточно понятный: «Нужно грамотное зонирование для того, чтобы вместить всё необходимое. И, при этом, сохранить «воздух» в интерьере».
Когда к нам обратилась владелица квартиры запрос был достаточно понятный: «Нужно грамотное зонирование для того, чтобы вместить всё необходимое. И, при этом, сохранить «воздух» в интерьере».
На данном объекте мы отделили спальную зону от кухни-гостиной с помощью декоратной сдвижной перегородки. Это позволило нам создать ещё одну полноценную зону для сна и отдыха.
На данном объекте мы отделили спальную зону от кухни-гостиной с помощью декоратной сдвижной перегородки. Это позволило нам создать ещё одну полноценную зону для сна и отдыха.
Светлые полупрозрачные материалы перегородки сохранить естественное освещение, не утяжелили пространство и идеально вписались в светлый, уютный интерьер квартиры.
Светлые полупрозрачные материалы перегородки сохранить естественное освещение, не утяжелили пространство и идеально вписались в светлый, уютный интерьер квартиры.
Как вам такое решение?
Как вам такое решение?
Выполняем комплексный ремонт квартир в Москве и Московской области!
Выполняем комплексный ремонт квартир в Москве и Московской области!