Добавить в корзинуПозвонить
Найти в Дзене

Ремонт без дизайнера, какие программы помогут.

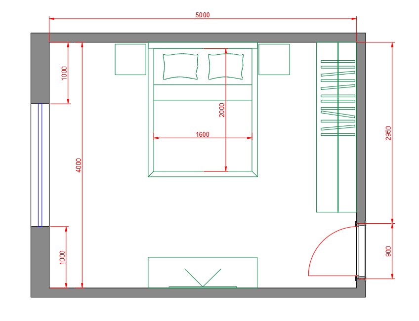
Неделю начала с темы “Сам себе дизайнер” и в прошлом посте коснулась программ, которые можно использовать самостоятельно, для планировок и визуализации интерьера. Сегодня делаю подборку этих программ, будем разбираться вместе, поскольку в них я не работаю будет любопытно размять извилины. Возьмем за основу вот такую спальню. Интуитивно понятный онлайн-сервис для создания планировки и дизайна интерьера. Позволяет работать с готовыми планами или рисовать стены самостоятельно. Есть библиотека мебели, которую можно расставлять в 3D. 📌 Плюсы: Простота, библиотека мебели. Возможность просмотра проекта в 3D. ❌ Минусы: Ограниченные возможности в выборе мебели. Невозможность рисовать свои размеры. Интерфейс на английском языке. Примитивная визуализация. Сайт: https://roomstyler.com Более продвинутый инструмент с возможностью проектирования как в 2D, так и в 3D. Позволяет детально прорабатывать интерьер, изменять текстуры, цвета и освещение. 📌 Плюсы: Большая библиотека объектов, реалистичность
Оглавление

Неделю начала с темы “Сам себе дизайнер” и в прошлом посте коснулась программ, которые можно использовать самостоятельно, для планировок и визуализации интерьера.

Сегодня делаю подборку этих программ, будем разбираться вместе, поскольку в них я не работаю будет любопытно размять извилины.

Возьмем за основу вот такую спальню.

-2

1. Программы для планировки и визуализации.

Roomstyler 3D Home Planner.

-3

Интуитивно понятный онлайн-сервис для создания планировки и дизайна интерьера. Позволяет работать с готовыми планами или рисовать стены самостоятельно. Есть библиотека мебели, которую можно расставлять в 3D.

-4

📌 Плюсы:

Простота, библиотека мебели.

Возможность просмотра проекта в 3D.

Минусы:

Ограниченные возможности в выборе мебели.

Невозможность рисовать свои размеры.

Интерфейс на английском языке.

Примитивная визуализация.

Сайт: https://roomstyler.com

Planner 5D.

-5

Более продвинутый инструмент с возможностью проектирования как в 2D, так и в 3D. Позволяет детально прорабатывать интерьер, изменять текстуры, цвета и освещение.

-6
-7

📌 Плюсы:

Большая библиотека объектов, реалистичность визуализации.

Интерфейс на русском языке.

Есть AI помощник.

Минусы: Многие элементы доступны только в платной версии.

-8

Сайт: https://planner5d.com

Homestyler.

-9

Позволяет загрузить свой план помещения или нарисовать его с нуля, а затем наполнить интерьер мебелью и декором из встроенной библиотеки. Есть даже AI-функция для просмотра проекта в реальном пространстве.

📌 Плюсы:

-10
-11

Хорошая 3D-визуализация.

Большая библиотека материалов, мебели, декора, освещения и текстур.

Настраиваемые размеры.

Возможность поработать с искусственным интеллектом.

Русский интерфейс.

Минусы: некоторые функции платные.

Сайт: https://www.homestyler.com

Этой программой я впечатлена возьму ее на заметку, для быстрых скетчей.

Remplanner.

-12

Популярный сервис для расчета ремонта и планирования интерьера. Позволяет не только создать планировку, но и сразу прикинуть смету.

📌 Плюсы:

-13

Расчет сметы и электрики.

Расчет метража и развертка стен.

Русский интерфейс.

Минусы:

-14

Практически весь нужный инструментарий, чтобы просчитать смету или посмотреть 3д визуализацию платный.

Требует времени на освоение.

Сайт: https://remplanner.ru

2. AI (искуственный интеллект) для идей и подбора вариантов.

RoomGPT.

-15

Позволяет загрузить фото комнаты и получить идеи по её редизайну с помощью ИИ.

📌 Плюсы: быстрое генерирование идей, необычные решения.

Минусы: не всегда реалистичный результат.

Сайт: https://roomgpt.io

PromeAi.

-16

Можно загрузить фото комнаты или эскиза, задать нужный стиль и получить еще идеи для дизайна с помощью ИИ.

📌 Плюсы:

Большой выбор стилей от минимализма до бохо.

Условно бесплатный.

Быстрое генерирование идей.

Русский язык присутствует.

Минусы:

Не всегда реалистичный результат, особенно санузлов, чем ии сильно грешит.

Предоставленных монет не всегда хватает, чтобы наиграться.

promeai.pro

Подбор цветовых решений.

Coolors.

-17

Автоматически генерирует цветовые палитры и помогает подобрать гармоничное сочетание оттенков для интерьера.

📌 Плюсы: Быстрое создание палитры, удобный интерфейс.

Минусы:

Нельзя сразу применить палитру к интерьеру.

Английский интерфейс

Сайт: https://coolors.co

ColorSnap Visualizer (Sherwin-Williams).

-18

Позволяет загрузить фото помещения и попробовать разные цвета стен.

📌 Плюсы: Удобство, реалистичное отображение оттенков.

Минусы:

Привязанность к палитре конкретного производителя.

Английский интерфейс

Сайт: https://www.sherwin-williams.com/visualizer

Это всего лишь небольшая часть программ, которые есть сегодня на рынке. Я выбрала самые простые и удобные для освоения. Пробуйте, делитесь результатами — вдруг в вас скрывается талантливый дизайнер!

С моими работами и стоимостью можно ознакомиться тут 👇

Design OlgaMi