Добавить в корзинуПозвонить
Найти в Дзене

Сочные цвета и выразительные фактуры в квартире 100 м2

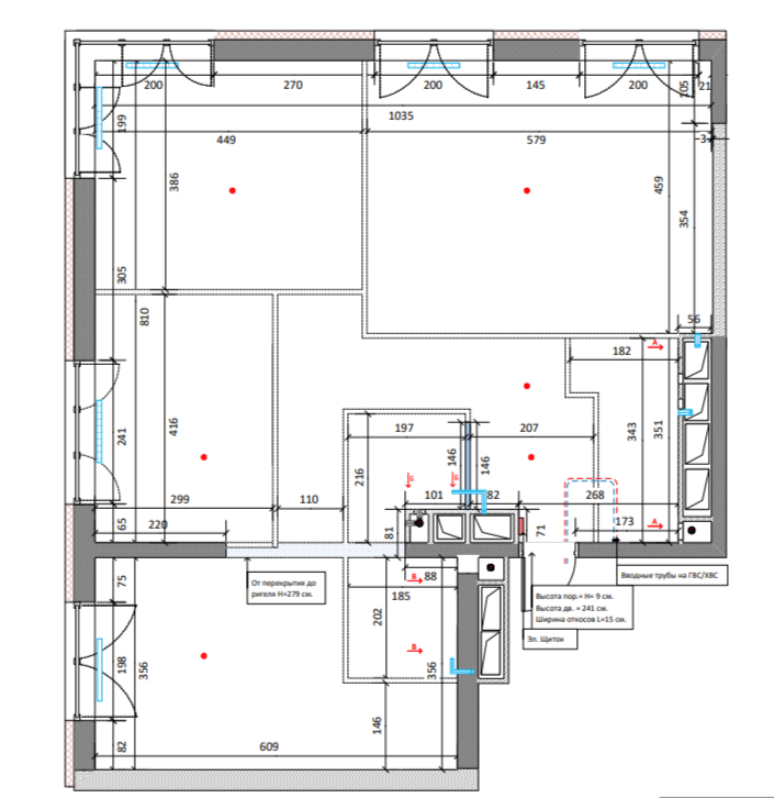
Итак, новый проект понравится тем, кто ценит в интерьере индивидуальность и харизматичность. Нейтральность не про эту квартиру! Площадь 3-комнатной квартиры почти 100 м2, в ней объединенная кухня-гостиная и три комнаты: кабинет, мастер-спальня и будущая детская, а ныне гостевая. Главный минус планировки, как часто бывает, это длинный, узкий, поворотный коридор. Поскольку в новостройках перегородки обычно возведены чисто символически – один ряд блоков – произвести их демонтаж и изменить некоторые параметры не составляет труда. Что мы получили после небольшой перепланировки? Достаточно просторную закрытую прихожую с достаточной площадью хранения. Сократили протяженность коридора и расширили оставшийся, плюс получили возможность разместить встроенные шкафы общей протяженностью примерно 7 метров. Так выглядит наша ниша в прихожей – она не проходная, поэтому нет никаких проблем с тем, чтобы пройти пару шагов в сторону от входной двери, переобуться и снять верхнюю одежду. Входная дверь и сос

Итак, новый проект понравится тем, кто ценит в интерьере индивидуальность и харизматичность. Нейтральность не про эту квартиру!

Портфолио Remplanner
Портфолио Remplanner

Площадь 3-комнатной квартиры почти 100 м2, в ней объединенная кухня-гостиная и три комнаты: кабинет, мастер-спальня и будущая детская, а ныне гостевая. Главный минус планировки, как часто бывает, это длинный, узкий, поворотный коридор.

Портфолио Remplanner
Портфолио Remplanner

Поскольку в новостройках перегородки обычно возведены чисто символически – один ряд блоков – произвести их демонтаж и изменить некоторые параметры не составляет труда.

Портфолио Remplanner
Портфолио Remplanner

Что мы получили после небольшой перепланировки? Достаточно просторную закрытую прихожую с достаточной площадью хранения. Сократили протяженность коридора и расширили оставшийся, плюс получили возможность разместить встроенные шкафы общей протяженностью примерно 7 метров.

Портфолио Remplanner
Портфолио Remplanner

Так выглядит наша ниша в прихожей – она не проходная, поэтому нет никаких проблем с тем, чтобы пройти пару шагов в сторону от входной двери, переобуться и снять верхнюю одежду.

Портфолио Remplanner
Портфолио Remplanner

Входная дверь и соседняя стена с дверью в постирочную оформлены в едином стиле и выглядят очень эффектно. МДФ-панели гладкие и с фрезеровкой, дополненные металлическими вставками золотого цвета, придают интерьеру вид роскошный и экстравагантный. Как и глубокий винный цвет, использованный в оформлении прихожей.

Портфолио Remplanner
Портфолио Remplanner

Открытая вешалка из мягких панелей в темно-бирюзовом велюре и зеркало от пола до потолка стали финальными штрихами в этом пространстве. Впрочем, наши встроенные шкафы тоже выглядят очень эффектно!

Портфолио Remplanner
Портфолио Remplanner

Фактурные фасады теплого кремово-бежевого оттенка идеально сочетаются с искусственной скалой в зоне гостиной, которая видна из прихожей, так как мы присоединили к ней площадь бывшего коридора.

Портфолио Remplanner
Портфолио Remplanner

Шкафы поворачивают налево и потом еще раз налево, окружая с трех сторон, расположенную в центре квартиры ванную комнату.

Портфолио Remplanner
Портфолио Remplanner

Фасады шкафов с эффектом декоративной штукатурки смотрятся почти как ровные, непрерывные плоскости стен, но при этом скрывают функциональное наполнение квартиры. При такой планировке подобное решение всегда будет выигрышным, даже если материал фасадов будет не столь эффектным.

Портфолио Remplanner
Портфолио Remplanner

Вся светлая составляющая нашей гостиной – фактурная. От фасадов и скалу в ТВ-зоне, до обивки дивана – это белая ткань букле. Второй цвет этого пространства – темно-изумрудный, глубокий и завораживающий цвет.

Портфолио Remplanner
Портфолио Remplanner

В сочетании с блеском золота этот цвет смотрится потрясающе! Обратите внимание на проработку деталей: подушки на белоснежном диване с принтами в выбранных оттенках изумрудного и золотого. Такие мелочи в итоге и делают интерьер целостным и притягательным.

Портфолио Remplanner
Портфолио Remplanner

В кухне повторяются те же цвета, но, как и большая часть стен и мебели в этой квартире, они не плоские, а фактурные! Гладкие только нижние фасады, оба яруса навесных – МДФ с эмалью и текстурой дерева, а также стеклянные с белыми алюминиевыми рамками – рельефные.

Портфолио Remplanner
Портфолио Remplanner

Яркой, но при этом не вычурной деталью, стало панно в зоне столовой – золотые птицы на зеленом фоне смотрятся торжественно и изысканно. Впрочем, в остальных помещениях, тоже есть на что посмотреть!

Портфолио Remplanner
Портфолио Remplanner

Мастер-спальня – это сочетание 3D-рельефа в изголовье и пронзительного синего цвета. В сочетании с ярким, винным изголовьем кровати и ярким принтом на филенчатых фасадах шкафа, выглядит впечатляюще.

Портфолио Remplanner
Портфолио Remplanner

Вторая половина комнаты уравновешивает это буйство красок и фактур. Кремовые стены с декоративной штукатуркой и белая мебель вдоль всей стены смотрятся сдержанно и лаконично.

Как и в гостиной, здесь тоже многое решают детали, например, прикроватная тумба с резным фасадом и шторы с градиентом, которые словно подсвечены синим светом.

Портфолио Remplanner
Портфолио Remplanner

Белая дверь ведет в гардеробную, через которую можно попасть в ванную комнату – вход за зеркальной дверью. Это небольшое пространство площадью 2,6 м2, поэтому важно было продумать наполнение.

Портфолио Remplanner
Портфолио Remplanner

Г-образное хранение, где по длинной стене расположены штанги и полки, а по короткой – выдвижные ящики и полки в верхней части.

Спрятанная за откатной зеркальной дверью ванная комната разделена на две части – в первой расположены умывальник и подвесная чаша унитаза. Далее идут душевая и угловая ванна.

Портфолио Remplanner
Портфолио Remplanner

Эта ванная комната поражает цветовыми решениями, потому что глубокие, сочные цвета покрывают не только стены, но и потолок. В отделке сочетаются три вида плитки: винная, сапфировая и бронзовая мозаика, а также краска двух цветов, использованных и в других помещениях – синего и винного.

Портфолио Remplanner
Портфолио Remplanner

Такое внимание к цветам и деталям нужно в тех случаях, когда ванная комната не просто место гигиенических процедур. Созданная атмосфера будуара и ярких, обволакивающих цветов – идеальная для тех, кто любит понежиться в горячей, пенной ванне, наслаждаясь приглушенным светом, игрой пламени свечей на кафеле и ароматом эфирных масел.

Портфолио Remplanner
Портфолио Remplanner

Вторая ванная комната более традиционная во всех отношениях. Плитка выбрана с фактурой, похожей на ту, что вы видели на фасадах шкафов, которые обрамляют вход сюда.

Портфолио Remplanner
Портфолио Remplanner

Акцентная плитка в голубых тонах покрывает пол и стену вдоль ванны. Фасады шкафчика над инсталляцией с унитазом выполнены в том же стиле, что и оформление дверей и стены в коридоре.

Портфолио Remplanner
Портфолио Remplanner

Мебель здесь встроенная, на заказ, максимально вместительная. Из особенностей также можно отметить витраж с подсветкой, расположенный над встроенными полками в торце ванны.

Портфолио Remplanner
Портфолио Remplanner

Третий санузел был уменьшен и превращен в постирочную, в которой, кроме этого, разместилась «лапомойка» для собаки.

Небольшое пространство в зеленых тонах и светлой плитке. Решение со встроенным поддоном и откидной столешницей стало идеальным для этой квартиры. С поднятой крышкой удобно мыть небольшую собаку владельцев, а когда она опущена, помещение превращается в удобный хозблок, где удобно почистить обувь, постирать тряпочки для уборки и просто разместить весь инвентарь.

Портфолио Remplanner
Портфолио Remplanner

Вторая по площади, угловая (12 м2), комната была отдана под кабинет. В ней расположено сразу два рабочих стола, для обоих супругов.

Портфолио Remplanner
Портфолио Remplanner

Мебель почти классическая и состоит из двух больших книжных шкафов и письменных столов. Вместо подоконника организовано широкое мягкое сидение. Цвета здесь повторяются уже привычные – синий и винный, но к ним добавилась вставка из декоративных обоев с пёстрым рисунком в сине-золотых тонах.

Портфолио Remplanner
Портфолио Remplanner

В комнате использованы интересные светильники и фурнитура бронзового цвета. На шкафах, на столе, над столом – везде поблескивает желтый металл. Как в интерьерах, где в качестве акцента выбран черный и вся фурнитура, сантехника и аксессуары черные, в этом везде можно найти предметы золотого цвета – от прихожей и до ванной в мастер-спальне.

Портфолио Remplanner
Портфолио Remplanner

Последняя и самая маленькая комната имеет двойное назначение. В перспективе она должна стать детской, пока же служит спальней для гостей.

Портфолио Remplanner
Портфолио Remplanner

Как и все помещения квартиры, она яркая, экспрессивная и создана с вниманием к деталям. Взгляните на люстру с кисточками винного цвета и бра с синими над прикроватной тумбой!

Портфолио Remplanner
Портфолио Remplanner

Комната маленькая (чуть меньше 11 м2) и вытянутая, поэтому, чтобы немного исправить ее пропорции, одну стену занял встроенный шкаф, две другие — фотообои со сказочным лесом, дополнением для которого стала римская штора с соответствующим принтом. И вот наша прямоугольная спальня уже выглядит чуть более правильной формы.

Эта квартира имеет свой характер, она не похожа на остальные и создана такой, какой хотели видеть ее заказчики. А если вы сторонник традиционной серо-бежевой гаммы или строгой неоклассики в спокойных тонах — загляните в наше портфолио либо оставьте заявку на сайте. Мы создаем индивидуальные интерьеры с учетом ваших персональных потребностей и желаний!