Добавить в корзинуПозвонить
Найти в Дзене
Самое главное

Готовый проект каркасного дома "Семейный"

Дом по стоимости однокомнатной квартиры, который более комфортабельный для проживания семьи, в которой есть маленькие дети. Современный дизайн с панорамными окнами (видеообзор проекта): https://dzen.ru/video/watch/677a19d5f405b90b52ea378e Состав помещений: 1. Терраса 2. Тамбур 3. Коридор 4. Две спальни 5. Санузел 6. Гостиная 7. Кухня 8. Есть возможность организации спальных антресолей для ночлега гостей. Данная планировка позволяет изменить структуру помещений внутри дома по своему усмотрению. Так, из гостиной, можно сделать студию "кухня-гостиная" а в кухне разместить третью спальню. Террасе не страшны дожди и др. осадки и она станет любимым местом провождения в кругу семьи долгими вечерами за чашкой горячего чая. Состав проекта: 1 АР - Полноценный макет здания. 2. КР - Рабочий набор чертежей (согласно СП 64.13330.2017). За исключением устройство фундамента (можно использовать ЖБ-Ленту или винтовые сваи). 3. Полный объём используемых материалов (ведомости спецификаций пиломатериалов,

Обзор АС проекта, одноэтажного каркасного дома с террасой

Дом по стоимости однокомнатной квартиры, который более комфортабельный для проживания семьи, в которой есть маленькие дети.

Современный дизайн с панорамными окнами (видеообзор проекта): https://dzen.ru/video/watch/677a19d5f405b90b52ea378e

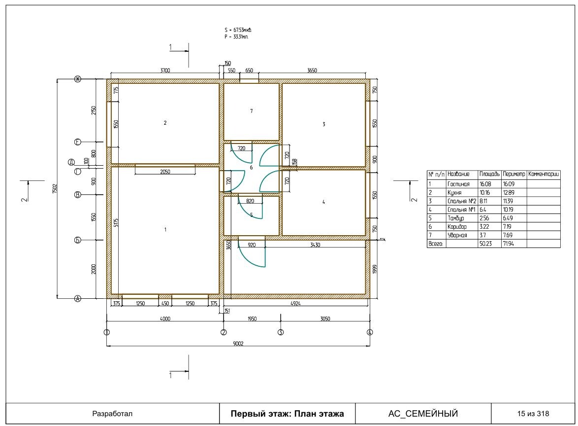
Состав помещений:

1. Терраса

2. Тамбур

3. Коридор

4. Две спальни

5. Санузел

6. Гостиная

7. Кухня

8. Есть возможность организации спальных антресолей для ночлега гостей.

Планировочное решение
Планировочное решение

Данная планировка позволяет изменить структуру помещений внутри дома по своему усмотрению. Так, из гостиной, можно сделать студию "кухня-гостиная" а в кухне разместить третью спальню.

Террасе не страшны дожди и др. осадки и она станет любимым местом провождения в кругу семьи долгими вечерами за чашкой горячего чая.

Состав проекта:

1 АР - Полноценный макет здания.

Чертёж фасада 1-1
Чертёж фасада 1-1

2. КР - Рабочий набор чертежей (согласно СП 64.13330.2017). За исключением устройство фундамента (можно использовать ЖБ-Ленту или винтовые сваи).

Чертёж внутренней перегородки
Чертёж внутренней перегородки
Чертёж стропильной системы в сборе (разворот)
Чертёж стропильной системы в сборе (разворот)

3. Полный объём используемых материалов (ведомости спецификаций пиломатериалов, площадей отделки и кровли) с учётом утепления и применение диффузионных мембран класса "А" и "В".

Получить данный проект можно перейдя по ссылке: https://digital.wildberries.ru/offer/136285