Добавить в корзинуПозвонить
Найти в Дзене

Каркасный дом БАВАРИЯ с индивидуальной доработкой для Ларисы

Вас приветствует строительная компания Мастер! Сегодня мы покажем вам каркасный дом, который построили для нашей заказчицы Ларисы. Компанию Мастер Лариса нашла в интернете. Долго присматривалась и сравнивала. После первого контакта с менеджером Ириной приехала на выставку познакомиться с нами поближе. Как говорит сама Лариса: “Качество выставочных образцов и общение моего менеджера привели меня к окончательному выбору в пользу компании “Мастер”! И я ни разу не пожалела об этом.” К строительству Лариса подошла творчески – у нее уже было представление о том, каким должен быть ее будущий дом. Чтобы все соответствовало требованиям заказчицы, она решила воспользоваться услугой индивидуального проектирования. Это уникальная возможность оптимизировать любой проект под ваши потребности. В основу был взят проект из линейки домов Бавария в размерах 8х12 метров. Так, например, мы увеличили размеры – дом Ларисы получился в размерах 8*13,2 метра общей площадью почти 152 квадрата. У Ларисы была меч

Вас приветствует строительная компания Мастер! Сегодня мы покажем вам каркасный дом, который построили для нашей заказчицы Ларисы.

Компанию Мастер Лариса нашла в интернете. Долго присматривалась и сравнивала. После первого контакта с менеджером Ириной приехала на выставку познакомиться с нами поближе. Как говорит сама Лариса: “Качество выставочных образцов и общение моего менеджера привели меня к окончательному выбору в пользу компании “Мастер”! И я ни разу не пожалела об этом.”

К строительству Лариса подошла творчески – у нее уже было представление о том, каким должен быть ее будущий дом. Чтобы все соответствовало требованиям заказчицы, она решила воспользоваться услугой индивидуального проектирования. Это уникальная возможность оптимизировать любой проект под ваши потребности.

Проект каркасного дома Бавария 8х12
Проект каркасного дома Бавария 8х12

В основу был взят проект из линейки домов Бавария в размерах 8х12 метров. Так, например, мы увеличили размеры – дом Ларисы получился в размерах 8*13,2 метра общей площадью почти 152 квадрата.

У Ларисы была мечта - огромное патио, где можно организовать зону отдыха: садовая мебель, ступени и вид в сад.

Одно из пожеланий Ларисы заключалось в том, чтобы сделать большие окна на фасаде дома открывающимися. В оригинальном проекте такой функции не предусмотрено, но мы всегда рады пойти навстречу клиенту и помочь ему стать обладателем дома своей мечты. Так что мы доработали фасад и теперь окна открываются без каких-либо трудностей.

Для внешней отделки Лариса выбрала кликфальц в стильном графитовом оттенке. Благодаря ему дом выглядит дорого и современно.

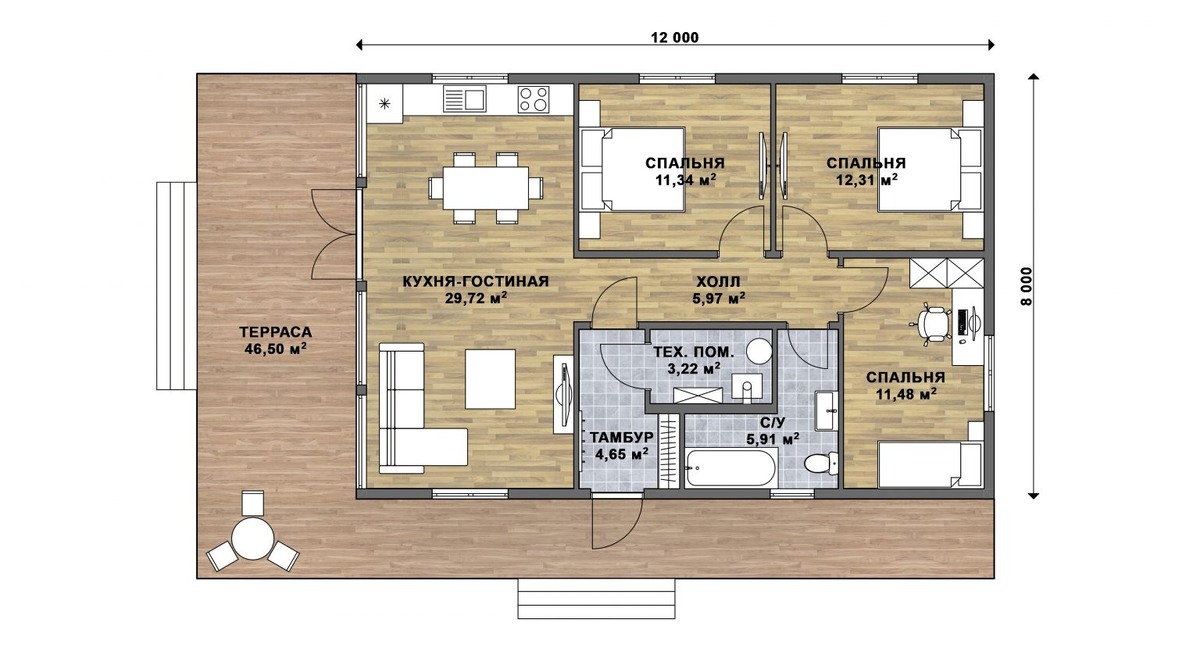
Планировка проект дома "Бавария" 8х12 м
Планировка проект дома "Бавария" 8х12 м

Планировка дома включает все пожелания заказчицы. Архитектурный прием второго света и высокие потолки визуально расширяют пространство и создают эффект дополнительного объема. Зона отдыха представлена тремя угловыми спальнями увеличенной площади. Большая кухня-гостиная с выходом на террасу – идеальное место для того, чтобы провести время в кругу родных и друзей. Дополняет проект достаточно просторный санузел, в котором при желании можно оборудовать места для хранения, а также отдельное техническое помещения для удобного доступа к инженерным коммуникациям – котельная. Вход в дом осуществляется через отдельное крыльцо и тепловой тамбур, благодаря которому холодный ветер не проникнет в жилую зону.

Отдельное внимание стоит уделить террасе – в этом проекте она действительно впечатляющая! Ее площадь – 46 квадратных метров. Часть террасы находится под крышей дома – здесь можно наслаждаться чашечкой согревающего чая даже в дождливую погоду. Вторая часть, открытая, прекрасно подойдет для оборудования летней столовой на свежем воздухе, а также зоны барбекю. Хватит места и для декора в виде живых растений.

Дом поставили в рекордные сроки. 7 октября мы отдали в работу полностью готовый проект, а 10 октября на участке заказчицы уже были смонтированы сваи. 18 ноября мы пригласили Ларису на сдачу готового к заселению дома. Таким образом, всего за месяц мы построили качественный, надежный, полностью утепленный и обеспеченный всеми инженерными коммуникациями дом, в который уже можно было перевозить мебель.

Уверены, дом прослужит много лет и все его жильцы будут счастливы! А если вы тоже хотите стать обладателем счастливого дома, который будет идеально соответствовать вашим представлениям и потребностям, приходите к нам на консультацию и расскажите, каким вы его видите.

Телефон и адрес сайта по ссылке в описании под этим видео!

Мастер строит дома, в которые хочется возвращаться...