Добавить в корзинуПозвонить
Найти в Дзене
Айр54.ру

Можно ли охладить несколько комнат одним кондиционером?

Вопрос, можно ли охладить несколько комнат одним кондиционером, является актуальным для многих владельцев квартир и домов, особенно в условиях летней жары. Не всегда есть возможность или желание устанавливать кондиционеры в каждую комнату, а потому возникает потребность в более экономичном решении. Ответ на этот вопрос зависит от ряда факторов, таких как тип кондиционера, планировка помещения и требуемая мощность охлаждения. Существует несколько типов кондиционеров, которые могут быть использованы для охлаждения нескольких помещений. Рассмотрим наиболее популярные из них: Оконный кондиционер предназначен для установки в окно и обычно охлаждает одну комнату. Теоретически, если окно находится на стыке двух комнат или если кондиционер стоит в коридоре, можно попытаться охладить и соседнюю комнату. Однако эффективность такого решения будет крайне низкой, так как охлажденный воздух быстро теряет свою силу, не имея возможности равномерно распределяться по двум помещениям. Мобильные кондицион
Оглавление

Вопрос, можно ли охладить несколько комнат одним кондиционером, является актуальным для многих владельцев квартир и домов, особенно в условиях летней жары. Не всегда есть возможность или желание устанавливать кондиционеры в каждую комнату, а потому возникает потребность в более экономичном решении. Ответ на этот вопрос зависит от ряда факторов, таких как тип кондиционера, планировка помещения и требуемая мощность охлаждения.

Типы кондиционеров

Существует несколько типов кондиционеров, которые могут быть использованы для охлаждения нескольких помещений. Рассмотрим наиболее популярные из них:

Оконный кондиционер

Оконный кондиционер предназначен для установки в окно и обычно охлаждает одну комнату. Теоретически, если окно находится на стыке двух комнат или если кондиционер стоит в коридоре, можно попытаться охладить и соседнюю комнату. Однако эффективность такого решения будет крайне низкой, так как охлажденный воздух быстро теряет свою силу, не имея возможности равномерно распределяться по двум помещениям.

Мобильный кондиционер

Мобильные кондиционеры можно перемещать между комнатами, но они также охлаждают только одну комнату за раз. Если вам нужно перемещать его с места на место, то такой вариант может быть удобным, но в нем также есть ограничения по эффективности.

Сплит-системы (кондиционеры с внутренним и внешним блоком)

Сплит-системы — это наиболее популярные устройства для охлаждения помещений. Обычно сплит-система оснащена одним внутренним блоком, который охлаждает одну комнату. Однако существует и многообещающее решение для охлаждения нескольких помещений — мульти-сплит системы.

Мульти-сплит система

Это более продвинутый вариант, который позволяет подключить несколько внутренних блоков к одному внешнему. Мульти-сплит системы могут эффективно обслуживать несколько комнат, при этом каждый внутренний блок может работать с разной температурой. Это наиболее удобный и эффективный способ охлаждения нескольких помещений с использованием одного внешнего блока.

Централизованные системы кондиционирования

Такие системы, как правило, используются в крупных зданиях и квартирах с несколькими комнатами. В этих системах воздух подается через систему воздуховодов в разные комнаты. Охлаждение будет равномерным, но это решение требует значительных затрат на установку и эксплуатацию.

Что влияет на эффективность охлаждения нескольких комнат?

Площадь помещений

Мощность кондиционера напрямую зависит от площади помещения. Для того чтобы охладить несколько комнат, важно учитывать общую площадь, а не только размер каждой отдельной комнаты. Например, кондиционер мощностью 2,5 кВт подходит для охлаждения стандартной комнаты площадью до 25 м². Если вам нужно охладить несколько помещений, мощность кондиционера должна быть соответствующей.

Читайте также: Как рассчитать мощность кондиционера по площади: пошаговое руководство

Планировка помещений

Если комнаты расположены близко друг к другу и имеют открытые двери, охлаждение нескольких помещений будет более эффективным. В таких случаях воздух может свободно циркулировать, что позволяет снизить нагрузку на кондиционер. Однако если между комнатами есть стенки или узкие дверные проемы, охлаждение второй комнаты будет гораздо менее эффективным.

Мощность кондиционера

Важно правильно рассчитать мощность кондиционера. Обычно для стандартной комнаты площадью 20 м² нужно около 2,0–2,5 кВт мощности, но при необходимости охладить несколько комнат мощность системы должна быть увеличена. Мульти-сплит система может быть хорошим выбором, так как она позволяет подобрать оптимальное распределение мощности между комнатами.

Вентиляция и циркуляция воздуха

Для эффективного охлаждения нескольких помещений необходима хорошая вентиляция. Если комнаты плохо вентилируются или в них нет дверей, которые можно оставить открытыми, охлажденный воздух не сможет легко перемещаться между ними. Поэтому даже если кондиционер мощный, эффективность охлаждения будет снижена.

Возможные решения

Использование мульти-сплит системы

Это оптимальный выбор для домов и квартир с несколькими комнатами. Мульти-сплит система может иметь один внешний блок и несколько внутренних блоков, которые можно устанавливать в разных комнатах. Это позволит поддерживать комфортную температуру в нескольких помещениях одновременно.

Планировка системы с помощью воздуховодов

В квартирах с централизованным кондиционированием можно использовать систему воздуховодов для подачи охлажденного воздуха в несколько помещений. Этот вариант будет особенно эффективен в больших домах, где важно поддерживать равномерную температуру во всех комнатах.

Переносной кондиционер с воздуховодом

Такой кондиционер можно перемещать между комнатами, однако для более эффективного охлаждения придется обеспечить вентиляцию через открытые двери или окна.

Сплит-система более высокой мощности

Очень часто устанавливают кондиционер более высокой мощности в большее помещение, это тоже является приемлемым решением.

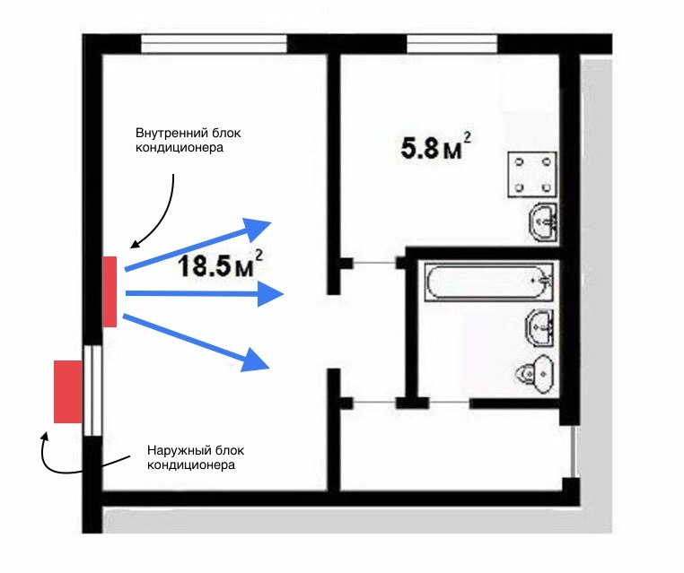
Например: 1 комнатная «хрущёвка», зал 18,5 м² с кухней 5,8 м². Решением будет поставить настенный кондиционер (сплит-систему) мощностью ~2,6 кВт (~3,2 кВт если солнечная сторона) в зал, напротив двери. При наличии небольшой вентиляции воздух будет охлаждаться по всей площади квартиры.

Схематический пример расположения блоков кондиционера для охлаждения комнаты и кухни в 1-к квартире
Схематический пример расположения блоков кондиционера для охлаждения комнаты и кухни в 1-к квартире

Заключение

Можно ли охладить несколько комнат одним кондиционером? Ответ зависит от выбранной системы и особенностей вашего жилья. Если вы хотите охладить несколько комнат одновременно, идеальными решениями будут мульти-сплит системы или централизованные системы кондиционирования с воздуховодами. Для небольших помещений, расположенных рядом друг с другом, вполне может подойти один кондиционер с достаточной мощностью. В любом случае важно учитывать площадь, планировку и требования к мощности устройства для обеспечения оптимального охлаждения.