Добавить в корзинуПозвонить
Найти в Дзене

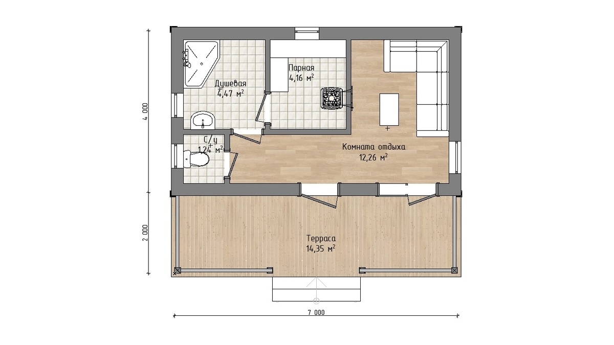
Каркасная баня 4х7 м.

Площадь помещений 22,13 м², терраса 14,3 м².
Каркас из доски сечением 100х50, 150х50 мм.
Фундамент плитный.
Регион строительства Ленинградская область. В состав проекта входит:
- Архитектурный раздел;
- Конструктивный раздел;
- Спецификация материалов;
- Схема раскроя пиломатериала;
- Схема раскроя OSB;
- 3D визуализация дома и каркаса.
Полный эскизный проект можно посмотреть по ссылке disk.yandex.ru/i/Fia_yx6R...
#купитьпроектдома #заказатьпроектдома #проекткаркасногодома #проектдома #каркасныйдом #проекткаркас #проектдомамосква #проектзагородногодома

Площадь помещений 22,13 м², терраса 14,3 м².
Каркас из доски сечением 100х50, 150х50 мм.
Фундамент плитный.
Регион строительства Ленинградская область.

В состав проекта входит:
- Архитектурный раздел;
- Конструктивный раздел;
- Спецификация материалов;
- Схема раскроя пиломатериала;
- Схема раскроя OSB;
- 3D визуализация дома и каркаса.
Полный эскизный проект можно посмотреть по ссылке
disk.yandex.ru/i/Fia_yx6R...
#купитьпроектдома #заказатьпроектдома #проекткаркасногодома #проектдома #каркасныйдом #проекткаркас #проектдомамосква #проектзагородногодома