Найти в Дзене
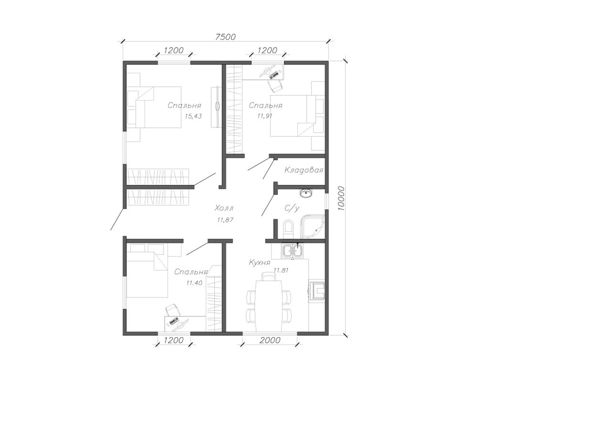
Дом на Кубани

Один из самых популярных проектов!

Цена на январь 2025 года. Друзья, мы предлагаем вам вариант такого дома, изготовленный полностью из СИП панелей на цементной основе (внутренние перегородки не каркасные). Высота потолков 2,8 метра. В стоимость входит бетонный монолитный фундамент с плитой в качестве пола первого этажа, закладка воды и канализации по договоренности, все стены и все внутренние перегородки по проекту, стропильная 4х скатная крыша с кровлей металлочерепицей в цвет по выбору заказчика, водосточная система DOCKE, монтажные работы. Итого 2 750 000 рублей. Отдельно считаются логистические затраты в зависимости от удалённости объекта. Телефон +79184707686

Цена на январь 2025 года.

Друзья, мы предлагаем вам вариант такого дома, изготовленный полностью из СИП панелей на цементной основе (внутренние перегородки не каркасные). Высота потолков 2,8 метра.

В стоимость входит бетонный монолитный фундамент с плитой в качестве пола первого этажа, закладка воды и канализации по договоренности, все стены и все внутренние перегородки по проекту, стропильная 4х скатная крыша с кровлей металлочерепицей в цвет по выбору заказчика, водосточная система DOCKE, монтажные работы.

Итого 2 750 000 рублей.

Отдельно считаются логистические затраты в зависимости от удалённости объекта.

Телефон +79184707686