Добавить в корзинуПозвонить
Найти в Дзене
ЭТО ВАШ ИНТЕРЬЕР

Вот такой ремонт по-настоящему восхищает! Я изменила свою "убитую" квартиру до неузнаваемости. Показываю фото до и после

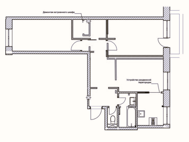
Сегодня мы поговорим о молодой супружеской паре, которая купила свое первое собственное жилье. Супруги работают вместе в одной IT-компании, и эту квартиру они приобрели в доме, который находится рядом с их работой. В "трешке" была не очень хорошая планировка, с низкими потолками и плохим ремонтом. Для оформления будущего интерьера они обратились в дизайнерскую студию, где им создали функциональный интерьер в скандинавской стилистике. В отделке пола во входной зоне использовали белую плитку с черным орнаментом, а стены покрыли белой моющейся краской, благодаря чему прихожая кажется визуально больше. В качестве яркого акцента здесь выступает входная дверь, выполненная в насыщенном желтом оттенке. Слева от входа была организована зона хранения, которую изготовили на заказ. Здесь предусмотрены и открытые крючки для одежды, и закрытые секции и даже откидное сидение. На этапе создания будущего интерьера было принято решение о переносе входа на кухню из прихожей в гостиную. Прежний проход
Оглавление

Сегодня мы поговорим о молодой супружеской паре, которая купила свое первое собственное жилье. Супруги работают вместе в одной IT-компании, и эту квартиру они приобрели в доме, который находится рядом с их работой. В "трешке" была не очень хорошая планировка, с низкими потолками и плохим ремонтом.

Для оформления будущего интерьера они обратились в дизайнерскую студию, где им создали функциональный интерьер в скандинавской стилистике.

Проект

  • Местоположение: Москва
  • Площадь квартиры: 56 квадратных метров
  • Владельцы: супружеская пара с ребенком
-2

Прихожая

В отделке пола во входной зоне использовали белую плитку с черным орнаментом, а стены покрыли белой моющейся краской, благодаря чему прихожая кажется визуально больше. В качестве яркого акцента здесь выступает входная дверь, выполненная в насыщенном желтом оттенке.

-3

Слева от входа была организована зона хранения, которую изготовили на заказ. Здесь предусмотрены и открытые крючки для одежды, и закрытые секции и даже откидное сидение.

Кухня

На этапе создания будущего интерьера было принято решение о переносе входа на кухню из прихожей в гостиную. Прежний проход на кухню был заложен и за счет его площади увеличили площадь ванной комнаты, но об этом чуть позже. Так как в квартире газ, между комнатой и кухней соорудили сдвижную стеклянную перегородку, чтобы планировка была узаконена.

-4

В отделке пола использовали плитку, а стены так же покрашены в светлый оттенок. Чтобы максимально грамотно использовать каждый сантиметр маленькой кухни — угловой гарнитур изготовили на заказ.

-5

Фасады выполнены в универсальном белом цвете. На этом белом фоне прекрасно выделяется акцентная узорчатая плитка, которой облицован фартук.

-6

Вся техника встроенная, включая холодильник, расположенный на месте бывшего прохода. Место возле окна так же задействовали и организовали здесь дополнительные места для хранения с местом для сидения.

Гостиная

На полу в жилой зоне использовали инженерную доску, а стены также покрашены в белый цвет. Так как на кухне задействовали буквально всё пространство, пришлось вынести столовую группу в гостиную. Обеденный стол выбрали из массива на черном металлическом основании. Рядом появился лаконичный буфет.

В центре комнаты обустроили зону отдыха, центром которой стал яркий желтый диван, легко превращающийся в спальное место для гостей. Напротив него расположили комод и телевизор.

Стену за ТВ решили сделать акцентной и задекорировали её деревянными рейками. При входе в гостиную были установлены книжные стеллажи, где хранится библиотека наших героев.

Спальня

Если во всех предыдущих помещениях стены были светлыми, то в хозяйской спальне решили немного поиграть с цветовой гаммой и покрасили стены в насыщенный зеленый оттенок, который создает атмосферу спокойствия и расслабления.

-11

Слева от входа обустроили небольшую нишу, в которой разместилась система хранения. В центре комнаты находится двуспальная кровать с выдвижными ящиками для вещей. Стену за изголовьем кровати оформили деревянными панелями, которые добавляют уюта и тепла.

Между кроватью и окном нашлось место для рабочего уголка хозяйки. Между спальней хозяев и детской была организована изолированная гардеробная.

На примыкающем к спальне балконе организовали зону отдыха с дополнительными местами для хранения.

-14

Детская комната

Детскую комнату оформили, так сказать на вырост. В отделке стен использовали краску двух цветов и акцентные обои с изображением летательных аппаратов. Здесь оборудовали места для хранения, спальное место и рабочий уголок для ребенка. А еще здесь удалось разместить спортивный уголок.

Ванная комната и туалет

Благодаря грамотной перепланировке ванную комнату удалось немного увеличить в размерах за счет площади коридора. В отделке были использованы: серый керамогранит, белая плитка "кабанчик" и акцентная плитка желтого оттенка.

-16

Благодаря доминированию светлых тонов, тщательно продуманному освещению и искусной игре с цветовыми нюансами, помещение воспринимается как более просторное, чем оно есть на самом деле.

-17

Если вам понравилась статья, то не забудьте поставить лайк и подписаться, чтобы не пропустить новый материал!

Так же пишите в комментариях, что вам понравилось в этом проекте, а что вызывает сомнения.