Найти в Дзене

Начали ремонт с кухни? -совершили главную ошибку!

Герои реалити стали мастерами ремонта. Подробности второй части работы над ключевым проектом: Как говорится, театр начинается с вешалки, а квартира — с кухни. Поскольку у нас европланировка, именно кухня-гостиная является самой просторной комнатой в нашем жилье. Здесь мы проводим основное время: моя жена готовит и расслабляется, мы вместе смотрим телевизор, а наш ребенок играет с игрушками. Мы приобрели квартиру в июле и до октября активно занимались её планированием. В этом нам значительно помог онлайн-планировщик для ремонта. У нас даже было две программы: одна отличалась удобством в решении инженерных задач, а другая — в визуализации. Я разработал обмерный план квартиры, и мы с женой детально обдумывали расположение и количество розеток, сантехником, кухонным оборудованием, кондиционерами, мебелью и освещением — всё до самых мелочей. Размышления о процессе ремонта: Выбор ключевых моментов Процесс оказался достаточно продолжительным, и мы испытали множество вариантов планировки, особ
Оглавление

Герои реалити стали мастерами ремонта. Подробности второй части работы над ключевым проектом:

Вторая глава нашего ремонта: Период работы с июля по ноябрь 2023 года.

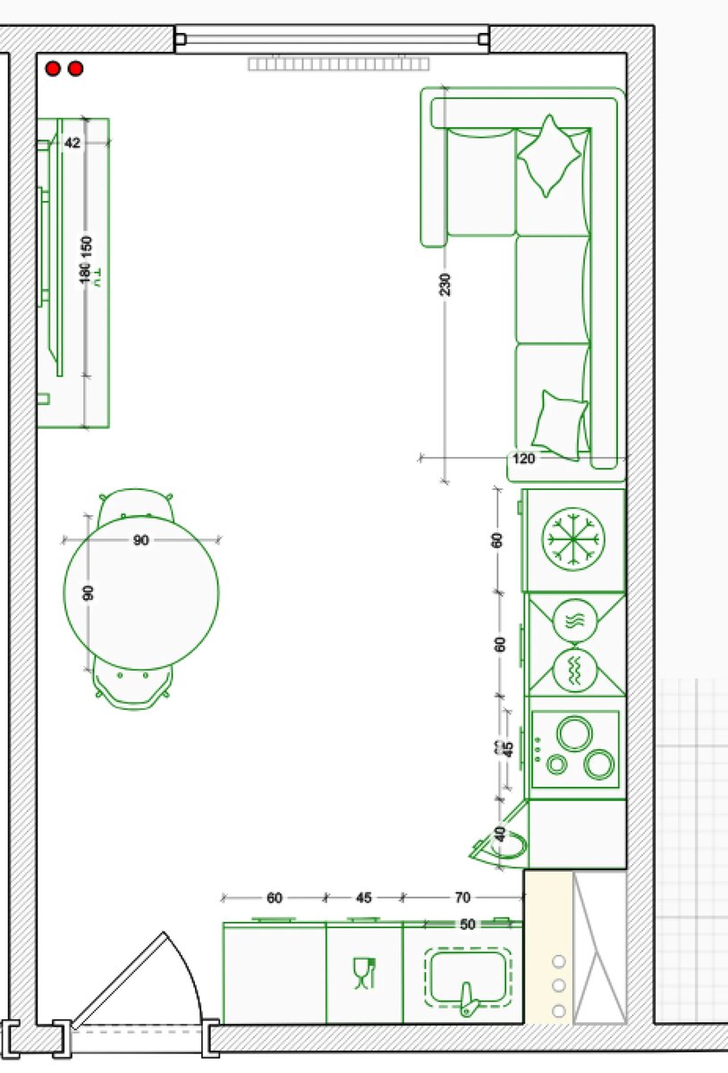
Как говорится, театр начинается с вешалки, а квартира — с кухни. Поскольку у нас европланировка, именно кухня-гостиная является самой просторной комнатой в нашем жилье. Здесь мы проводим основное время: моя жена готовит и расслабляется, мы вместе смотрим телевизор, а наш ребенок играет с игрушками.

Мы приобрели квартиру в июле и до октября активно занимались её планированием. В этом нам значительно помог онлайн-планировщик для ремонта. У нас даже было две программы: одна отличалась удобством в решении инженерных задач, а другая — в визуализации. Я разработал обмерный план квартиры, и мы с женой детально обдумывали расположение и количество розеток, сантехником, кухонным оборудованием, кондиционерами, мебелью и освещением — всё до самых мелочей.

наша кухня
наша кухня

Размышления о процессе ремонта: Выбор ключевых моментов

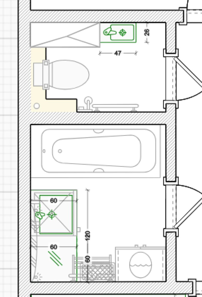
Процесс оказался достаточно продолжительным, и мы испытали множество вариантов планировки, особенно в ванной комнате. В конечном итоге, мы определили несколько основных решений:

- Превращение балкона в рабочее пространство;

- Использование напольного покрытия в одном полотне (ох, это станет настоящим испытанием);

- Минимизация стыков и «порогов»;

- Потолок с теневым профилем в гармонии с мебелью;

- Внедрение системы «умный дом» (у нас уже есть опыт работы с ней);

- Полная модернизация электрики с переносом электрощита.

О кухне

Изначально мы планировали угловую кухню, однако её расположению мешал вентиляционный короб с трубами в углу. Застройщик обработал трубы таким образом, что короб стал глубиной 52 сантиметра. Все предложенные угловые кухни с этим коробом выглядели неаккуратно: либо требовалось добавление фальшпанели, либо уменьшение нижнего ящика, прилегающего к коробу, либо оставление 8 см столешницы, которую необходимо было увеличивать.

После продолжительных раздумий, мы решили поступиться 8 см пространства ради улучшения внешнего вида. Таким образом, мы решили увеличить короб до 60 см, облицевав его от пола до потолка тем же керамогранитом, что и фартук, и создать кухню из двух секций. Фото показывают варианты, которые нам не подошли.

Выбор кухни: наш опыт в поисках идеального решения

Мы молодые и немного наивные, но накопив определенную сумму, решили отправиться в магазин за кухней. Наши ожидания были довольно простыми:

- Мойка подстольного монтажа;

- Кухня вплотную до потолка с третьим рядом, но без антресолей.

По рекомендациям знакомых обратились в две компании.

Первый опыт

В первой фирме к нам приехали две женщины. Они осмотрели стены, провели расчеты на калькуляторе и озвучили сумму 350 тысяч. На попытки уточнить, какие материалы будут использованы для фасадов и столешницы, нам ответили: «Приезжайте в офис». Этот подход не сильно впечатлил, и мы решили обратиться во вторую компанию.

Второй опыт

Во второй фирме к нам пришла девушка, которая удивилась, что у нас уже есть готовый план кухни. Она сделала замеры и через день прислала детальный чертеж и расчет стоимости. В офисе мы выбрали фурнитуру, материалы для фасадов и столешницы, а также мойку, смеситель и вытяжку. В итоге цена кухни с HPL компакт-плитой, фасадами из МДФ Eterno, фурнитурой Blum, мойкой Omokiri, вытяжкой и смесителем составила 430 тысяч рублей.

план кухни
план кухни

Заказ кухни в ноябре 2023 года: удачное решение

Я могу с уверенностью сказать, что выбор кухни в ноябре 2023 года оказался превосходным решение. Даже не хочу думать, на какую сумму она могла бы оцениваться сейчас.

Кухня заказана, план ремонта подготовлен — настало время выбрать бригаду.

Ошибки в выборе подрядчика

Здесь я допустил главную ошибку: попался на рекламу. Компания активно рекламируется в нашем городе и ведет блог, где демонстрирует свои проекты. Я подумал: «Цены выше средних, но зато и качество на высоте», и решил обратиться к ним.

Небольшое лирическое отступление: я всегда представлял ремонт "под ключ" как процесс, при котором я просто передаю строителям проект и ключи от квартиры, оплачиваю услуги, а они решают все остальные вопросы (закупка материалов, доставка, возвраты и так далее). Возможно, такие организации существуют, но не в нашем городе и не за такие деньги.

Ко мне приехал прораб, которого мы условно назовем Д. Он изучил проект, выслушал мои пожелания (теневой профиль, единое напольное покрытие, работы по сантехнике и электрике и прочее) и ушел, чтобы подготовить смету. Между прочим, этот расчет стоит 2000 рублей, даже если договор уже подписан. Обычно подобные расходы включаются в общую стоимость работ, но здесь это отдельная статья расходов.

Смета и ожидания

Через несколько дней Д. сообщил мне стоимость работ — 800 тысяч рублей — и срок выполнения 7 месяцев. Я подумал: «Наверное, у мастеров большой спрос, если такой длительный срок ожидания». Это оказалась моя вторая серьезная ошибка.

Важно отметить:

Я уточнил, фиксируется ли цена работ и не изменится ли она после Нового года. Мне заверили, что увеличение стоимости составит не более 5–7%, а срок выполнения работ составит 3–4 месяца, однако в договоре была указана дата декабря 2024 года ("на всякий случай").

Закупку черновых и чистовых материалов они планировали проводить через себя, поскольку, как было заявлено, "поставщики проверенные, цены хорошие, не будет проблем с доставкой, возвратами и обменами". Эти условия должны были стать сигналом тревоги, но я тогда предпочел их игнорировать.

В итоге мы подписали договор, я внес предоплату, и началось долгое ожидание мая 2024 года.

Продолжение в 3 части нашей истории..