Найти в Дзене

Купили квартиру с ремонтом от застройщика: кривые стены и отваливающаяся плитка.

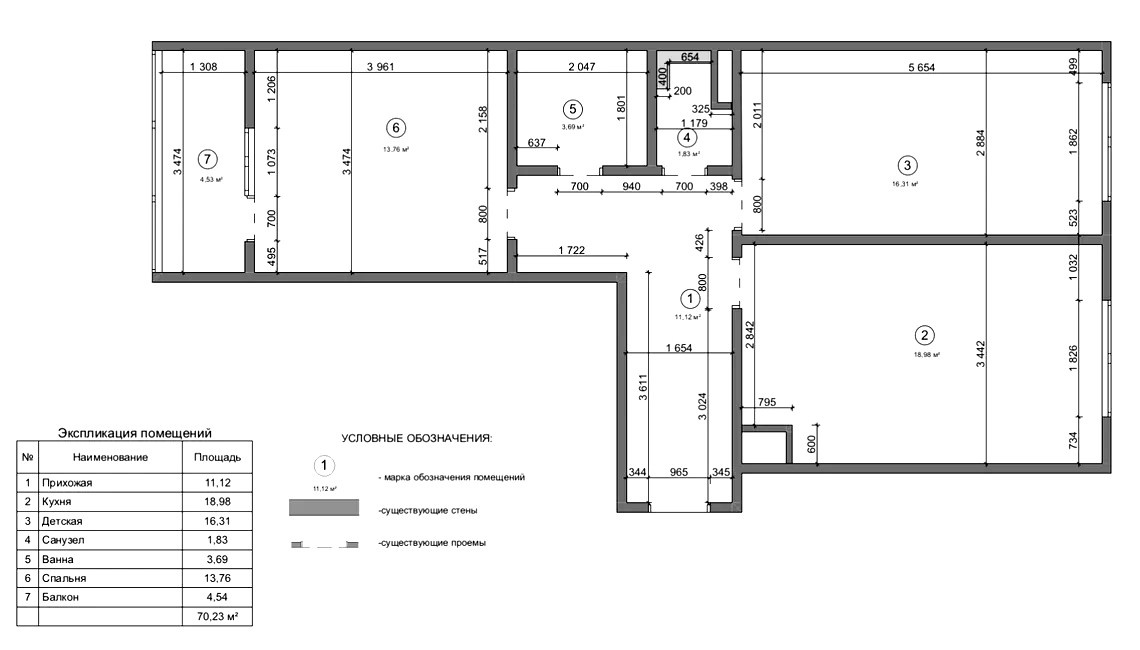
Место событий — Курск, расположенный в 500 километрах от Москвы, с численностью населения около 500 тысяч человек. Время событий — июль 2023 года. Мы проживаем в районе, в котором находятся три жилых дома. Нам очень нравятся наши квартиры, комфортное месторасположение, управляющая компания и закрытая территория. Хотя квартиры панельные, у них потолки высотой 2,65 м, они теплые и уютные, а также имеют "европейские" планировки. В данный момент мы живём в "евродвушке" площадью 37 квадратных метров. С рождением ребенка нам становится тесно, и мы давно пришли к выводу, что нужно рассмотреть вопрос с жильем. В целом, новые квартиры мы не искали активно, Avito не проверяли. Можно сказать, это произошло случайно: жена зашла на сайт и наткнулась на предложение о квартире в нашем районе, но в соседнем доме. О квартире. Площадь составляет 67 квадратных метров, окна выходят на две стороны, планировка следующая: кухня-гостиная — 19,5 м², спальня — 13,6 м² с выходом на балкон, балкон — 4,3 м², детск
Оглавление

Герои реалити уже на протяжении года занимается ремонтом под ключ: часть 1

Место событий — Курск, расположенный в 500 километрах от Москвы, с численностью населения около 500 тысяч человек. Время событий — июль 2023 года.

Мы проживаем в районе, в котором находятся три жилых дома. Нам очень нравятся наши квартиры, комфортное месторасположение, управляющая компания и закрытая территория. Хотя квартиры панельные, у них потолки высотой 2,65 м, они теплые и уютные, а также имеют "европейские" планировки.

В данный момент мы живём в "евродвушке" площадью 37 квадратных метров. С рождением ребенка нам становится тесно, и мы давно пришли к выводу, что нужно рассмотреть вопрос с жильем.

В целом, новые квартиры мы не искали активно, Avito не проверяли. Можно сказать, это произошло случайно: жена зашла на сайт и наткнулась на предложение о квартире в нашем районе, но в соседнем доме.

план квартиры
план квартиры

О квартире. Площадь составляет 67 квадратных метров, окна выходят на две стороны, планировка следующая:

кухня-гостиная — 19,5 м²,

спальня — 13,6 м² с выходом на балкон,

балкон — 4,3 м²,

детская — 16 м²,

раздельный санузел:

туалет — 2 м²,

ванная комната — 3,6 м².

Дом был возведён в 2019 году. В квартире выполнен ремонт от застройщика, но никто здесь ещё не жил. Фотографии демонстрируют её вид на момент приобретения. В целом, всё нас устроило, и мы приняли решение о покупке.

Квартира обошлась в 6 миллионов рублей: 2 миллиона мы собрали наличными, а на оставшиеся 4 миллиона оформили ипотеку. Поскольку это вторичное жильё, на которое не распространяется государственная поддержка, ставка по ипотеке составила 10,9%. Мы также задействовали материнский капитал. В целом, ежемесячный платёж оказался достаточно приемлемым, и мы быстро оформили все документы, получив ключи от нового дома!

Маленькое примечание: на тот момент минимальный первоначальный взнос составлял 15%. Сейчас я понимаю, что стоило вносить по минимуму и увеличить размер ипотеки, а оставшуюся сумму инвестировать в ремонт. Почему — поясню позже.

Итак, квартира куплена, ремонт завершён — можно переезжать?

На этом этапе начались обсуждения — в первую очередь с собой. Все знают о ремонте от застройчика: всё делается так, чтобы быстро продать, и внешне выглядит приемлемо. В целом, жить можно, но с некоторыми нюансами. Понимая, что мы приобретаем жильё на длительный срок и планируем остаться здесь надолго, хотелось всё сделать как следует, но с минимальными вложениями (ха-ха).

Первоначальный план выглядел так:

- Заменить ламинат, так как недорогой материал от застройщика рассохся: видны стыки, а местами покрытие вздуто.

- Добавить и переместить розетки, установить новые дифференциальные автоматы и отдельные линии для кухни, ванной и кондиционеров.

- Переклеить обои на кухне, в коридоре и в спальне.

- Обновить потолок только на кухне. В остальных помещениях просто снять и установить обратно натяжные потолки для прокладки новых линий электрики.

- Заменить сантехнику в ванной, возможно, установить инсталляцию вместо унитаза, а плитку просто покрасить.

Сразу скажу, мы не планировали капитальный ремонт. Хотели оставить плитку в ванной и туалете, потолки, электрику и двери. Сложность заключалась в том, что найти мастеров для частичных работ довольно трудно — никто не хочет браться за мелкий ремонт. Поэтому я решил, что сделаю многие вещи сам, и приступил к демонтажу.

И, проводя демонтаж, я осознал смысл выражения: чем меньше сделано застройщиком, тем меньше потом переделывать.

- Снятие ламината выявило перепады уровня пола до 4 сантиметров по всей квартире.

- Кривые стены с завалами до 5 сантиметров.

- Полы местами выровнены… двойным слоем картона.

- Ламинат в некоторых местах прикручен к полу саморезами.

- Электрика выполнена некачественно: розетки соединены шлейфом, провода болтаются.

- Двери установлены криво, с проблемами по геометрии.

Но самым страшным был сюрприз в ванной: плитка была “бухтящей”, то есть держалась в основном за счёт затирки и друг друга. С надеждой на частичный ремонт с каждым днём становилось всё труднее.

В итоге было решено с твёрдой решимостью подойти к ремонту, сделав всё "качественно" и "для себя". Поскольку сроки ремонта и переезда не ограничивали, мы решили немного подкопить финансы и детально разработать проект.

Расходы: 6 миллионов рублей — стоимость квартиры.

Смотрите продолжение во второй части...