Найти в Дзене

Евродвушка 41,6 м2 – лаконичность с яркими акцентами. Цена ремонта!

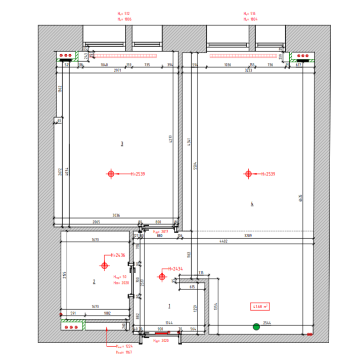
Сегодня у нас проект одной из самых популярных по площади и планировке квартир – небольшой евродвушки с отдельной спальней и кухней-гостиной. Прелесть именно этой планировки в том, что кухня в такой квартире имеет площадь 21,2 м2, тогда как нередко эту площадь отдают под жилую комнату и получить и полноценную спальню, и зону гостиной бывает проблематично. Квартира была сдана с отделкой от застройщика, от нас требовался дизайн и смета. Плюс клиенты захотели выровнять стену в спальне – на скриншоте плана видно странную «нишу» глубиной 65 мм. Стену мы вывели в одну плоскость с помощью блоков и штукатурки. В проекте все стены оклеены флизелиновыми обоями под покраску (обои обошлись в 9000 руб., вся краска – 10 000 руб.), в качестве декоративного приема часть стен окрашена в более темный цвет, входящий в выбранную цветовую палитру. Другим элементом декора стали выбранные картины – две в рамках с паспарту белого цвета над изголовьем кровати, вторая картина объемная, расположена напротив кро

Сегодня у нас проект одной из самых популярных по площади и планировке квартир – небольшой евродвушки с отдельной спальней и кухней-гостиной. Прелесть именно этой планировки в том, что кухня в такой квартире имеет площадь 21,2 м2, тогда как нередко эту площадь отдают под жилую комнату и получить и полноценную спальню, и зону гостиной бывает проблематично.

Квартира была сдана с отделкой от застройщика, от нас требовался дизайн и смета. Плюс клиенты захотели выровнять стену в спальне – на скриншоте плана видно странную «нишу» глубиной 65 мм.

Портфолио Remplanner
Портфолио Remplanner

Стену мы вывели в одну плоскость с помощью блоков и штукатурки. В проекте все стены оклеены флизелиновыми обоями под покраску (обои обошлись в 9000 руб., вся краска – 10 000 руб.), в качестве декоративного приема часть стен окрашена в более темный цвет, входящий в выбранную цветовую палитру.

Портфолио Remplanner
Портфолио Remplanner

Другим элементом декора стали выбранные картины – две в рамках с паспарту белого цвета над изголовьем кровати, вторая картина объемная, расположена напротив кровати. Сама кровать размером 140х200, серого цвета, цена 18 900 руб.

Портфолио Remplanner
Портфолио Remplanner

Картина заполняет пустоту, которую во многих спальнях не встретишь, т.к. там висит телевизор. Можно было установить тумбу-комод, но тогда сузился бы проход вокруг кровати, а так сохранился удобный и полноценный – шириной 95 см.

Портфолио Remplanner
Портфолио Remplanner

Шкаф для спальни шириной 180 и глубиной 60 см, четырехстворчатый, то есть разделен он на две равные половины. Наполнение традиционное: вверху штанги под плечики, внизу выдвижные ящики и полки. Цена 46 000 руб.

Портфолио Remplanner
Портфолио Remplanner

Второй шкаф расположен в прихожей, это тоже готовый шкаф, выбранный по размеру ниши, цена – 32 100 руб.

Портфолио Remplanner
Портфолио Remplanner

Прихожая совсем небольшая, но, к счастью, дверь ванной комнаты достаточно далеко от входной двери, чтобы грязная зона была не проходной. Зеркало с подсветкой Camelia XL стоит 19 600 руб.

Портфолио Remplanner
Портфолио Remplanner

В ванной комнате у нас сочетается строгость белого со жгучей энергетикой шафранового цвета (NCS S 2070-Y20R). МДФ панели на стене над коробом с инсталляцией и стеллаж над стиральной машиной покрыты эмалью указанного оттенка.

Портфолио Remplanner
Портфолио Remplanner

Получилось интересное сочетание, в котором холод и монотонность одного цвета компенсирует динамика второго. Вместе они создают ощущение теплого и в меру яркого интерьера.

Портфолио Remplanner
Портфолио Remplanner

Шторка у нас сочетает в себе все акцентные цвета, использованные в квартире, и в ванной, и в спальне, и в гостиной. Цена шторы 3440 руб., если кому надо, ищите по названию – Ridder Zelda 4103309.

Портфолио Remplanner
Портфолио Remplanner

Что по стоимости: полотенцесушитель 18 290 руб., это Comfysan Pioli-K W8 80х40, водяной (замена того, что поставил застройщик). Смеситель и душевая стойка от BelBagno, цена 5200 и 24 640 руб. соответственно. Кстати, кнопка смыва у нас белая, матовая – это Berges Novum L4 за 2190 руб. Зеркало с подсветкой 60х80 см 8500 руб., а тумба и раковина со столешницей делаются на заказ по индивидуальным размерам, после укладки плитки.

Портфолио Remplanner
Портфолио Remplanner

Финальное помещение – кухня-гостиная, начнем с зоны отдыха. Диван очень яркого, активного оранжевого цвета, к тому же бюджетный – это NORD 2.0 Велюр Alkantara за 32 000 руб. Дополнили мы его подушками и пледом в тон штор, красивого горчично-желтого цвета. Над диваном пара картин большого формата, одна монохромная, вторая с чуть более приглушенным, чем диван, оранжевым фоном.

Портфолио Remplanner
Портфолио Remplanner

Напротив дивана довольно традиционная ТВ-зона с широкой тумбой (Парус-10 за 7000 руб.), а рядом с ней компактное рабочее место (стол 19 000 и кресло 15 000 руб.). Над столом видны очертания люка на стене – это технический лючок для доступа к стоякам отопления. Зашито всё не нами, застройщиком, мы лишь спроектировали приличный скрытый люк вместо пластикового накладного.

Портфолио Remplanner
Портфолио Remplanner

Добавили низковорсовый ковер светлого цвета, кашпо с высоким растением и получили довольно уютное пространство для вечеров вдвоем или с гостями. По ценам: люстра Maytoni MOD013PL-06B 21 600 руб. (кстати, в спальне люстра а Escada 1119/6S Black за 15 800 руб.), торшер Kink Light 7900 руб., ковер 2х3 м BARKS за 10 000 руб., журнальный столик BOSS WOOD 47 см за 12 900 руб. и шторы плотные, готовые, 3200 руб. за штуку (в спальне 2875 руб.).

Портфолио Remplanner
Портфолио Remplanner

Потолок над зоной кухни с опуском, так выбранная модульная кухня (за 81 900 руб.) встает с минимальным зазором от потолка, даже будучи стандартной, двухъярусной. Скомпонована она так, чтобы вместить всё необходимое. Холодильник отдельностоящий в нише, со всеми техническими зазорами, посудомойка встроенная, как и духовой шкаф, панель варочная индукция на две конфорки.

Портфолио Remplanner
Портфолио Remplanner

Здесь у нас тоже темная, контрастная полоса краски на светлом фоне. Она делит пространство на гостиную и зону кухни-столовой, плюс декорирует пространство позади обеденного стола. Стулья были выбраны в тон дивану, это Алекс Orange, 9760 руб. за одну штуку. Стол прямоугольный 160х80 см Millwood Сеул за 14 000, столешница ЛДСП, цвет совпадает с цветом столешницы и фартука кухни. Подвес с плафонами над столом Indigo V000152 – цена 15 300 руб.

Общая стоимость всего, что вошло в смету, за вычетом предметов на заказ и работы по ремонту и сборке мебели, составила 588 000 рублей. Мы считаем, это можно назвать достаточно бюджетным решением, учитывая, что в каждой категории вы подбирали лучшие по соотношению цены и качества варианты.

Портфолио Remplanner
Портфолио Remplanner

Заказать проект можно, как всегда, у нас на сайте, или лично прийти в наш уютный офис в центре Москвы. Всегда рады ответить на все ваши вопросы!