Добавить в корзинуПозвонить
Найти в Дзене

Проект деревянного каркасного дома «Неаполь»

Комплектация «Тёплый контур» Двухэтажный проект каркасного дома «Неаполь» сочетает в себе современные технологии, стильный дизайн и высокую энергоэффективность. Этот дом идеально подходит для комфортного проживания семьи из 4–6 человек круглый год. Надёжность конструкции, использование качественных материалов и продуманная планировка делают его прекрасным выбором для загородной жизни. Просторные помещения и возможность индивидуального изменения планировки делают проект универсальным для различных потребностей. Для надёжности конструкции и долговечности дома предусмотрены два варианта фундамента: Обвязка свайного поля выполняется из бруса сечением 150×200 мм, что придаёт конструкции дополнительную прочность и равномерно распределяет нагрузку. Конструкция дома выполнена из качественной древесины камерной сушки, что обеспечивает долговечность и надёжность: Каркас — это основа дома, которая обеспечивает надёжность всей конструкции, включая утепление и отделку. Кровельная система в про
Оглавление

Проект деревянного каркасного дома «Неаполь»

Комплектация «Тёплый контур»

Двухэтажный проект каркасного дома «Неаполь» сочетает в себе современные технологии, стильный дизайн и высокую энергоэффективность. Этот дом идеально подходит для комфортного проживания семьи из 4–6 человек круглый год. Надёжность конструкции, использование качественных материалов и продуманная планировка делают его прекрасным выбором для загородной жизни.

Общие характеристики

  • Название проекта: Неаполь
  • Комплектация: Тёплый контур
  • Этажность: Двухэтажный каркасный дом
  • Размеры дома: 8000 × 10920 мм
  • Фундамент: ЖБ сваи или винтовые сваи
  • Общая площадь: около 150 м² (в зависимости от планировки)

Планировка помещений

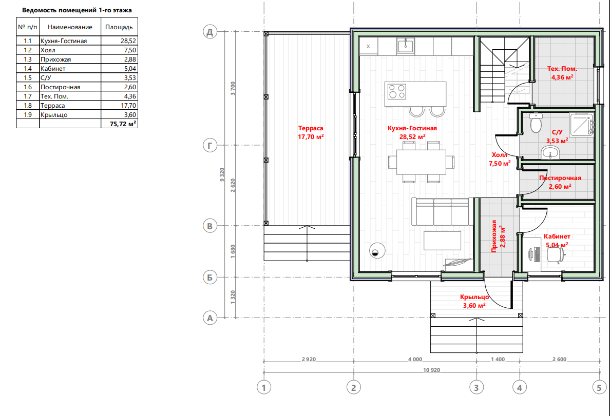
Первый этаж:

  • Кухня-гостиная: 28,52 м²
  • Холл: 7,5 м²
  • Прихожая: 2,88 м²
  • Кабинет: 5,04 м²
  • Постирочная: 2,60 м²
  • Санузел: 3,53 м²
  • Техническое помещение: 4,36 м²
  • Терраса: 17,70 м²
  • Крыльцо: 3,60 м²

-2

Второй этаж:

  • Спальня 1: 12,74 м²
  • Спальня 2: 9,67 м²
  • Спальня 3: 9,70 м²
  • Гардеробная: 3,02 м²
  • Холл: 6,25 м²
  • Кладовая: 5,03 м²
  • Санузел: 3,88 м²

Просторные помещения и возможность индивидуального изменения планировки делают проект универсальным для различных потребностей.

-3

Фундамент

Для надёжности конструкции и долговечности дома предусмотрены два варианта фундамента:

  1. Железобетонные сваи — подходят для большинства грунтов и гарантируют устойчивость.
  2. Винтовые сваи — универсальное и быстрое решение для участков с неровным рельефом.

Обвязка свайного поля выполняется из бруса сечением 150×200 мм, что придаёт конструкции дополнительную прочность и равномерно распределяет нагрузку.

-4

Силовой каркас

Конструкция дома выполнена из качественной древесины камерной сушки, что обеспечивает долговечность и надёжность:

  • Цокольное перекрытие: доска 50×200 мм камерной сушки.
  • Каркас стен: доска 50×150 мм камерной сушки.
  • Ветрозащита: подшивка доской 25×150 мм естественной влажности с шагом 150 мм.

Каркас — это основа дома, которая обеспечивает надёжность всей конструкции, включая утепление и отделку.

-5

Крыша

Кровельная система в проекте «Неаполь» защищает дом от осадков и климатических воздействий:

  • Стропильная система: доска 50×200 мм камерной сушки.
  • Ветро-влагозащитная мембрана.
  • Вентиляционный зазор: брусок 45×45 мм.
  • Обрешётка: доска 25×100 мм камерной сушки.
  • Кровля: металлочерепица 0,5 мм от Grandline.

Дополнительные элементы:

  • Водосточная система из ПВХ.
  • Снегозадержатели для защиты от лавинообразного схода снега.
  • Вентиляционные выходы для поддержания микроклимата.

-6

Утепление

Для обеспечения комфортной температуры в любое время года предусмотрено комплексное утепление:

  • Внешние стены: базальтовая вата толщиной 150 мм.
  • Внутренние перегородки: базальтовая вата толщиной 100/150 мм.
  • Цокольное перекрытие: базальтовая вата толщиной 200 мм.
  • Кровельная конструкция: базальтовая вата толщиной 200 мм.

Для защиты утеплителя используются:

  • Ветро-влагозащитная мембрана для предотвращения проникновения влаги.
  • Пароизоляция (200 мкм) с проклейкой швов.

Внешняя отделка

Отделка не только защищает конструкцию от внешних воздействий, но и создаёт стильный внешний вид:

  • Вентилируемый зазор: брусок 25×50 мм.
  • Имитация бруса: доска категории АВ 16×138 мм.
  • Цоколь: деревянные рейки 25×50 мм.
  • Окна: энергосберегающие стеклопакеты, ПВХ профиль 60 мм.
  • Входная дверь: временная металлическая.

Терраса и крыльцо

Терраса и крыльцо проекта «Неаполь» выполнены из прочной древесины, которая устойчива к атмосферным воздействиям, придавая дому завершённый вид.

Инженерные коммуникации

Проект полностью готов для подключения инженерных систем: водоснабжения, отопления и электричества.

Сборка и доставка

  • Сборка: выполняется непосредственно на участке заказчика.
  • Доставка: включена в радиусе 30 км от Твери.

Индивидуальный подход

Проект «Неаполь» позволяет изменить стандартное решение под ваши потребности:

  • Изменение планировки.
  • Замена материалов отделки (например, фасадные панели, блок-хаус).
  • Увеличение толщины утеплителя для повышения энергоэффективности.
  • Персонализация стиля, дополнительные помещения, уникальные конструктивные решения.

Заключение

Проект каркасного дома «Неаполь» — это оптимальное решение для тех, кто ищет просторный, энергоэффективный и надёжный дом. Продуманная планировка, высококачественные материалы и современные технологии делают его идеальным выбором для комфортной жизни за городом.

В нашей компании есть огромное количество проектов каркасных домов которые мы предоставляем совершенно бесплатно при заключении договора на строительство.

Постройте свой идеальный дом с проектом «Неаполь»!