Добавить в корзинуПозвонить
Найти в Дзене

Проект деревянного каркасного дома «Тверь»

Комплектация «Тёплый контур» Проект каркасного дома «Тверь» — это современное решение для комфортного проживания в любое время года. Дом сочетает в себе энергоэффективность, долговечность и стильный внешний вид. Благодаря качественным материалам и проверенным технологиям строительства, дом полностью соответствует требованиям современного загородного жилья. Проект подходит для круглогодичного проживания семьи из 3–5 человек. Используемые материалы и технологии обеспечивают высокий уровень теплоизоляции и долговечности. Предусмотрены два варианта фундамента, подходящих для любых условий: Обвязка свайного поля выполняется из бруса естественной влажности 150×200 мм для равномерного распределения нагрузки. Конструкция дома выполнена из высококачественной древесины, что обеспечивает её прочность: Силовой каркас служит основой для утепления и дальнейшей отделки. Кровельная система обеспечивает защиту от осадков, ветра и перепадов температур: Дополнительно на крыше установлены: Для энергоэ
Оглавление

Комплектация «Тёплый контур»

Проект каркасного дома «Тверь» — это современное решение для комфортного проживания в любое время года. Дом сочетает в себе энергоэффективность, долговечность и стильный внешний вид. Благодаря качественным материалам и проверенным технологиям строительства, дом полностью соответствует требованиям современного загородного жилья.

Общие характеристики

  • Название проекта: Тверь
  • Комплектация: Тёплый контур
  • Этажность: Одноэтажный каркасный дом
  • Размеры дома: 7550 × 11340 мм
  • Фундамент: ЖБ сваи или винтовые сваи
  • Общая площадь: около 91 м² (в зависимости от планировки)

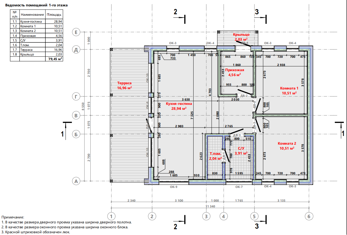
Планировка помещений

  • Кухня-гостиная: 28,94 м²
  • Комната 1: 10,51 м²
  • Комната 2: 10,51 м²
  • Прихожая: 4,56 м²
  • Санузел: 3,91 м²
  • Техническое помещение: 2,04 м²
  • Терраса: 16,96 м²
  • Крыльцо: 2,03 м²

Проект подходит для круглогодичного проживания семьи из 3–5 человек. Используемые материалы и технологии обеспечивают высокий уровень теплоизоляции и долговечности.

-2

Фундамент

Предусмотрены два варианта фундамента, подходящих для любых условий:

  1. Железобетонные сваи — подходят для большинства типов грунтов, обеспечивая надежность и защиту от просадок.
  2. Винтовые сваи — быстро монтируются и минимально воздействуют на ландшафт.

Обвязка свайного поля выполняется из бруса естественной влажности 150×200 мм для равномерного распределения нагрузки.

-3

Силовой каркас

Конструкция дома выполнена из высококачественной древесины, что обеспечивает её прочность:

  • Цокольное перекрытие: доска 50×200 мм камерной сушки.
  • Каркас стен: доска 50×150 мм камерной сушки.
  • Ветрозащита: подшивка доской 25×150 мм естественной влажности с шагом 150 мм.

Силовой каркас служит основой для утепления и дальнейшей отделки.

-4

Крыша

Кровельная система обеспечивает защиту от осадков, ветра и перепадов температур:

  • Стропильная система: доска 50×200 мм камерной сушки.
  • Ветро-влагозащитная мембрана.
  • Вентиляционный зазор: брусок 45×45 мм.
  • Обрешётка: доска 25×100 мм камерной сушки.
  • Кровля: металлочерепица 0,5 мм от Grandline.

Дополнительно на крыше установлены:

  • Водосточная система из ПВХ.
  • Снегозадержатели из металла.
  • Вентиляционные выходы.

Утепление

Для энергоэффективности предусмотрено утепление всех конструкций дома:

  • Внешние стены: базальтовая вата 150 мм.
  • Внутренние перегородки: базальтовая вата 100/150 мм.
  • Цокольное перекрытие: базальтовая вата 200 мм.
  • Кровельная конструкция: базальтовая вата 200 мм.

Защита утеплителя обеспечивается пароизоляцией и ветро-влагозащитной мембраной.

Внешняя отделка

Отделка дома сочетает эстетичность и долговечность:

  • Вентилируемый зазор из бруска 25×50 мм.
  • Имитация бруса категории АВ 16×138 мм.
  • Цоколь: облицовка деревянными рейками 25×50 мм.
  • Окна: энергосберегающие стеклопакеты, ПВХ профиль 60 мм.
  • Входная дверь: временная металлическая.

Терраса и крыльцо

Терраса и крыльцо выполнены из прочной древесины, устойчивой к внешним воздействиям.

Инженерные коммуникации

Дом готов к подключению систем водоснабжения, отопления и электричества. Все проходные элементы предусмотрены.

Сборка и доставка

  • Сборка дома выполняется на участке заказчика.
  • Доставка материалов включена в радиусе 30 км от Твери.

Индивидуальный подход

Проект «Тверь» можно адаптировать под ваши нужды:

  • Планировка: измените расположение комнат.
  • Материалы отделки: возможна замена на фасадные панели, блок-хаус и другие материалы.
  • Толщина утеплителя: увеличьте толщину для дополнительной энергоэффективности.

Заключение

Проект каркасного дома «Тверь» — это стильный, комфортный и энергоэффективный дом, идеально подходящий для круглогодичного проживания. Просторная кухня-гостиная, две спальни и функциональные помещения обеспечивают комфорт для всей семьи.

В нашей компании есть огромное количество проектов каркасных домов которые мы предоставляем совершенно бесплатно при заключении договора на строительство.

Закажите проект «Тверь» уже сегодня и создайте дом своей мечты!