Найти в Дзене

Ошибки при проектировании интерьера. Часть 1

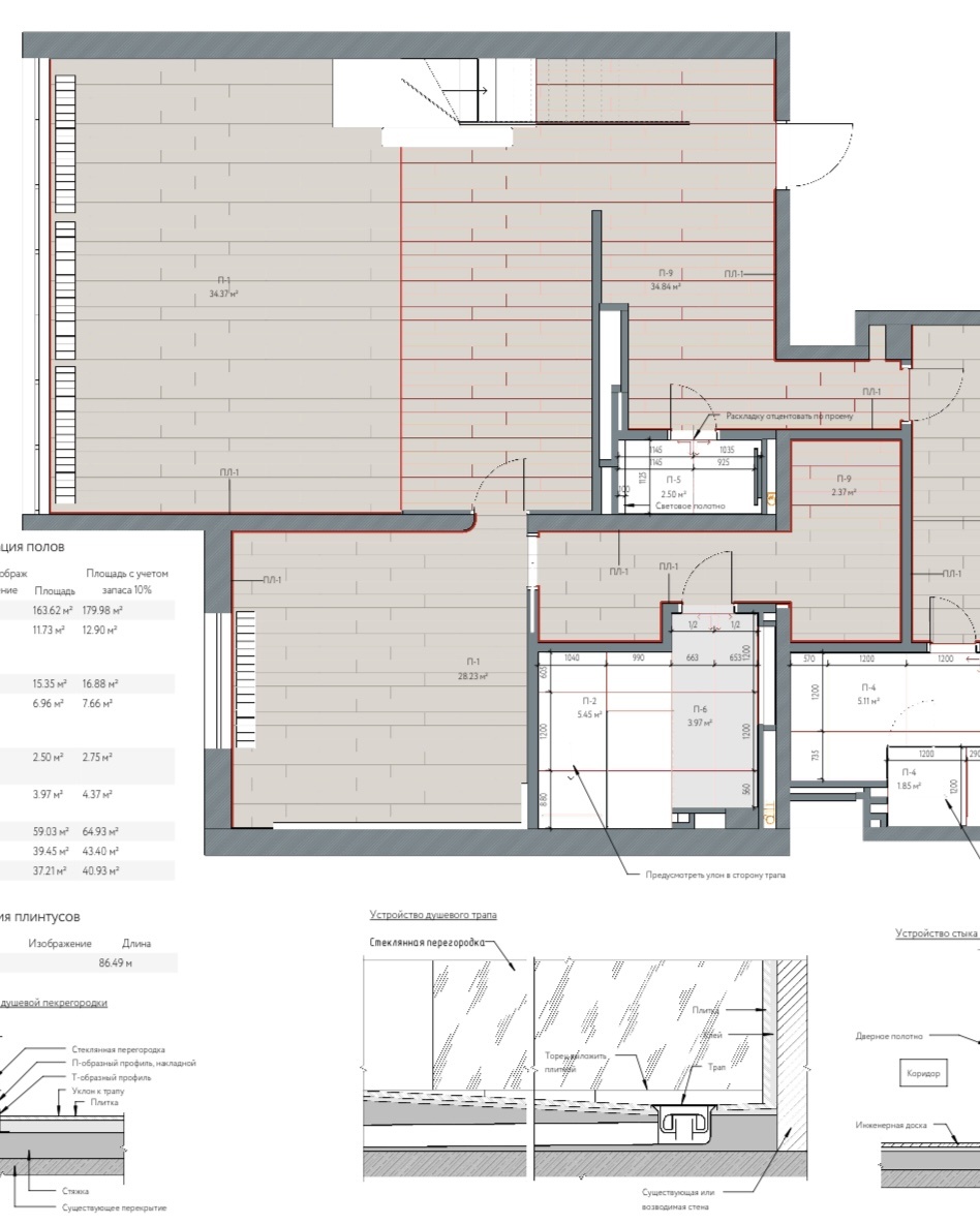
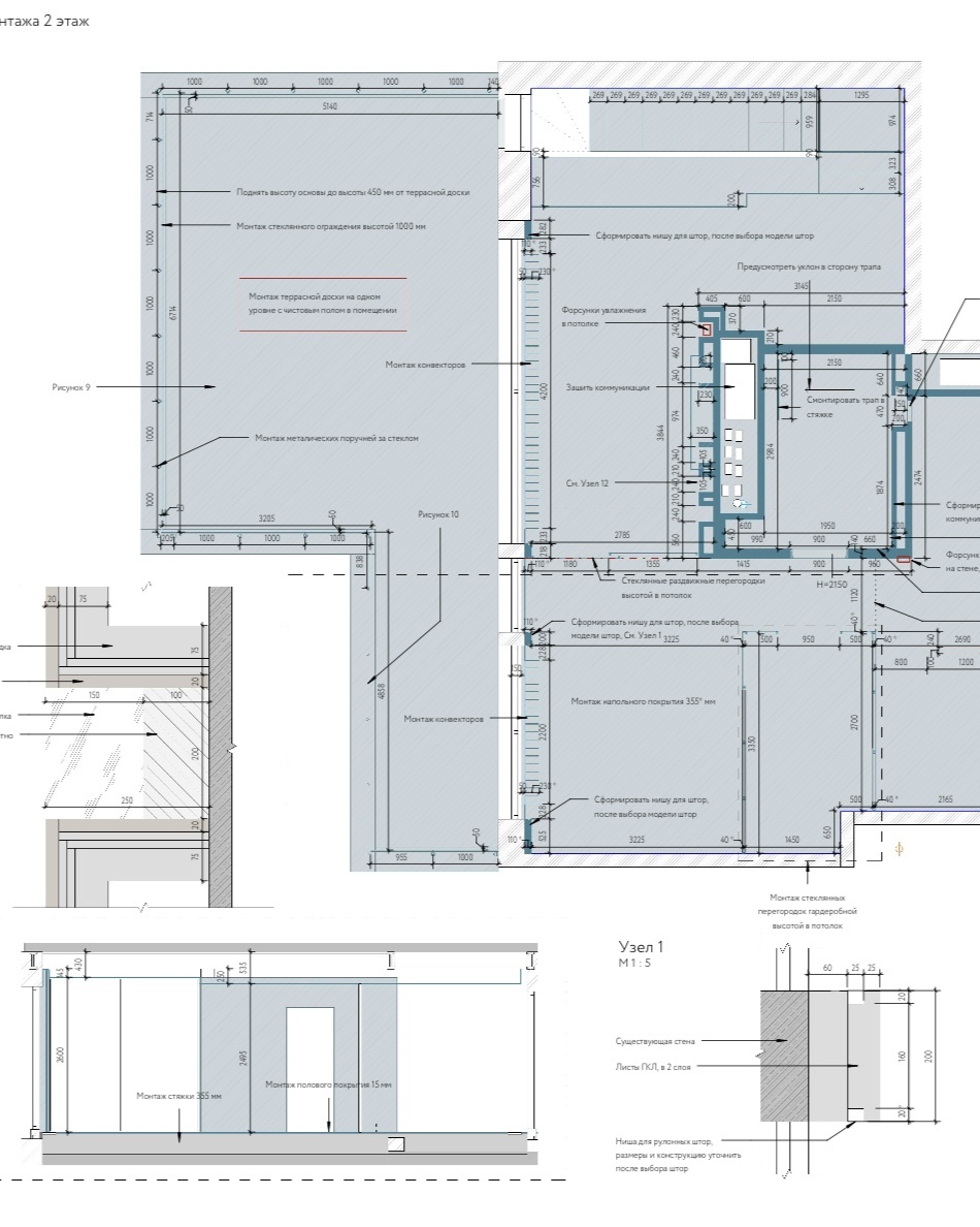
Дизайн интерьера — это не только творческий процесс, но и сложная инженерная задача. Каждая деталь должна работать на комфорт, эстетику и долговечность. Команда The Lin делится несколькими распространёнными ошибками, которые могут испортить проект, чтобы вы смогли избежать их. 1. Отсутствие чёткого плана Без подробного дизайн-проекта интерьер теряет целостность: стили не совпадают, мебель оказывается неподходящей, а коммуникации требуют доработки. Проект позволяет заранее увидеть, как будет выглядеть и функционировать пространство, избежать хаотичных решений и лишних расходов. Чёткий план помогает оптимизировать время, бюджет и усилия. 2. Игнорирование эргономики Пространство, где мебель мешает передвижению, кухня некомфортна в использовании, а розетки находятся в неудобных местах, становится источником раздражения. Эргономика — это не только про удобство, но и про долговечность: грамотное планирование зон снижает износ интерьера и техники. Каждый элемент должен работать на комфорт

Дизайн интерьера — это не только творческий процесс, но и сложная инженерная задача. Каждая деталь должна работать на комфорт, эстетику и долговечность. Команда The Lin делится несколькими распространёнными ошибками, которые могут испортить проект, чтобы вы смогли избежать их.

1. Отсутствие чёткого плана

Без подробного дизайн-проекта интерьер теряет целостность: стили не совпадают, мебель оказывается неподходящей, а коммуникации требуют доработки. Проект позволяет заранее увидеть, как будет выглядеть и функционировать пространство, избежать хаотичных решений и лишних расходов. Чёткий план помогает оптимизировать время, бюджет и усилия.

2. Игнорирование эргономики

Пространство, где мебель мешает передвижению, кухня некомфортна в использовании, а розетки находятся в неудобных местах, становится источником раздражения. Эргономика — это не только про удобство, но и про долговечность: грамотное планирование зон снижает износ интерьера и техники. Каждый элемент должен работать на комфорт повседневной жизни.

3. Неправильное освещение

Одна люстра в центре комнаты или неравномерное распределение светильников делают интерьер плоским. Освещение должно не только обеспечивать видимость, но и подчеркивать текстуры, создавать акценты и комфортную атмосферу. Использование диммеров и различных сценариев освещения помогает адаптировать пространство под разные задачи и настроение.

4. Перегруженность цветами и материалами

Пример слишком яркого и контрастного интерьера
Пример слишком яркого и контрастного интерьера
Пример более гармоничного интерьера от студии The Lin
Пример более гармоничного интерьера от студии The Lin

Слишком яркие или контрастные элементы создают ощущение визуального хаоса, а чрезмерное смешение фактур утомляет. Для гармоничного интерьера важно работать с ограниченной палитрой, где есть место как для акцентов, так и для спокойного фона. Дизайнеры рекомендуют использовать максимум 2–3 основные текстуры и несколько акцентных элементов.

5. Размещение мебели вдоль стен

Расстановка мебели только по периметру комнаты создаёт пустоту в центре и делает пространство менее функциональным. Важно зонировать интерьер с помощью мебели, создавая уютные уголки для общения, отдыха или работы. Например, диван, расположенный не вдоль стены, а в центре комнаты, помогает визуально разделить зоны и добавить динамику пространству.

Чтобы избежать этих ошибок, важно сотрудничать с профессионалами. Команда The Lin проектирует интерьеры, где каждая деталь продумана для вашего комфорта. Узнайте больше на нашем сайте: www.thelin.studio