Добавить в корзинуПозвонить
Найти в Дзене

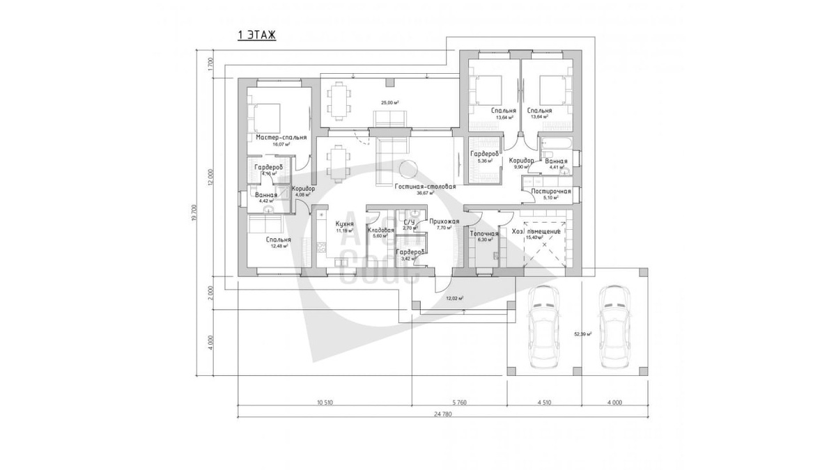
Проект одноэтажного дома «Квадр Блэк»

Проект дома «Квадр Блэк» имеет площадь 182,24 м² и включает: - 4 спальни - 3 санузла - гостиную-столовую 36,67 м² - террасу 25 м² - гараж 52,39 м² - размеры 19 м на 24 м «Квадр Блэк» – это универсальное жилье, дополненное террасой, крыльцом и навесом для машины, его дизайн сочетает современный стиль и комфорт. В центре дома находится светлая гостиная-столовая, где большие окна создают уютную атмосферу для общения и отдыха. Из неё есть выход на террасу. В проекте предусмотрено четыре спальни, включая мастер-спальню с гардеробной и ванной. Остальные спальни идеально подходят для детей или гостей, также можно использовать их в качестве кабинетов. Хозяйственные блоки помогут организовать хранение вещей. Также имеет значение внешний вид: навес для автомобиля защищает его от непогоды и обеспечивает удобный доступ. Как построить дом в Тюмени? Как построить дом в Москве? Готовые дома в Тюмени Готовые дома в Москве Земельные участки в Тюмени Задать вопрос в ТГ И подписывайтесь на наш канал, что

Проект дома «Квадр Блэк» имеет площадь 182,24 м² и включает:

- 4 спальни

- 3 санузла

- гостиную-столовую 36,67 м²

- террасу 25 м²

- гараж 52,39 м²

- размеры 19 м на 24 м

«Квадр Блэк» – это универсальное жилье, дополненное террасой, крыльцом и навесом для машины, его дизайн сочетает современный стиль и комфорт.

В центре дома находится светлая гостиная-столовая, где большие окна создают уютную атмосферу для общения и отдыха. Из неё есть выход на террасу.

В проекте предусмотрено четыре спальни, включая мастер-спальню с гардеробной и ванной. Остальные спальни идеально подходят для детей или гостей, также можно использовать их в качестве кабинетов. Хозяйственные блоки помогут организовать хранение вещей.

Также имеет значение внешний вид: навес для автомобиля защищает его от непогоды и обеспечивает удобный доступ.

-2

Понравился проект? Заказать проект или выбрать подобный можно по телефону: +79323212510. Звоните или пишите. Заявки принимаются по вотцап, телеграмм. Готовы рассчитать для вас смету!

Как построить дом в Тюмени?

Как построить дом в Москве?

Готовые дома в Тюмени

Готовые дома в Москве

Земельные участки в Тюмени

Задать вопрос в ТГ

И подписывайтесь на наш канал, чтобы не пропустить новые интересные проекты.

#проектдома #проектодноэтажногодома #построитьдом #купитьдом

#одноэтажныйдом #лучшиеодноэтажныедома #дом #новыедома