Добавить в корзинуПозвонить
Найти в Дзене
Сметное дело

Сальник

В дополнение к вопросу о сальниках, рассмотренному в рамках вебинара "Сметное дело. Выпуск 19" уточним, что затраты по установке сальника нормами таблицы ГЭСН16-07-006 не учтены: Нормами данной таблицы учтена только заделка, но вот затраты на установку конструкции сальника необходимо учитывать дополнительно. Конструкция сальника - это закладная металлическая конструкция, гильза: Затраты на установку закладных конструкций мы, как правило, определяем по нормам таблицы ГЭСН06 (по весу конструкций), а установка непосредственно гильз по ГЭСН29 (по количеству гильз): Применение норм таблицы ГЭСН06-03-004 или ГЭСН29-01-053 зависит от условия производства работ - в ходе строительства или в ходе ремонта. А ка Вы определяете затраты на установку конструкций сальников?

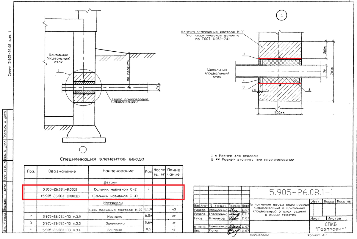
В дополнение к вопросу о сальниках, рассмотренному в рамках вебинара "Сметное дело. Выпуск 19" уточним, что затраты по установке сальника нормами таблицы ГЭСН16-07-006 не учтены:

Нормами данной таблицы учтена только заделка, но вот затраты на установку конструкции сальника необходимо учитывать дополнительно.

Конструкция сальника - это закладная металлическая конструкция, гильза:

-3

Затраты на установку закладных конструкций мы, как правило, определяем по нормам таблицы ГЭСН06 (по весу конструкций), а установка непосредственно гильз по ГЭСН29 (по количеству гильз):

Применение норм таблицы ГЭСН06-03-004 или ГЭСН29-01-053 зависит от условия производства работ - в ходе строительства или в ходе ремонта.

А ка Вы определяете затраты на установку конструкций сальников?