Добавить в корзинуПозвонить
Найти в Дзене

И снова анонс проекта - дом 200 м2 с гаражом, для длинного участка

Длинные участки нужно осваивать особым образом, бережно относясь к их ширине, и максимально сокращая длину. Чтоб не чувствовать себя как в тоннеле. Статья о принципах комфортного расположения дома на участке 👇 Для примера - посадка дома на участке 20х60 метров (это типичный участок, две штуки по 6 соток). Размер дома 12х23 метра. Дом посадили ближе к дороге, и чуть ближе к одному краю, чтобы перед окнами гостиной места было побольше. Стандартная схема - впереди палисадник, сзади - сад. Подборка обзоров проектов длинных домов (14 штук) 👇 Сделать длинный дом комфортным непросто. На этот раз задача ещё усложняется желанием устроить гараж. А гараж, конечно, всегда впереди, значит дом ещё длиннее длинного :). Планировку делали на базе дома КОРСИКА 👇, немного увеличив его в том числе и в ширину (сейчас тенденция к увеличению площади дома) В дом постарались вместить максимальное число "хотелок" из запросов: Как всегда, интересно, что вы об этом думаете :) пишите в комментариях. А мы по

Длинные участки нужно осваивать особым образом, бережно относясь к их ширине, и максимально сокращая длину. Чтоб не чувствовать себя как в тоннеле.

Статья о принципах комфортного расположения дома на участке 👇

КАК РАСПОЛОЖИТЬ ДОМ НА УЧАСТКЕ?
Инваполис - проекты рациональных домов 24 июля 2020

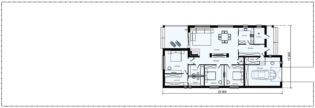
Для примера - посадка дома на участке 20х60 метров (это типичный участок, две штуки по 6 соток). Размер дома 12х23 метра. Дом посадили ближе к дороге, и чуть ближе к одному краю, чтобы перед окнами гостиной места было побольше. Стандартная схема - впереди палисадник, сзади - сад.

Обратите внимание, что приватная часть сада получилась гармоничной формы. Если не превратить нечаянно это пространство в коридор, посадив вдоль забора слева и справа большие деревья, то всё будет удобно и красиво.
Обратите внимание, что приватная часть сада получилась гармоничной формы. Если не превратить нечаянно это пространство в коридор, посадив вдоль забора слева и справа большие деревья, то всё будет удобно и красиво.

Подборка обзоров проектов длинных домов (14 штук) 👇

Проекты одноэтажных домов для узких длинных участков | Инваполис - проекты рациональных домов | Дзен

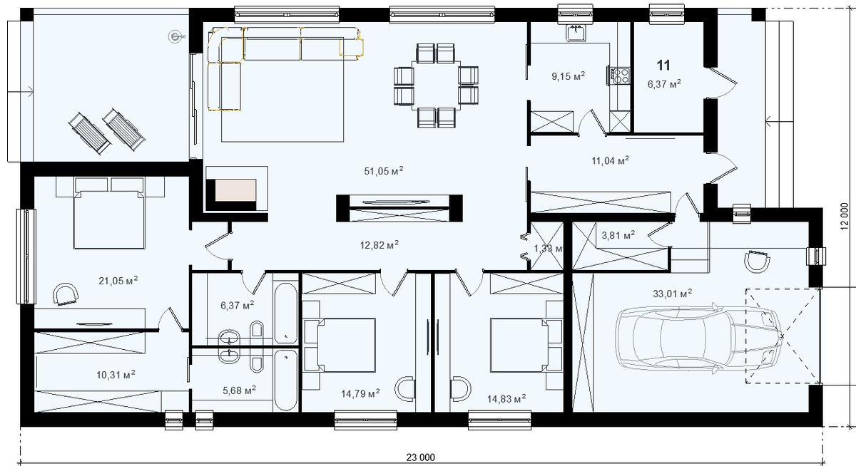
Сделать длинный дом комфортным непросто. На этот раз задача ещё усложняется желанием устроить гараж. А гараж, конечно, всегда впереди, значит дом ещё длиннее длинного :).

-2

Планировку делали на базе дома КОРСИКА 👇, немного увеличив его в том числе и в ширину (сейчас тенденция к увеличению площади дома)

КОРСИКА 133 м2 - проект современного одноэтажного дома 11х20 из пеноблоков, для длинного участка, с 3 спальнями
Инваполис - проекты рациональных домов 12 декабря 2020

В дом постарались вместить максимальное число "хотелок" из запросов:

  1. Сделали изолированную кухню на два входа - сразу из прихожей, и из столовой.
  2. Гостиная 50 метров с выходом на террасу
  3. Мастер-спальня с обзором сада, с гардеробной и ванной.
  4. Большая вторая ванная с постирочной
  5. Две одинаковых детских, чтоб никому не обидно
  6. Кладовка для сезонного и вторая кладовка для уборочно-гладильных принадлежностей.
  7. Котельная с отдельным входом для обслуживающего работника
  8. ГАРАЖ!! Причем не просто гараж, а гараж с местами хранения и с рабочим местом. И с окном. И со входом в дом, в прихожую.

Как всегда, интересно, что вы об этом думаете :) пишите в комментариях.

А мы пока сделаем внешний вид.
С четырехскатной кровлей, примерно в таком стиле 👇

БОРГО 124 м2 - проект современного одноэтажного дома 11х18 с тремя спальнями, из поризованного камня и кирпича.
Инваполис - проекты рациональных домов 20 февраля 2021

► Все проекты одноэтажных домов ИНВАПОЛИС - здесь на сайте

► Если планируете строительство или просто любите смотреть домики и читать статьи о частном домостроении, подпишитесь на наш канал ДЗЕН