Добавить в корзинуПозвонить
Найти в Дзене
DIVAN.RU

ДО/ПОСЛЕ: вау-переделка «уставшей» семейной трешки

Капитальный ремонт и полное преображение без сноса стен — смотрим, что получилось. Об объекте: трехкомнатная квартира 127,3 кв.м, г. Москва, ЮЗАО, р-н Коньково Авторы проекта: дизайнер Яна Гаевская Владелица этой квартиры — бизнес-леди, работающая в сфере IT, ведет активный образ жизни и много путешествует. У нее есть два сына: старший уже живет отдельно, а младший пока с ней. Молодой человек учится на очном отделении в университете на юриста. Хозяйка обратилась к дизайнеру Яне Гаевской с просьбой обновить интерьер. Существующая планировка ее полностью устраивала, требовалось добавить красок, используя бордовый цвет, и меблировать квартиру. Стены выровняли и покрасили, напольное покрытие и отделку потолка обновили. «Я предложила сочетание бордового с небесно-голубым как основу и совместила это с деревянной фактурой предметов мебели и отделки окон, которую по желанию заказчицы оставили от прежнего интерьера», – говорит Яна Гаевская. Кухня и гостиная в квартире объединены. Раньше здесь б
Оглавление

Капитальный ремонт и полное преображение без сноса стен — смотрим, что получилось.

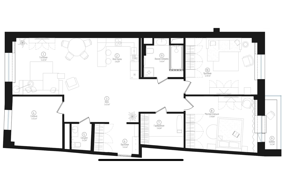
Об объекте: трехкомнатная квартира 127,3 кв.м, г. Москва, ЮЗАО, р-н Коньково

Авторы проекта: дизайнер Яна Гаевская

Владелица этой квартиры — бизнес-леди, работающая в сфере IT, ведет активный образ жизни и много путешествует. У нее есть два сына: старший уже живет отдельно, а младший пока с ней. Молодой человек учится на очном отделении в университете на юриста.

Хозяйка обратилась к дизайнеру Яне Гаевской с просьбой обновить интерьер. Существующая планировка ее полностью устраивала, требовалось добавить красок, используя бордовый цвет, и меблировать квартиру.

Планировочное решение
Планировочное решение

Стены выровняли и покрасили, напольное покрытие и отделку потолка обновили.

«Я предложила сочетание бордового с небесно-голубым как основу и совместила это с деревянной фактурой предметов мебели и отделки окон, которую по желанию заказчицы оставили от прежнего интерьера», – говорит Яна Гаевская.

Кухня-гостиная

Кухня и гостиная в квартире объединены. Раньше здесь был стандартный для 2000-х годов ремонт. Кухонный гарнитур, хотя и был сравнительно новым, выглядел аляпистым.

Фото кухни-гостиной ДО ремонта
Фото кухни-гостиной ДО ремонта

П-образная кухня позволила оборудовать максимально удобную рабочую зон. Мест для хранения здесь в избытке — хозяйка любит готовить и владеет большим запасом техники и посуды. Барная стойка зонирует пространство и прячет за собой рабочую зону (при взгляде из гостиной). Гарнитур изготовили на заказ, фасады нежно-голубого цвета выкрасили в цвет короба над кухней.

Фасады верхнего яруса с вертикальной фрезеровкой в тандеме с мелкоформатной графичной плиткой добавляют ритм пространству. Для оформления фартука использовали керамическую плитку графитового цвета. Столешницу из искусственного камня подобрали в том же оттенке.

Прием: помня о любви заказчицы к бордовому, дизайнер деликатно использовала его в затирке межплиточных швов кухонного фартука.

Стол в обеденной зоне оставили прежний, его лишь отреставрировали и покрыли краской. Стол дополнили обеденными стульями из той же коллекции, что и полубарные, только в синем оттенке. Радиусную форму мебели подчеркнули округлым подвесным светильником.

Стену за диваном сделали акцентной, окрасив ее в бордовый цвет. Чтобы кондиционер не выбивался из общей картинки, его покрасили в тот же оттенок.

Угловой диван Эби заказали у производителя divan.ru. Модель с глубокой и комфортной посадкой, легко трансформируется в спальное место.

➡️В кадре угловой диван Эби от бренда divan.ru >>

Этот диван сейчас можно купить с выгодой до 33 000₽*! Спешите на праздничную распродажу со скидками до 60% в divan.ru >>

-8

Кресло с подставкой для ног изготовлено на заказ. Обивку для него подбирали с прямыми геометрическими линиями — они повторяют ритм фасадов кухни и ТВ-тумбы.

Радиаторы отопления скрыли за деревянными панелями, выполненными на заказ. Такое решение позволило интегрировать в интерьер деревянные окна, оставшиеся от прежнего ремонта.

Проект дизайнера Яны Гаевской; автор фото Женя Муравьева
Проект дизайнера Яны Гаевской; автор фото Женя Муравьева

Мастер-спальня

Изначально спальня выглядела безлико и скучно. Отделочные материалы и мебель не сочетались между собой.

Фото спальни ДО ремонта
Фото спальни ДО ремонта

После ремонта спальня полностью преобразилась: стены и потолок сделали светлыми, поставили широкую удобную кровать с мягким изголовьем, подобрали текстиль в тон общей гамме.

Проект дизайнера Яны Гаевской; автор фото Женя Муравьева
Проект дизайнера Яны Гаевской; автор фото Женя Муравьева

В мастер-спальне вся мебель, кроме кресла и зеркала, выполнена на заказ по эскизам дизайнера. Шкафы выкрашены в цвет стен, а внутреннее наполнение полностью адаптировано под индивидуальные запросы заказчиков.

Комфортное кресло Ансил от divan.ru служит уютным местом для отдыха и чтения. Его обивку и цвет ножек выбрали в онлайн-конструкторе на сайте бренда.

➡️В кадре кресло Ансил от бренда divan.ru >>

Гостевая спальня

Новое прочтение этой комнаты смотрится свежо и стильно. Акцентным здесь стал насыщенный синий оттенок, в который выкрасили не только стены, но и шкаф. Диван остался от предыдущего интерьера – его отдавали в ателье на реставрацию и переобшивку.

Напротив — зона ТВ. Белый фасады тумбы под ТВ повторяют ритм фасадов шкафа и панелей под окном. Телевизора пока нет — его место временно занимает картина.

Проект дизайнера Яны Гаевской; автор фото Женя Муравьева
Проект дизайнера Яны Гаевской; автор фото Женя Муравьева

Прихожая

До переделки это была стандартная непривлекательная прихожая с унылой отделкой и зеркальным шкафом-купе.

Фото прихожей ДО ремонта
Фото прихожей ДО ремонта

Новое пространство кардинально отличается от предыдущего. Входную зону сделали акцентной и нарядной, выкрасив стены и потолок в ярко-красный цвет. Для всех входящих сразу создается вау-эффект — помещение получилось камерным и очень уютным. Накладку на входной двери обновили, заказав ее в цвет межкомнатных дверей. По правую руку от входа сделали встроенный шкаф «под потолок».

Санузел и туалет

Санузел в квартире довольно просторный, но из-за темной отделки он казался тесным и неуютным. Требовалось добавить в интерьер ярких красок.

Фото санузла и туалета ДО ремонта
Фото санузла и туалета ДО ремонта

Отделку полностью заменили. Теперь на стенах — серая квадратная плитка и влагостойкая краска небесно-голубого оттенка. На полу — узорчатый керамогранит.

Ванну обыграли стеклоблоками, по форме повторяющими мелкоформатную плитку. Получилось красиво и воздушно. Для хранения и размещения стиральной машинки предусмотрели шкаф, его фасады выкрасили в цвет стен. В тумбе под раковиной и над инсталляцией также есть дополнительные места для хранения. Туалет выполнен в той же стилистике, что и совмещенный санузел.

==========
Оцените интерьер в комментариях, а если материал понравился — не забудьте поставить лайк.

🖤divan.ru — не только блог про интерьеры, но и производитель доступной дизайнерской мебели. Ищите новые идеи и переходите на сайт, чтобы воплотить их в жизнь.

*Цены актуальны на момент публикации статьи