Найти в Дзене

Антитренды в дизайне интерьера 2025. Часть 2

Продолжая тему устаревших решений, команда The Lin рассказывает ещё о пяти антитрендах, которые важно учитывать, если вы хотите создать интерьер, актуальный в 2025 году и надолго сохранить его свежесть. 1. Стандартный формат зонирования Перегородки из гипсокартона, которые фиксируют зонирование пространства, теряют популярность из-за своей громоздкости и неподвижности. Вместо них в тренде мобильные решения: стеклянные перегородки, стеллажи, портьеры или трансформируемая мебель. Это позволяет сохранять лёгкость и гибкость пространства, адаптируя его под ваши потребности. 2. Изобилие подсветки Избыточная встроенная подсветка, особенно на каждом углу — от полок до потолков, воспринимается как устаревший дизайнерский приём. Современное освещение строится на многослойности: комбинируются основные источники света, акцентное освещение и мягкие декоративные светильники. Такой подход делает интерьер более уютным и гармоничным. 3. Нарочитая классика Колонны, пилястры и чрезмерная лепнина

Продолжая тему устаревших решений, команда The Lin рассказывает ещё о пяти антитрендах, которые важно учитывать, если вы хотите создать интерьер, актуальный в 2025 году и надолго сохранить его свежесть.

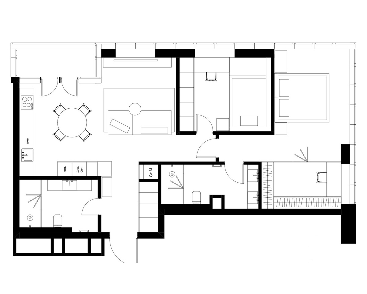
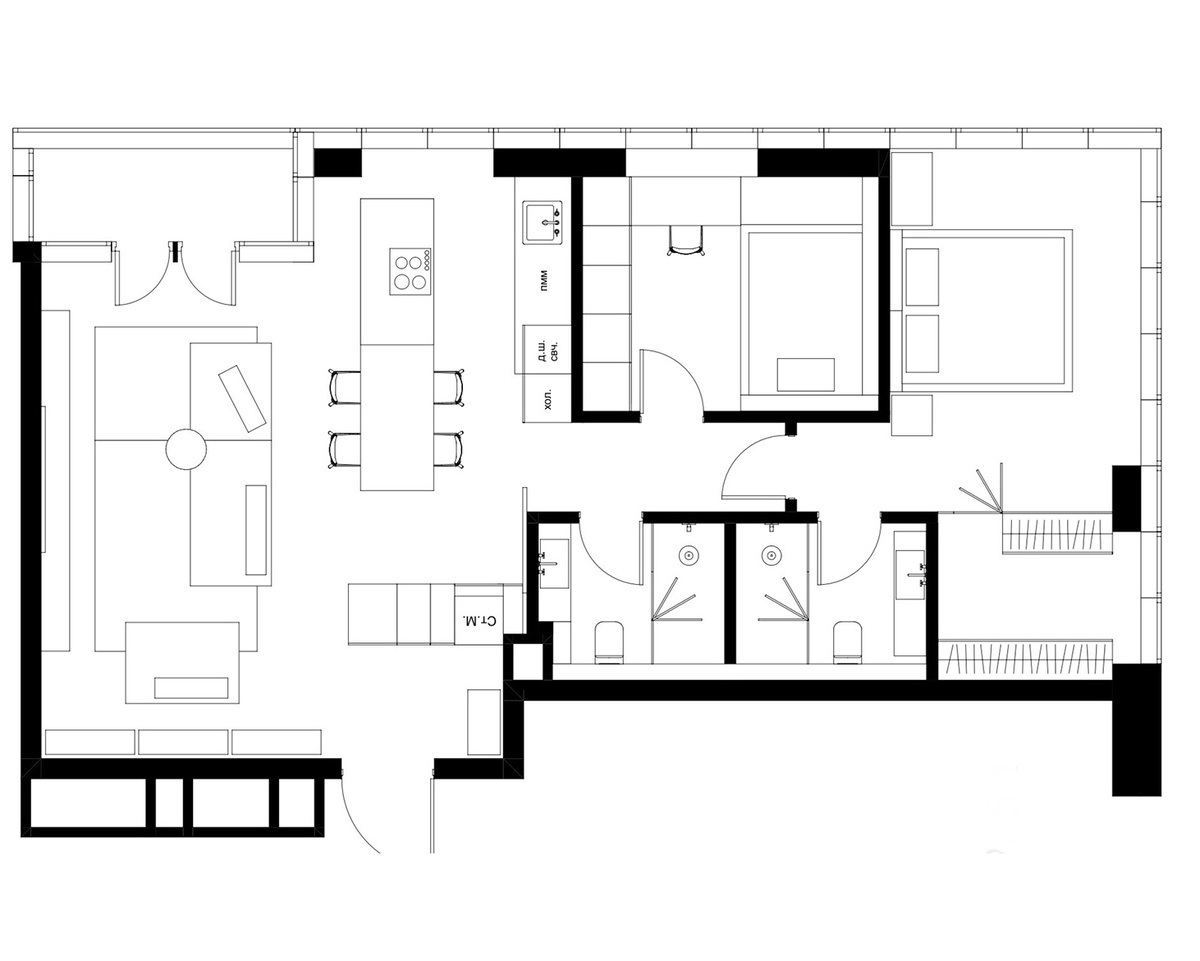
1. Стандартный формат зонирования

Пример более стандартного планировочного решения от студии The Lin
Пример более стандартного планировочного решения от студии The Lin
Пример нестандартного планировочного решения от студии The Lin
Пример нестандартного планировочного решения от студии The Lin

Перегородки из гипсокартона, которые фиксируют зонирование пространства, теряют популярность из-за своей громоздкости и неподвижности. Вместо них в тренде мобильные решения: стеклянные перегородки, стеллажи, портьеры или трансформируемая мебель. Это позволяет сохранять лёгкость и гибкость пространства, адаптируя его под ваши потребности.

2. Изобилие подсветки

Пример прихожей с большим количеством лишних источников света
Пример прихожей с большим количеством лишних источников света
Пример прихожей с умеренным количеством декоративного освещения от студии The Lin
Пример прихожей с умеренным количеством декоративного освещения от студии The Lin

Избыточная встроенная подсветка, особенно на каждом углу — от полок до потолков, воспринимается как устаревший дизайнерский приём. Современное освещение строится на многослойности: комбинируются основные источники света, акцентное освещение и мягкие декоративные светильники. Такой подход делает интерьер более уютным и гармоничным.

3. Нарочитая классика

Пример усложненного классического интерьера
Пример усложненного классического интерьера
Пример более спокойной и гармоничной концепции
Пример более спокойной и гармоничной концепции

Колонны, пилястры и чрезмерная лепнина часто воспринимаются как попытка добавить интерьеру “статусности”, но на практике делают пространство тяжёлым и неуютным. Сдержанный подход к классике — это гармония и точечные акценты, а не излишества.

4. Декоративные панели с 3D-эффектом

Пример спальни с неактуальным решением за изголовьем кровати
Пример спальни с неактуальным решением за изголовьем кровати
Пример спальни с актуальным решением за изголовьем кровати от студии The Lin
Пример спальни с актуальным решением за изголовьем кровати от студии The Lin

Объёмные панели с крупными геометрическими узорами утратили свою привлекательность, так как перегружают пространство и быстро теряют актуальность. Более гармоничным решением станут текстуры с природным рельефом, такие как штукатурка или дерево, которые создают ощущение уюта и глубины.

5. Интерьеры со строгой тематикой

Пример интерьера со строгой и яркой тематикой
Пример интерьера со строгой и яркой тематикой
Пример более нейтрального тематического интерьера от студии The Lin
Пример более нейтрального тематического интерьера от студии The Lin

Пространства, оформленные в чёткой тематике (например, морской, ретро или лофт), быстро утрачивают актуальность и выглядят устаревшими уже через несколько лет. Такие решения сложно обновить без значительных затрат. Современные интерьеры строятся на универсальном подходе: стиль слегка обыгрывается через детали, цвета и текстуры, что позволяет легко адаптировать пространство под новые тенденции или ваш изменившийся вкус.

Совет от The Lin: Избегайте решений, которые перегружают пространство и лишают его индивидуальности. Обратитесь к профессионалам студии The Lin, чтобы ваш интерьер выглядел современно, функционально и со вкусом. Узнайте больше о наших проектах на www.thelin.studio