Добавить в корзинуПозвонить
Найти в Дзене

Интерьер двухкомнатных апартаментов 71 м² в Москве: планировка, дизайн и фото

Как оформить двухкомнатные апартаменты площадью 71 м² с мастер-спальней, двумя ванными и кухонным островом? В этом проекте мы соединили дизайнерские приёмы, искусство и поп-культурный декор, чтобы создать функциональный и нестандартный интерьер в Москве. Рассказываем, как продумана планировка, зонирование и наполнение квартиры. Привет! Меня зовут Карен Карапетян, я — архитектор и интерьерный дизайнер. Мы в компании Alexander Tischler проектируем и реализуем интерьеры, а также проектируем и производим корпусную мебель. Планировка от застройщика была неудачной: небольшая спальня, широкий и длинный коридор, и маленькая изолированная кухня. Мы переработали эту планировку и смогли реализовать все пожелания заказчиков, а для решения некоторых задач нашли необычные способы. Наши заказчики, активная пара, ставили перед интерьером много важных задач: сделать изолированный кабинет, удобную кухню с островом и найти в апартаментах места для коллекций и магнитов из путешествий. Мы сформировали кух
Оглавление

Как оформить двухкомнатные апартаменты площадью 71 м² с мастер-спальней, двумя ванными и кухонным островом? В этом проекте мы соединили дизайнерские приёмы, искусство и поп-культурный декор, чтобы создать функциональный и нестандартный интерьер в Москве. Рассказываем, как продумана планировка, зонирование и наполнение квартиры.

Кухня-гостиная в современном стиле
Кухня-гостиная в современном стиле

Привет! Меня зовут Карен Карапетян, я — архитектор и интерьерный дизайнер. Мы в компании Alexander Tischler проектируем и реализуем интерьеры, а также проектируем и производим корпусную мебель.

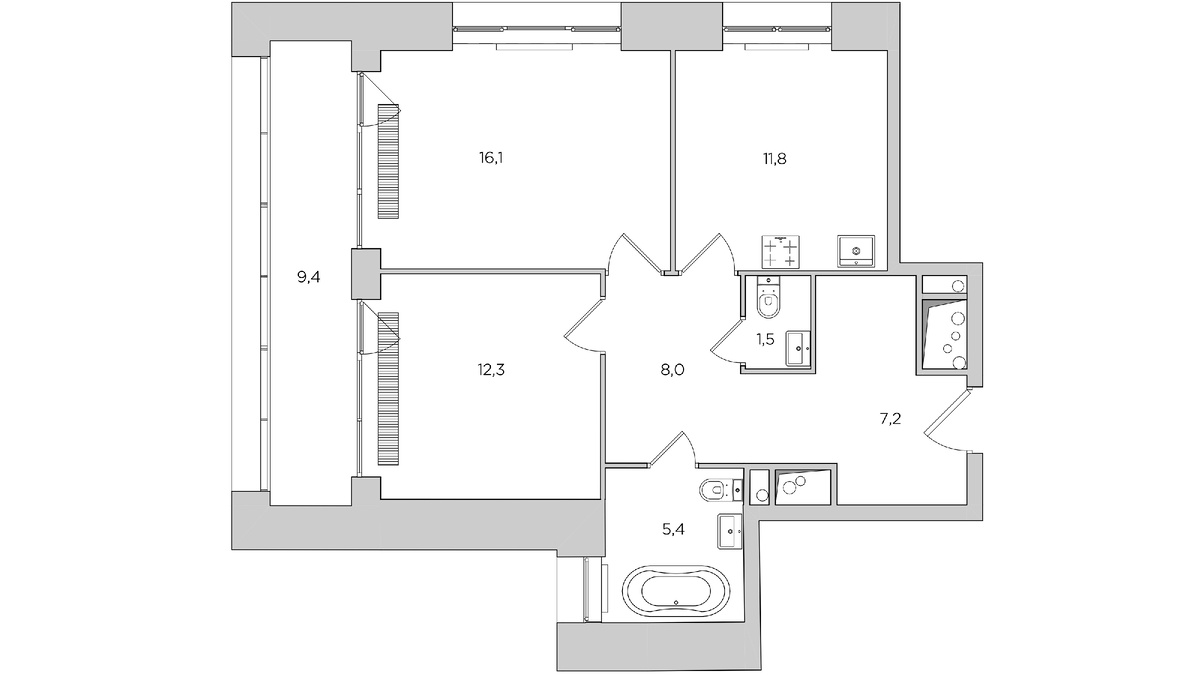
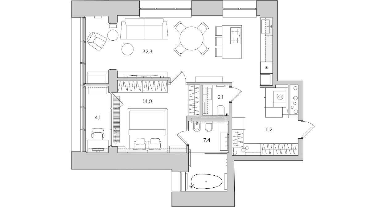
Планировка двухкомнатных апартаментов
с кухней-гостиной и мастер-спальней

Планировка от застройщика была неудачной: небольшая спальня, широкий и длинный коридор, и маленькая изолированная кухня. Мы переработали эту планировку и смогли реализовать все пожелания заказчиков, а для решения некоторых задач нашли необычные способы.

Наши заказчики, активная пара, ставили перед интерьером много важных задач: сделать изолированный кабинет, удобную кухню с островом и найти в апартаментах места для коллекций и магнитов из путешествий.

Дизайн интерьера кухни-гостиной

Мы сформировали кухню-гостиную площадью 32,3 м² , здесь три больших окна и несколько функциональных зон.

Кухня-гостиная с островом
Кухня-гостиная с островом

Остров станет комфортным местом для завтраков — со стороны гостиной мы поставили три полубарных стула. Розетки смонтировали со стороны окна, где их не видно, так остров выглядит монолитным каменным блоком.

Кухонный остров из кварцита
Кухонный остров из кварцита

Рядом с островом на стене мы повесили стеклянные полки с подсветкой, чтобы заказчики могли разместить памятные сувениры из путешествий и предметы современного искусства.

Стеклянные полки с подсветкой в гостиной
Стеклянные полки с подсветкой в гостиной

Обеденный стол мы подобрали в нейтральной отделке, чтобы он не отвлекал внимание от стульев Midj в ярко-синей обивке. Для основания стола цвет и материал мы тоже выбирали отдельно, тонкое кольцо, которое соединяет два конуса — того же цвета, что и ножки у стульев. Над столом повесили светильники от британского дизайнера Тома Диксона. Рядом на стене в специальном лайтбоксе — плакат с героями Marvel из коллекции заказчика.

Обеденный стол мы подобрали в нейтральной отделке
Обеденный стол мы подобрали в нейтральной отделке

Диван Milano Bedding мы выбрали раскладной на тот случай, когда у хозяев останутся гости. Напротив дивана — подвесная тумба с отделкой под металл. В зоне гостиной мы смонтировали аудиосистему для объемного звука: колонки есть у телевизора и над диваном.

Диван в интерьере кухни-гостиной
Диван в интерьере кухни-гостиной

Еще одно функциональное пространство этой кухни-гостиной — небольшая зона отдыха у окна, здесь стоит кресло MisuraEmme, есть тумба для винилового проигрывателя, а над ней — навесной бар Alexander Tischler с фасадами из рифленого стекла.

Здесь же мы сформировали небольшую арку со скругленными углами, для росписи которой мы пригласили художника из Екатеринбурга Василия Матафонова. Василий зашифровал в извилистой графике важные для заказчиков слова. Над диваном мы повесили модели автомобилей из конструктора LEGO на специальных дисплеях с подсветкой.

Кухня с островом и прямой компоновкой: техника, мебель, хранение

Мы спроектировали кухонный гарнитур с островом, а изготовил его итальянский бренд Cesar, кухню мы заключили в рамку из керамогранита, в верхней части которой замаскировали решетку вытяжки. Столешницы, фартук и подоконники мы оформили кварцитом с активной каменной текстурой.

Кухонный остров в интерьере кухни-гостиной
Кухонный остров в интерьере кухни-гостиной

В острове мы установили варочную панель со встроенной вытяжкой, винный шкаф и несколько глубоких ящиков. Внутри ящиков кухни и острова подсветка включается при открытии фасадов.

Кухонный остров с варочной панелью
Кухонный остров с варочной панелью

Мастер-спальня с собственной ванной и рабочим местом

В этом интерьере небольшая спальня, всего 14 м², поэтому разместить здесь гардеробную было невозможно, но заказчики хотели объемную и красивую систему хранения. Мы подготовили проект и доверили производство шкафов в спальне итальянской фабрике MisuraEmme.

Фасады сделаны из тонированного стекла, а внутри по всей высоте шкафа смонтирована вертикальная подсветка. Ящики для аксессуаров оформлены зернистой экокожей. Зеркало в этой спальне мы установили прямо на дверном полотне.

Гардеробная со стеклянными фасадами
Гардеробная со стеклянными фасадами

Над изголовьем кровати мы сформировали панель с закруглением. Ее расписал художник, а мы смонтировали подсветку.

Мастер-спальня с ванной комнатой
Мастер-спальня с ванной комнатой

Такая подсветка особенно подчеркивает фактуру: на все стены, потолки и двери мы нанесли декоративную штукатурку. Эта же закругленная панель продолжается на лоджии.

Интерьер спальни в современном стиле
Интерьер спальни в современном стиле

На лоджии мы установили второй контур остекления, она стала теплой, и мы организовали изолированный кабинет площадью 4,1 м². С одной стороны мы поставили стол с отделкой под бетон, а с другой — шкаф для документов.

Кабинет на лоджии
Кабинет на лоджии

Ванная с окном: светлый интерьер и функциональные решения

У застройщика вход в ванную был из коридора, мы присоединили ее к спальне и увеличили, площадь ванной стала 7,4 м². Стену у окна мы оформили плиткой итальянского бренда 41zero42 с пальмовыми листьями, прислоненными к запотевшему стеклу.

Отдельно стоящая ванна и душевая никак не разделяются. Душевую лейку от Antonio Lupi мы смонтировали прямо в потолок и покрыли декоративной штукатуркой.

Встроенная душевая лейка
Встроенная душевая лейка

Для этой ванной мы спроектировали и изготовили большую навесную тумбу с интегрированной раковиной. А над инсталляцией расположили неглубокий шкаф со стеклянными фасадами и подсветкой для косметики заказчицы. На полу в спальне и ванной мы выложили паркет с имитацией палубной доски — с акцентным разделением плашек.

Подвесная тумба для ванной, Alexander Tischler
Подвесная тумба для ванной, Alexander Tischler

Интерьер прихожей с системами хранения и зеркалом

Пространство небольшой прихожей мы расширили за счет зеркала от пола до потолка. Подвесную консоль для мелочей тоже сделали из зеркал, визуально она практически растворилась.

Прихожая с зеркалом
Прихожая с зеркалом

Противоположную стену в прихожей мы заняли большим шкафом, его фасады мы покрыли декоративной штукатуркой и тоже отдали на роспись художнику. В угловом шкафу с росписью мы смонтировали коллекторный узел водоснабжения и отопления, сохранили к нему легкий доступ, здесь же осталось место для хранения чемоданов.

Шкафы в прихожей
Шкафы в прихожей

В этом интерьере после перепланировки практически не осталось коридоров, а небольшое пространство между прихожей и кухней-гостиной можно использовать полезно.

Хозяйственный шкаф в прихожей
Хозяйственный шкаф в прихожей

За черными фасадами стоят стиральная и сушильная машины, здесь же есть место для бельевой корзины и бытовых принадлежностей. Правее от хозяйственного шкафа мы установили пенал сразу для двух пылесосов: фасады не доходят до пола, там снизу будет база для робота. А внутри есть крепления и розетка для ручного.

Гостевой санузел 2,1 м²: компактно и удобно

Напротив хозяйственного шкафа — гостевой санузел. В нем мы установили большую столешницу с интегрированной раковиной и крупный кухонный смеситель. Так этот санузел можно будет использовать как филиал прачечной: застирать здесь пятна или почистить обувь. Если открыть двери шкафа и санузла, то получится удобная прачечная.

Гостевой санузел
Гостевой санузел

Стену и дверное полотно в гостевом санузле мы оформили панелями из нержавеющей стали — теперь здесь поместятся все магниты из путешествий заказчиков. Вокруг зеркального шкафа мы смонтировали RGB-подсветку, чтобы хозяева удивляли гостей.

RGB-подсветка в гостевом санузле
RGB-подсветка в гостевом санузле

Заказчики этого интерьера точно знали, что хотят видеть его дерзким и нестандартным. Мы перенесли их пожелания в дизайн-проект, а потом реализовали. Если вы тоже хотите воплотить интерьер мечты легко, давайте работать!

Оставьте заявку, мы рассчитаем предварительную стоимость производства вашего интерьера.

Мы сняли подробный обзор интерьера, где я рассказал и про другие его фишки. А также опубликовали смету интерьера на сайте