Добавить в корзинуПозвонить
Найти в Дзене

Проект современного дома из газобетонных блоков площадью 181.5 кв. м.

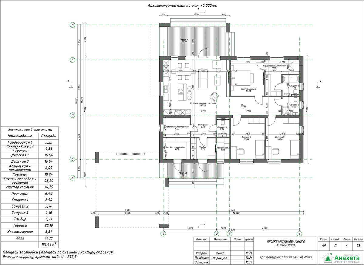
Здравствуйте, дорогие друзья и подписчики! Мы завершили работу над проектом красивого и современного индивидуального жилого дома из газобетона. Общая площадь этого прекрасного дома составляет 181,5 м², включая крыльцо и террасу. Дома из газобетона обладают особым шармом и гармонично вписываются в природный ландшафт, являясь экологичным выбором для жизни.
Оглавление

Здравствуйте, дорогие друзья и подписчики! Мы завершили работу над проектом красивого и современного индивидуального жилого дома из газобетона. Общая площадь этого прекрасного дома составляет 181,5 м², включая крыльцо и террасу. Дома из газобетона обладают особым шармом и гармонично вписываются в природный ландшафт, являясь экологичным выбором для жизни.

Архитектурный план дома

Архитектурный план
Архитектурный план
Планировочное решение
Планировочное решение

Дом в разрезах

Разрез 1-1
Разрез 1-1
Разрез 1-4
Разрез 1-4
Разрез 4-1
Разрез 4-1

Фасады дома

Фасад в осях Д-А
Фасад в осях Д-А
Фасад в осях А-Д
Фасад в осях А-Д

Визуализация дома

-9
-10
-11
-12