Найти в Дзене
Дом

Бюджетный уют: как построить семейный дом 65 м² без лишних затрат

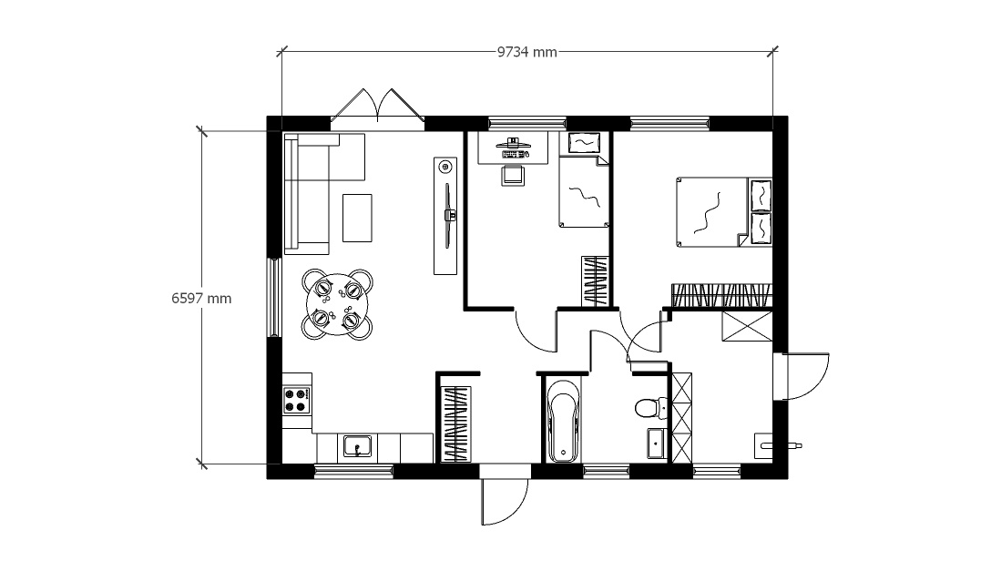
В условиях постоянного роста цен на недвижимость и строительные материалы, многие семьи сталкиваются с трудностями при выборе подходящего жилья. Как же найти идеальный дом, который будет не только комфортным, но и доступным? Ответ найти не просто, так как идеального дома для каждого попросту не существует. Но в этой статье покажу, что выбрал и построил я для своей семьи в рамках бюджета от 3 до 4 миллионов рублей. На самом деле особой привязанности к площади не было, но по итогу мы пришли к выводу, что 65 м² идеально подходит для небольшой семьи. Это пространство позволяет создать уютный и функциональный дом, где каждый член семьи сможет найти свое место. Кроме того, такой дом легче отапливать и обслуживать, что значительно снижает затраты на коммунальные услуги. Планировка небольшого дома должна быть продуманной. Эта кухня-гостиная имеет открытое планирование, что создает ощущение простора и свободы. А ощущение ещё большего простора создают косые потолки мансардного типа, или по др
Оглавление

В условиях постоянного роста цен на недвижимость и строительные материалы, многие семьи сталкиваются с трудностями при выборе подходящего жилья. Как же найти идеальный дом, который будет не только комфортным, но и доступным? Ответ найти не просто, так как идеального дома для каждого попросту не существует. Но в этой статье покажу, что выбрал и построил я для своей семьи в рамках бюджета от 3 до 4 миллионов рублей.

Почему именно 65 м²?

На самом деле особой привязанности к площади не было, но по итогу мы пришли к выводу, что 65 м² идеально подходит для небольшой семьи. Это пространство позволяет создать уютный и функциональный дом, где каждый член семьи сможет найти свое место. Кроме того, такой дом легче отапливать и обслуживать, что значительно снижает затраты на коммунальные услуги.

Удобная планировка

-2

Планировка небольшого дома должна быть продуманной.

Кухня-гостиная

-3

Эта кухня-гостиная имеет открытое планирование, что создает ощущение простора и свободы. А ощущение ещё большего простора создают косые потолки мансардного типа, или по другому второй свет. Зонирование можно легко осуществить с помощью мебели, например, барной стойки или дивана, который будет отделять кухонную зону от гостиной. В нашем случае это обеденный стол.

Удобство и функциональность:

  • Кухонная зона: В этой части комнаты удобно разместить все необходимые элементы: кухонный гарнитур, плиту, раковину и холодильник. Удобная рабочая поверхность позволит готовить с комфортом, а наличие достаточного количества шкафчиков обеспечит порядок и организованность.
-4
  • Гостиная зона: здесь достаточно места для среднего по размеру дивана и журнального столика. Также найдётся место для мягкого кресла, а телевизор или медиацентр станут центром притяжения для семейных вечеров.
-5

Освещение: Большие окна обеспечивают естественное освещение, что делает пространство более светлым и приветливым. Дополнительные источники света, такие как точечные светильники и декоративные потолочные светильники, создадут атмосферу уюта в вечернее время.

-6

Декор и стиль: Выбор цветовой палитры и декора может варьироваться от современных минималистичных решений до теплых и уютных деревенских стилей. Использование текстиля, таких как шторы и подушки, добавит уюта и индивидуальности.

-7

Для нас это не просто место для приготовления пищи, но и сердце дома, где царит тепло и комфорт. Удобная планировка и продуманный дизайн делают это пространство идеальным для семейных встреч и дружеских посиделок.

Две жилые комнаты размером 3х3,5 метра

Каждая из комнат это универсальное пространство, которое можно адаптировать под различные нужды. Благодаря своим компактным размерам, они идеально подходят для создания уютной спальни, функциональной детской или комфортной гостевой комнаты.

Спальня

В качестве спальни эта комната может стать настоящим оазисом спокойствия. Удобная двуспальная кровать займет центральное место, а компактные тумбочки по бокам добавят функциональности. Мягкие текстильные элементы, такие как шторы и покрывала, создадут атмосферу уюта. Наличие небольшого шкафа или комода позволит организовать хранение вещей, не загромождая пространство.

Детская

Если Вы планируете использовать комнату как детскую, то здесь можно разместить односпальную кровать или двухъярусную, если в семье несколько детей. Рабочий стол для занятий и полки для книг помогут создать комфортное пространство для учебы и творчества. Важно оставить достаточно места для игр, чтобы ребенок мог свободно передвигаться.

Гостевая комната

Для гостей эта комната станет уютным уголком, где они смогут отдохнуть. Разложенный диван или раскладушка обеспечат комфортный сон.

Совмещённый санузел с ванной

Такой подход позволяет максимально эффективно использовать пространство, что особенно важно в небольших домах.
Такой подход позволяет максимально эффективно использовать пространство, что особенно важно в небольших домах.
-9

Санузел, объединяющий в себе ванную и туалет, предлагает главное преимущество - это экономия пространства. Вместо двух отдельных помещений, Вы получаете одно, что позволяет сэкономить квадратные метры и сделать интерьер более открытым и светлым.

-10

Функциональность небольшой котельной в доме

Котельная — это не просто техническое помещение, а важный элемент, обеспечивающий комфорт и уют в Вашем жилище.

1. Эффективное использование пространства

Небольшая котельная может быть компактной, но при этом очень функциональной. Правильная планировка позволяет разместить все необходимые элементы: котел, бойлер, насосы и системы управления. Использование вертикального пространства, полок и шкафов для хранения инструментов и других вещей помогает максимально эффективно использовать каждый квадратный метр.

2. Удобство обслуживания

Котельная должна быть спроектирована так, чтобы обеспечить легкий доступ ко всем системам. Это упрощает процесс обслуживания и ремонта, что особенно важно для поддержания системы в рабочем состоянии. Наличие хорошей вентиляции и освещения также играет ключевую роль в удобстве эксплуатации.

3. Энергоэффективность

Современные котлы и системы отопления требуют минимального пространства, но при этом обеспечивают высокую эффективность. Установка энергоэффективного оборудования в небольшой котельной позволяет значительно сократить расходы на отопление и горячую воду, что особенно актуально в условиях растущих цен на энергоресурсы.

Если каждый квадратный метр на счету, важно максимально эффективно использовать пространство. Одним из удачных решений является организация прачечной зоны в котельной. Это не только экономит место, но и делает процесс стирки и сушки белья более удобным.

-11

Удобство и практичность

Прачечная зона в котельной позволяет объединить две важные функции в одном помещении. Здесь можно разместить стиральную машину, сушильный шкаф и даже полки для хранения моющих средств и принадлежностей. Это избавляет от необходимости выделять отдельное помещение для стирки, что особенно актуально для небольших домов.

Удобный доступ к коммуникациям

Размещение прачечной зоны в котельной также обеспечивает удобный доступ к водопроводным и канализационным системам. Это упрощает подключение стиральной машины и минимизирует риск протечек, так как все коммуникации находятся в одном месте.

Здесь же находится и лестница на чердак.
Здесь же находится и лестница на чердак.

В доме есть три входа:

  • Через котельную, со стороны улицы можно сделать навес или гараж.
  • Через террасу.
  • И основной вход через небольшую прихожую с местом для шкафа.
-13

Бюджетные решения для строительства

При строительстве бюджетного дома важно учитывать не только стоимость материалов, но и их долговечность. Вот несколько советов, как сэкономить:

  1. Выбор материалов: Используйте современные, но недорогие строительные материалы, такие как газобетон или каркасные конструкции. Они обеспечивают хорошую теплоизоляцию и долговечность.
  2. Минимализм в дизайне: Простые формы и отсутствие лишних деталей помогут сократить затраты на строительство и отделку.
  3. Энергоэффективность: Инвестируйте в качественные окна и двери, а также в утепление стен. Это поможет снизить расходы на отопление в будущем.

Заключение

-14

Этот бюджетный семейный дом площадью 65 м² — это не только доступное, но и разумное решение для современных семей. Он сочетает в себе комфорт, функциональность и экономию. В условиях кризиса на рынке недвижимости и роста цен на строительные материалы, такой дом станет отличным выбором для тех, кто хочет создать уютное гнездышко без лишних затрат. Более подробно о процессе строительства этого дома вы сможете узнать из статей на моём канале. Не упустите возможность построить свой дом уже сегодня!

-15