Добавить в корзинуПозвонить
Найти в Дзене
ДОМ с умом

Проект "Ирина": двухэтажный дом с гаражом и 4 спальнями

Это современный двухэтажный дом для семьи из 4-ех человек. Проект двухэтажный, но площадь первого этажа значительно больше второго. Из-за этого геометрия дома выглядит интереснее и сложнее. Общая площадь: 275,6 кв.м
Жилая площадь: 240,2 кв.м
Габариты: 17,5 х 18,3 м
Фундамент: монолитная железобетонная плита
Стены: керамзитоблок 390 мм, утеплитель - 100 мм.
Отделка фасада: облицовочный кирпич и фасадная штукатурка
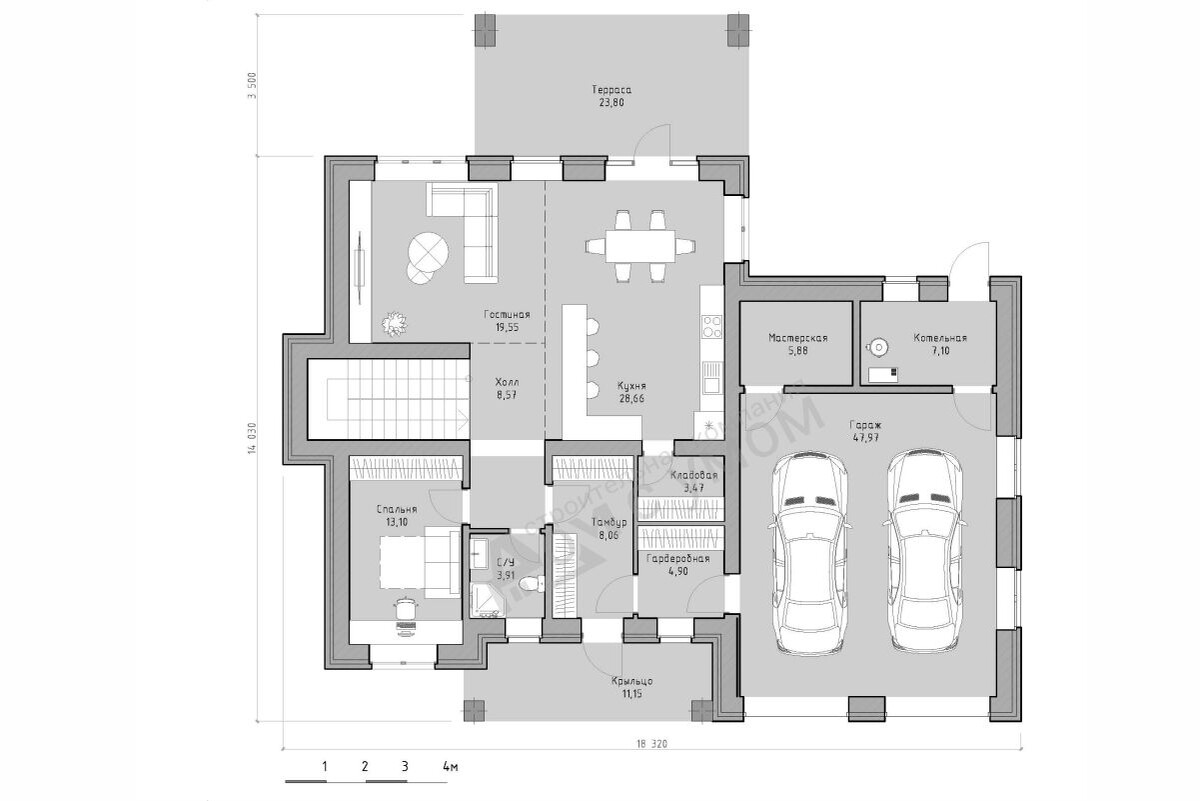
Межэтажное и чердачное перекрытия - железобетонные плиты перекрытия Крыша - из гибкой черепицы по деревянной стропильной системе Первый этаж полностью распланирован под «дневные» и технические помещения. Второй уровень представляет собой "ночную" зону, включающую три комфортабельные спальни, гардеробную и ванную комнату. Вот какие детали продуманы в проекте:
- Просторный тамбур, где свободно поместится шкаф для верхней одежды и обуви
- Огромные окна в кухне-гостиной открывают прекрасный вид и наполняют пространство воздухом и светом
- Терраса размещена со стороны
Оглавление

Это современный двухэтажный дом для семьи из 4-ех человек. Проект двухэтажный, но площадь первого этажа значительно больше второго. Из-за этого геометрия дома выглядит интереснее и сложнее.

Характеристики:

Общая площадь: 275,6 кв.м
Жилая площадь: 240,2 кв.м
Габариты: 17,5 х 18,3 м
Фундамент: монолитная железобетонная плита
Стены: керамзитоблок 390 мм, утеплитель - 100 мм.
Отделка фасада: облицовочный кирпич и фасадная штукатурка
Межэтажное и чердачное перекрытия - железобетонные плиты перекрытия Крыша - из гибкой черепицы по деревянной стропильной системе

Планировка:

Первый этаж полностью распланирован под «дневные» и технические помещения. Второй уровень представляет собой "ночную" зону, включающую три комфортабельные спальни, гардеробную и ванную комнату.

Вот какие детали продуманы в проекте:
- Просторный тамбур, где свободно поместится шкаф для верхней одежды и обуви
- Огромные окна в кухне-гостиной открывают прекрасный вид и наполняют пространство воздухом и светом
- Терраса размещена со стороны сада, летом здесь можно устраивать завтраки на свежем воздухе и принимать гостей
- Все необходимые хозяйственные помещения: кладовая, котельная, мастерская и гардеробная при входе
- Комната свободного назначения на первом этаже
- Мастер-спальня с собственной гардеробной и ванной комнатой

▪️▪️▪️▪️▪️▪️▪️▪️▪️▪️▪️▪️▪️▪️▪️▪️▪️▪️▪️▪️▪️▪️▪️▪️▪️▪️▪️▪️▪️▪️▪️
📌Жилая площадь – 240 кв.м
📌Кухня-гостиная – 48,1 кв.м
📌Спальни – 4 шт.
📌Терраса – 23,8 кв.м
📌Гараж – на 2 авто