Добавить в корзинуПозвонить
Найти в Дзене
DIVAN.RU

Контрастные и бюджетные решения в однушке 45 кв.м

«Хроническую серость» города на Неве в этой квартире компенсировали яркими акцентами. Розовый и серый, голубой и терракота — контрастные цвета аккуратно «подружили» между собой. Объект: однокомнатная квартира 45 кв.м, ЖК «Квартал Che», г. Санкт-Петербург Авторы проекта: дизайнер Наталья Гордиенко, автор фото Ярослав Конев Квартира сдавалась в «бетоне». Достоинства объекта: правильная форма комнат, наличие гардеробной. Технические сложности возникли только при проектировании санузла: пришлось «поиграть в тетрис», чтобы установить душевую, стиральную машину с раковиной и унитаз, не меняя положение мокрых точек. Солнце в Санкт-Петербурге выглядывает нечасто, потому мы приняли решение компенсировать недостаток погоды яркими акцентами в интерьере, — рассказывает дизайнер. — Площадь объекта небольшая, но правильно подобранные оттенки визуально расширили пространство и сделали интерьер визуально дороже. Кухню разделили на три функциональные зоны: готовки, столовой и отдыха. Гарнитур спроектир
Оглавление

«Хроническую серость» города на Неве в этой квартире компенсировали яркими акцентами. Розовый и серый, голубой и терракота — контрастные цвета аккуратно «подружили» между собой.

Авторы проекта: дизайнер Наталья Гордиенко, автор фото Ярослав Конев
Авторы проекта: дизайнер Наталья Гордиенко, автор фото Ярослав Конев

Объект: однокомнатная квартира 45 кв.м, ЖК «Квартал Che», г. Санкт-Петербург

Авторы проекта: дизайнер Наталья Гордиенко, автор фото Ярослав Конев

Квартира сдавалась в «бетоне». Достоинства объекта: правильная форма комнат, наличие гардеробной. Технические сложности возникли только при проектировании санузла: пришлось «поиграть в тетрис», чтобы установить душевую, стиральную машину с раковиной и унитаз, не меняя положение мокрых точек.

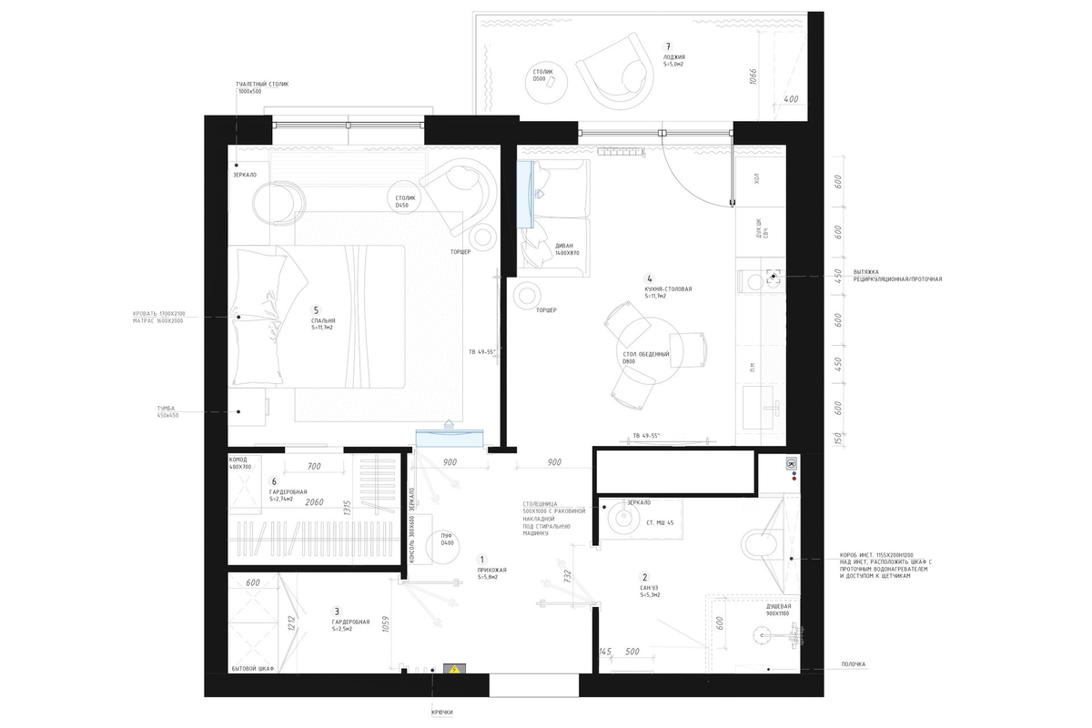
Планировочное решение и расстановка мебели
Планировочное решение и расстановка мебели
Солнце в Санкт-Петербурге выглядывает нечасто, потому мы приняли решение компенсировать недостаток погоды яркими акцентами в интерьере, — рассказывает дизайнер. — Площадь объекта небольшая, но правильно подобранные оттенки визуально расширили пространство и сделали интерьер визуально дороже.

Кухня-гостиная

Кухню разделили на три функциональные зоны: готовки, столовой и отдыха. Гарнитур спроектировали на заказ, но сложных технических решений здесь нет (бюджет проекта был ограничен). Вся техника встроенная, есть и посудомоечная машина.

Владельцам квартиры важно было предусмотреть “запасные” спальные места, поэтому на кухне появился раскладной диван Ольен от бренда divan.ru. Обивку выбрали яркую, терракотовую — диван притягивает взгляды при входе в комнату, немного отвлекая внимание от кухонной зоны.

➡️В кадре диван Ольен Velvet Terra, divan.ru >>

🎊 Сейчас этот диван можно приобрести с выгодой до 17 000₽*! Покупайте мебель и аксессуары для дома со скидками до 60% на divan.ru >>

-5

Лоджия

Из кухни-гостиной можно выйти на лоджию — панорамный вид из ее окон располагает к утренней чашечке кофе.

Авторы проекта: дизайнер Наталья Гордиенко, автор фото Ярослав Конев
Авторы проекта: дизайнер Наталья Гордиенко, автор фото Ярослав Конев

Спальня

В спальне на полу уложен ламинат «елочкой», стены окрашены в светлый оттенок. В нишу возле входа в комнату встроили шкаф «под потолок». Интересной идеей было задекорировать половину стены за изголовьем кровати рельефными панелями под покраску.

Кровать Виенсо от divan.ru расположили в центре комнаты. Элегантная модель смотрится слегка помпезно за счет капитоне и «ушек» на изголовье. Потрясающий терракотовый цвет обивки из велюра создает позитивное настроение и не надоедает.

У панорамного окна расположили кресло Пайл Bucle Smoky вместе с торшером в латунном оттенке и журнальным столиком Ньюман — это трио создает идеальное место для чтения и отдыха.

➡️В кадре Кресло Пайл Bucle Smoky и журнальный стол Ньюман Black все от divan.ru >>

Санузел

На полу в санузле уложили крупногабаритный керамогранит под мрамор, такой же, как в прихожей. На стенах белая глянцевая плитка, а в душевой — розовая, как на кухонном фартуке.

Авторы проекта: дизайнер Наталья Гордиенко, автор фото Ярослав Конев
Авторы проекта: дизайнер Наталья Гордиенко, автор фото Ярослав Конев

Для хранения здесь есть тумба под раковиной и встроенный шкаф над инсталляцией. Черные акценты в виде смесителей, полотенцесушителя и профиля в душевой добавляют графичности.

Прихожая

На полу в прихожей уложен крупногабаритный керамогранит под мрамор. Хранение здесь не предусмотрено, так как есть отдельная гардеробная комната для вещей. Акценты тоже расставлены черным: рама входной двери, светильник на стене и крючки для верхней одежды.

=========

Оцените интерьер в комментариях, а если статья понравилась — не забудьте поставить лайк.

🖤divan.ru — не только блог про интерьеры, но и производитель доступной дизайнерской мебели. Ищите новые идеи и переходите на сайт, чтобы воплотить их в жизнь.

*Цены актуальны на момент публикации статьи