Добавить в корзинуПозвонить
Найти в Дзене
Ходим в гости

Вдохновение традициями: сталинка с отсылками к русской культуре

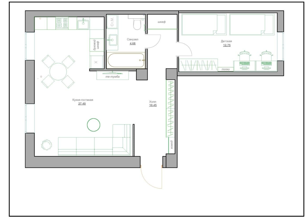
Сегодня мы идем в гости к Юлии Горловой — дизайнеру интерьеров, которая создала уникальное пространство в сталинской квартире площадью 53 квадратных метра. Дом был построен в 1958 году, и при реконструкции квартиры Юлия стремилась сохранить ее исторический характер, гармонично вписав как традиционные, так и современные элементы. В семье часто собираются гости, поэтому основное внимание уделили созданию просторной зоны для общения. При этом не забыли обустроить детскую комнату для двоих детей с рабочими местами и небольшой библиотекой. Перепланировка Юлия хотела создать открытое, светлое пространство, поэтому в квартире провели перепланировку, но при этом оставили оригинальные колонны в прихожей, ригель и кирпичные стены. Также объединили раздельные ванную и туалет. Кирпич оставили, чтобы подчеркнуть отсылку к старому времени. В этих кирпичах живет история, так зачем их прятать? Стены выкрасили в белый цвет, специально не реставрируя и не закрывая щели по углам. Гостиная Гостиная, совме

Сегодня мы идем в гости к Юлии Горловой — дизайнеру интерьеров, которая создала уникальное пространство в сталинской квартире площадью 53 квадратных метра. Дом был построен в 1958 году, и при реконструкции квартиры Юлия стремилась сохранить ее исторический характер, гармонично вписав как традиционные, так и современные элементы.

В семье часто собираются гости, поэтому основное внимание уделили созданию просторной зоны для общения. При этом не забыли обустроить детскую комнату для двоих детей с рабочими местами и небольшой библиотекой.

Перепланировка

Юлия хотела создать открытое, светлое пространство, поэтому в квартире провели перепланировку, но при этом оставили оригинальные колонны в прихожей, ригель и кирпичные стены. Также объединили раздельные ванную и туалет.

-2

Кирпич оставили, чтобы подчеркнуть отсылку к старому времени. В этих кирпичах живет история, так зачем их прятать? Стены выкрасили в белый цвет, специально не реставрируя и не закрывая щели по углам.

-3

Гостиная

Гостиная, совмещенная с кухней, стала центральной зоной квартиры. В интерьере активно использованы светлые тона, что визуально увеличивает пространство.

-4

Оконные рамы украшены наличниками, вырезанными из фанеры. Юлия вручную окрашивала их в светло-розовый цвет, в таком же цвете сделана входная зона.

-5
-6
-7

Наличники были установлены на жидкие гвозди и окрашены после предварительного грунтования.

В интерьере гостиной также выделяется картина с «русским мужиком» и светильники с деревянными элементами в форме кокошников, расписанные в стиле матрёшек.

«Над вариантом светильников я думала долго: ничего не подходило под концепцию. И тут одна из моих знакомых мастериц выложила броши на продажу в виде лиц матрешек — это была любовь с первого взгляда.

-8

Кухня

На кухне установили угловой гарнитур длиной 3,2 метра. От посудомойки хозяйка отказалась, духовку разместили в углу, сохраняя симметрию. Дизайн мебели вдохновлен эпохой середины XX века: лаконичные формы и функциональность сочетаются с ностальгическими деталями.

«Продуманное, правильное расположение перегородок позволило мне купить готовую кухню и прилично сэкономить. Угловой кухонный гарнитур специально не до потолка — своеобразная отсылка к сталинским временам. Здесь установлена газовая плита — в дальнейшем планируются межкомнатные перегородки» — рассказывает Юлия.

-9

Пол в кухне и гостиной выполнен из натурального дерева, что добавляет тепло пространству. На кухонной столешнице — минимум предметов, а вся техника спрятана в шкафах.

Также в кухне, да и в гостиной, можно заметить сразу несколько фактур: кирпич, гладкая поверхность, но самая главная изюминка — трафаретная роспись оконных проемов и ригеля. Это еще один важный элемент, отсылающий к русским традициям: на трафаретах создавали узор, аналогичный тесьме русского народного костюма.

-10

В интерьере вообще замешано многое: винтажные элементы, ретро-вещи, вроде проигрывателя или тумбы под телевизором, а также напольные вазы и кадки 1930-х годов.

-11
-12

Детская комната

Комната детей — это настоящий космический уголок. Такую тему взяли, потому что хозяйка считает космические полеты главным достижением Советского Союза.

-13
-14

На одной из стен — фреска с изображением звёздного неба. У каждого ребёнка есть своё рабочее место и личное пространство.

Из мебели тут — две кровати с подъемным механизмом, два рабочих стола, шкаф и открытые полки.

-15

Ванная комната

Санузел площадью 4 квадратных метра полностью переоборудован: здесь разместили полноценную ванну размером 180×80 сантиметров, установлена деревянная столешница из слэба, под столешницей спрятана стиральная машина.

-16
-17

И здесь не обошлось без русских узоров: оцените шторку для ванной!

-18

Квартира Юлии Горловой — пример бережного подхода к истории и создания уникального интерьера, где каждая деталь продумана до мелочей. Здесь чувствуется сочетание старого и нового, что делает пространство уютным, светлым и невероятно живым.

Напоследок покажу как квартира выглядела до ремонта:

Если вам было интересно, делитесь своим мнением об этой квартире в комментариях и читайте другие статьи: