Добавить в корзинуПозвонить
Найти в Дзене
Ручной режим

Кровать своими руками: как создать уютное место для сна

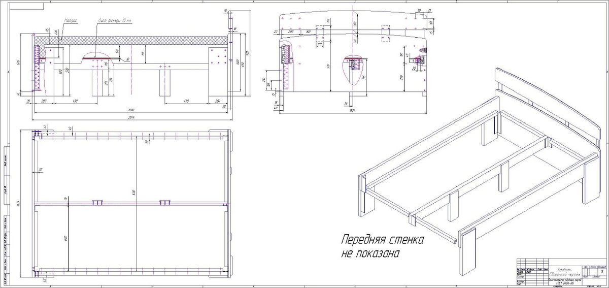
Если вы хотите добавить уникальности в интерьер своей спальни, создайте кровать своими руками! Вот список материалов, которые вам понадобятся: ■ Доски 250 × 30 × 2 см — две штуки для боковых стенок. ■ Доски 200 × 30 × 2 см — три штуки для передней и задней стенок и изголовья. ■ Брус 200 × 4 × 4 см — пять штук для несущих частей, опорных элементов и ножек. ■ Рейки 150 × 4 × 2 см — 25 + 2 штуки для реечного покрытия и крепления досок изголовья (по желанию можно заменить толстой фанерой). ■ Саморезы, клей столярный, лак и морилка для отделки. После того как все материалы будут готовы, приступайте к сборке. В конце не забудьте тщательно обработать поверхность, чтобы она была гладкой и приятной на ощупь. Подписывайтесь на «Ручной режим».

Если вы хотите добавить уникальности в интерьер своей спальни, создайте кровать своими руками!

Вот список материалов, которые вам понадобятся:

■ Доски 250 × 30 × 2 см — две штуки для боковых стенок.

■ Доски 200 × 30 × 2 см — три штуки для передней и задней стенок и изголовья.

■ Брус 200 × 4 × 4 см — пять штук для несущих частей, опорных элементов и ножек.

■ Рейки 150 × 4 × 2 см — 25 + 2 штуки для реечного покрытия и крепления досок изголовья (по желанию можно заменить толстой фанерой).

■ Саморезы, клей столярный, лак и морилка для отделки.

После того как все материалы будут готовы, приступайте к сборке. В конце не забудьте тщательно обработать поверхность, чтобы она была гладкой и приятной на ощупь.

Подписывайтесь на «Ручной режим».