Добавить в корзинуПозвонить
Найти в Дзене

"Эскизный дизайн проект" студии без визуализации.

Бывают проекты в которых можно обойтись без фото визуализации, я конечно противница этого и всегда к таким проектам делаю черновое 3d. Но запросы на "Эскизный ДП" есть, как правило это: Рассмотрим на примере , как это выглядит: Для того, чтобы строители понимали, что сносить, а что оставить. Сначала сносим, а потом указываем что строим. Теперь, можем спокойно расставлять мебель. На этом этапе уже нужно подбирать мебель к концепции и по возможности делать расстановку по ней. И показываем в черновом 3d, как выглядит планировка. Чтобы понимать, где унитаз, раковина, стиралка и другие приборы подключаемые к горячей, холодной воде и стояку канализации. Выполняется на основе плана расстановки мебели, выключатели, розетки, выводы. Так же делается на основе расстановки мебели. Привязываем светильники к выключателям. Статья , что такое сценарии 👉 https://dzen.ru/a/Z03WftoSHHQQELzL После планов приступаем к концепции. У нас уже должна быть выбрана мебель, свет, стиль и отделочные. Собираем это
Оглавление

Бывают проекты в которых можно обойтись без фото визуализации, я конечно противница этого и всегда к таким проектам делаю черновое 3d.

Но запросы на "Эскизный ДП" есть, как правило это:

  • Кто самостоятельно занимается ремонтом и надзором за ним.
  • Владельцы небольших пространств.
  • Кто хочет воплотить свои идеи, но иметь при этом минимальный набор чертежей, для строителей.

Рассмотрим на примере , как это выглядит:

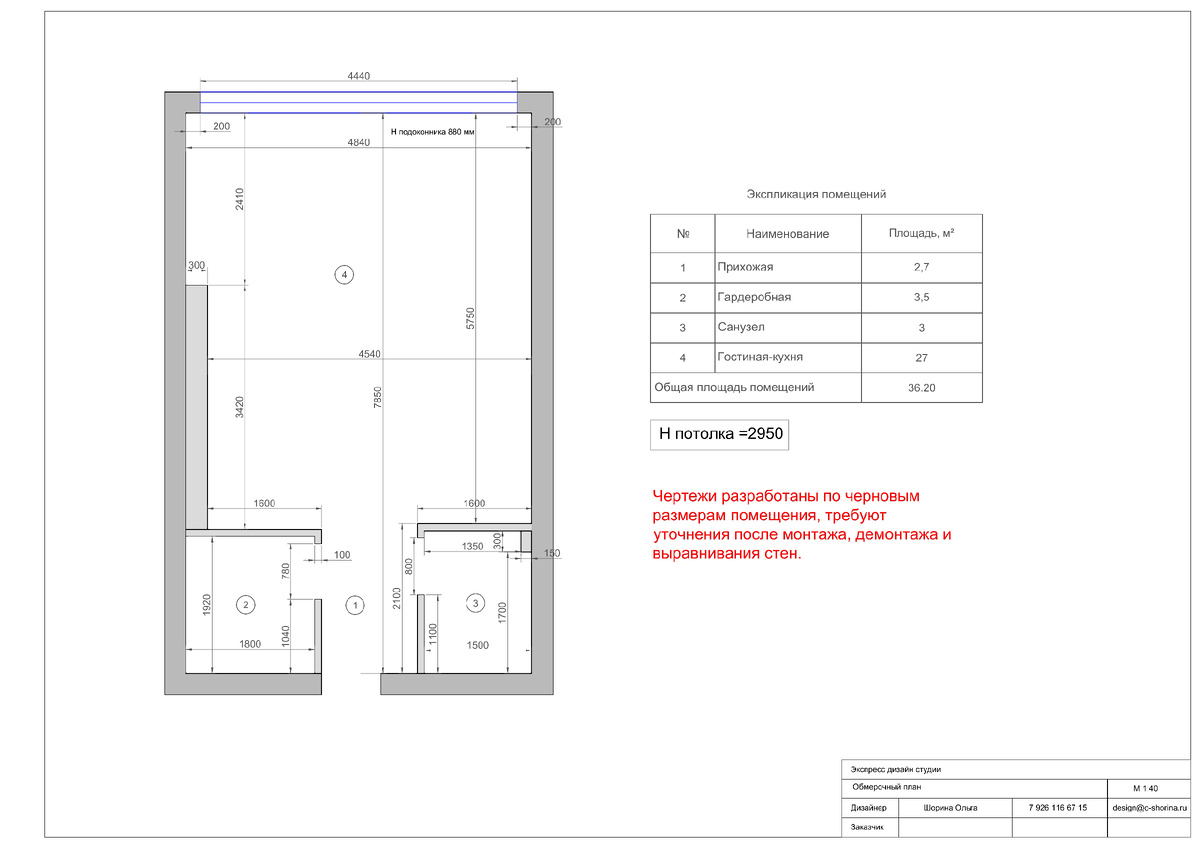
1 Обмерочный план помещения.

Обмерочный план помещения
Обмерочный план помещения

2 План демонтажа.

План демонтажа.
План демонтажа.

Для того, чтобы строители понимали, что сносить, а что оставить.

3 План монтажа.

План монтажа.
План монтажа.

Сначала сносим, а потом указываем что строим.

Обмерный после монтажа.
Обмерный после монтажа.

4 План расстановки мебели.

План расстановки мебели
План расстановки мебели

Теперь, можем спокойно расставлять мебель. На этом этапе уже нужно подбирать мебель к концепции и по возможности делать расстановку по ней.

И показываем в черновом 3d, как выглядит планировка.

5 План водоснабжения.

План водоснабжения.
План водоснабжения.

Чтобы понимать, где унитаз, раковина, стиралка и другие приборы подключаемые к горячей, холодной воде и стояку канализации.

6 План электрики.

План электрики
План электрики

Выполняется на основе плана расстановки мебели, выключатели, розетки, выводы.

7 Расстановка света.

Расстановка света
Расстановка света

Так же делается на основе расстановки мебели.

8 План сценарий света или план освещения с привязками.

План сценарий света или план освещения с привязками.
План сценарий света или план освещения с привязками.

Привязываем светильники к выключателям.

Статья , что такое сценарии 👉 https://dzen.ru/a/Z03WftoSHHQQELzL

После планов приступаем к концепции. У нас уже должна быть выбрана мебель, свет, стиль и отделочные.

Собираем это воедино в коллаж или коллаж+отдельно список товаров.

-11
-12
-13

Стоимость такого проекта варьируется от 800-1500 руб. за 1 м. кв.

Но учтите, просчет количества материалов, электрики и многое другое плюс надзор за ремонтом, вы должны будете делать самостоятельно.

Полный проект покажу в следующих сериях моего интерьерного Блога.

Если не терпится можно заглянуть сюда 👇

Design OlgaMi