Найти в Дзене
Мастерская дизайнера

Первые предложения по планировочным решениям для квартиры в ЖК Симфония 34 в SketchUp и Planner 5D

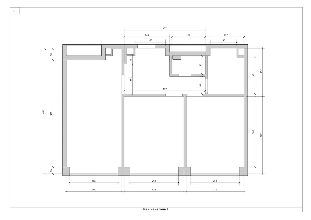
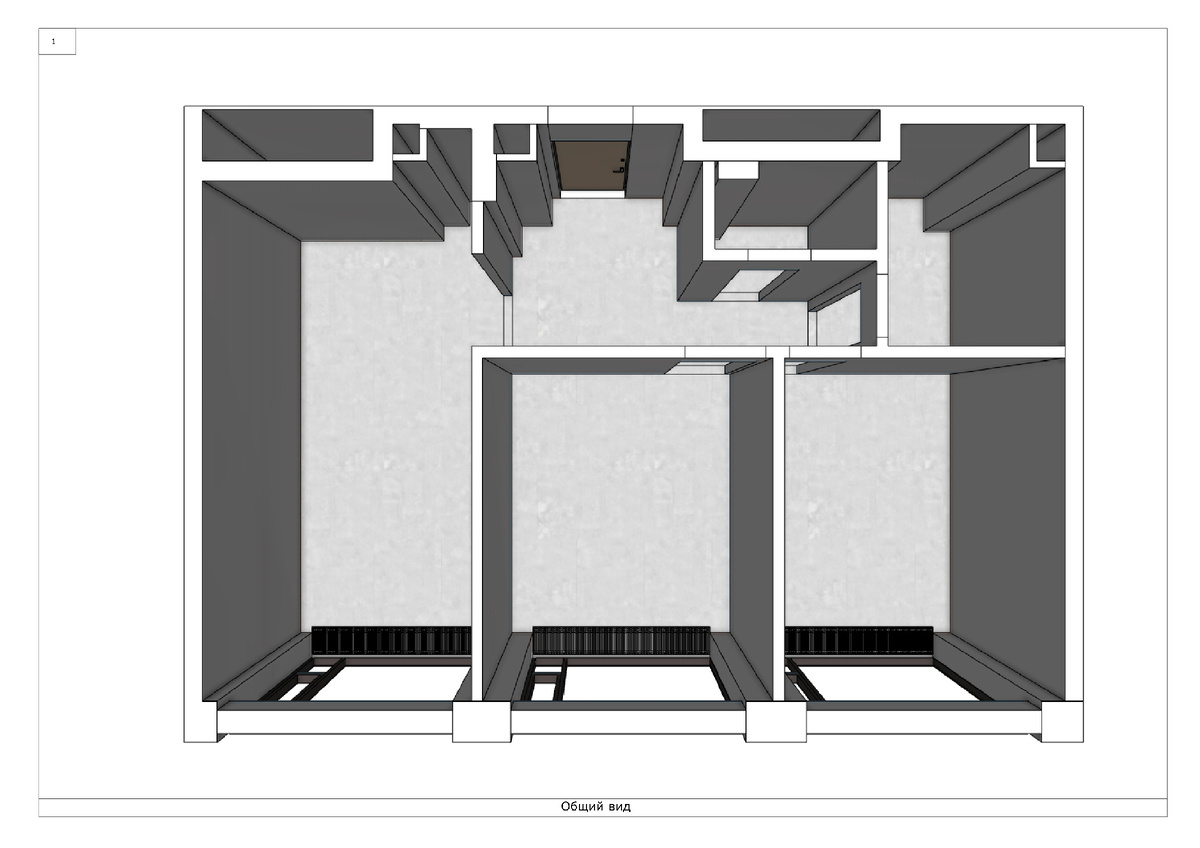
На первой стадии работ над дизайн-проектом важно проработать планировочное решение, чтобы самым оптимальным способом зонировать пространство квартиры. Стартовый план и трехмерная модель квартиры созданы в программе SketchUp по размерам, данным заказчиком - это значит, что необходимо будет их проверить, но для предложений по планировке этой точности пока достаточно: Начальная модель квартиры также показана в этом ролике: В этой квартире для семейной пары при сдаче от застройщика сделан ремонт формата white box. В таком ремонте, делая планировку, нужно в приоритетном порядке рассматривать варианты без переноса перегородок. Все решения, которые предлагаются с перепланировкой, должны по возможности предусматривать частичные изменения в расположении перегородок. В первом варианте произведено зонирование комнат на функциональные зоны и расставлены мебель и оборудование согласно первичным пожеланиям заказчиков. Конечно, и в этом случае возможны различные версии расстановки, и это лишь одна
Оглавление

На первой стадии работ над дизайн-проектом важно проработать планировочное решение, чтобы самым оптимальным способом зонировать пространство квартиры.

Стартовый план и трехмерная модель квартиры созданы в программе SketchUp по размерам, данным заказчиком - это значит, что необходимо будет их проверить, но для предложений по планировке этой точности пока достаточно:

Стартовый план квартиры
Стартовый план квартиры
Общий вид квартиры
Общий вид квартиры

Начальная модель квартиры также показана в этом ролике:

В этой квартире для семейной пары при сдаче от застройщика сделан ремонт формата white box. В таком ремонте, делая планировку, нужно в приоритетном порядке рассматривать варианты без переноса перегородок.

Все решения, которые предлагаются с перепланировкой, должны по возможности предусматривать частичные изменения в расположении перегородок.

1. Вариант планировки без перепланировки квартиры.

Вариант планировки квартиры без перепланировки - переноса стен и перегородок.
Вариант планировки квартиры без перепланировки - переноса стен и перегородок.

В первом варианте произведено зонирование комнат на функциональные зоны и расставлены мебель и оборудование согласно первичным пожеланиям заказчиков. Конечно, и в этом случае возможны различные версии расстановки, и это лишь одна из возможных.

Кухня-гостиная делится на три зоны: кухню, гостиную и столовую зону у окна. Расположение гарнитура кухни угловое, при этом массивные шкафы и пеналы со встроенной техникой расположены на боковой стене справа от входа, занимая в том числе все ниши. Фронтальная часть кухни будет состоять только из напольных шкафов. Диван с оттоманкой разделяет ей комнату. У окна небольшой круглый стол, раздвижной при необходимости.

Средняя жилая комната по согласованию с заказчиками планируется использовать для расположения гардеробной и рабочей зон. Они отделяются друг от друга декоративной интерьерной перегородкой.

Дальняя комната - спальня. В ее обстановке предусмотрены кровать с банкеткой в изножье, туалетный столик с настенным зеркалом, и шкаф-гардероб.

В квартире большой объединенный санузел включает душ в строительном исполнении, со встроенными функциональными полочками с одной стороны, унитаз на инсталляции (для монтажа которой по правой стене монтируется фальшстена высотой от 120 см, которая будет служить дополнительной полкой).

Второй санузел будет служить постирочной и хозяйственной комнатой.

Прихожая вмещает встроенный шкаф, обувницу, банкетку, а также зеркальную стену, расположенную напротив входной двери в квартиру.

Для того, чтобы показать этот вариант в более наглядном трехмерном ключе, я воспользовался онлайн-редактором Planner 5D.

Эта программа обладает, при всех своих ограничениях, рядом больших плюсов.

Можно оперативно построить достаточно точную трехмерную модель квартиры, обставить ее пусть условной, но вполне наглядной, мебелью, и представить планировочную концепцию интерьера в более визуально интересном ключе в сжатые сроки.

Можете перейти по ссылке и посмотреть созданную трехмерную модель квартиры в браузере онлайн, повращать ее, рассмотреть со всех сторон:

Create your dream home now @Planner5d

Вот план, с небольшими вариациями он повторяет планировку варианта 1.

План квартиры, вариант 1, в Planner 5D
План квартиры, вариант 1, в Planner 5D

Planner 5D позволяет получать нормальные трехмерные изображения интерьера, не делая визуализации, только скриншоты:

Общий вид квартиры в Planner 5D
Общий вид квартиры в Planner 5D
Общий вид квартиры в Planner 5D
Общий вид квартиры в Planner 5D

В этом варианте я немного доработал санузлы, сделал их еще планировочно удобнее и интереснее.

Объединенный санузел в Planner 5D
Объединенный санузел в Planner 5D
Постирочная комната с раковиной и шкафами над ней
Постирочная комната с раковиной и шкафами над ней
Стиральная и сушильная машины в колонне с правой стороны постирочной комнаты
Стиральная и сушильная машины в колонне с правой стороны постирочной комнаты

Кухня-гостиная в трехмерном исполнении средствами Planner 5D:

Вид на гарнирур кухни
Вид на гарнирур кухни
Общий вид кухни-гостиной
Общий вид кухни-гостиной
Общий вид кухни-гостиной
Общий вид кухни-гостиной

При всей условности этих изображений они вполне понятно отражают в наглядной визуальной форме объемно-планировочное решение интерьера, если сравнить их с черно-белыми планами, которые я также показываю в этой статье. Эти скриншоты и планы дополняют друг друга, давая достоверное понятие о предлагаемой планировке и зонировании квартиры.

Других задач, таких как выбор цвета, материалов, детализация мебели, стиля, на этом этапе перед нами не стоит и они не решаются.

Но тем не менее, определенная эстетика подачи выдерживается для лучшего понимания планировки.

Общий вид прихожей
Общий вид прихожей
Общий вид кабинета и гардеробной
Общий вид кабинета и гардеробной
Общий вид спальни
Общий вид спальни

Остальные два варианта показаны только на планах, выполненных в SketchUp.

Это точные и наглядные планы, не содержат никакой лишней информации, только планировка.

2. Вариант с небольшой перепланировкой квартиры.

Вариант 2, с расширением уборной и выравниваем стены прихожей между санузлом и прихожей.
Вариант 2, с расширением уборной и выравниваем стены прихожей между санузлом и прихожей.

В этом варианте санузел расширяется с целью увеличения места для расположения стиральной машины с таким расчетом, чтобы в этом же санузле осталась возможность установить унитаз.

Шкаф прихожей пристраивается к выровненной стене, а его глубина по прежнему достаточна.

Также здесь другая расстановка сантехники в большом санузле.

3. Вариант с мастер-спальней

Вариант перепланировки квартиры с организацией мастер-спальни
Вариант перепланировки квартиры с организацией мастер-спальни

Это самое значительное потенциальное изменение планировки квартиры, в которой организуется мастер-спальня. Вход в большой санузел со стороны спальни, большая столешница слева в таком санузле при желании позволяет установить две раковины.

Второй санузел - это гостевой, но с учетом расширения на коридор служит и постирочной комнатой.

Кухня имеет более встроенное исполнение за счет торцевой перегородки, скрывающей от входа торец встроенной мебели.

Все эти решения - первые предложения, далее нужно все обсудить и продолжить работу над уточнение планировки или разработкой других вариантов.