Добавить в корзинуПозвонить
Найти в Дзене
ЭТО ВАШ ИНТЕРЬЕР

Вы только посмотрите, что я сделала за 3 месяца у себя в квартире! Показываю, как теперь здесь живу (бабушкина мебель как раз пригодилась)

Наши герои — молодая супружеская пара с шестилетней дочерью — проживают в Новосибирске. Долгое время они присматривались к одному из районов города, который привлекал их своими сталинскими постройками и тихими зелёными двориками. Кроме того, в этом районе имелось всё необходимое для комфортной жизни: хорошая школа, новый спортивный комплекс, множество магазинов и других объектов инфраструктуры. И вот однажды наша героиня увидела объявление о продаже небольшой двухкомнатной квартиры в сталинском доме, расположенном в этом же районе. После недолгих раздумий супруги приняли решение о покупке. Сам дом является типичной "сталинкой" и был возведен в середине 50-х годов. С тех пор, возможно, и проводились какие-то работы по обновлению жилища, но это было очень давно. Поэтому нынешним владельцам досталась квартира в довольно плачевном состоянии. В процессе ремонта заменили практически всё: начиная от электрики и заканчивая окнами. Благо хозяйка квартиры является дизайнером и весь дизайн-прое
Оглавление

Наши герои — молодая супружеская пара с шестилетней дочерью — проживают в Новосибирске. Долгое время они присматривались к одному из районов города, который привлекал их своими сталинскими постройками и тихими зелёными двориками.

Кроме того, в этом районе имелось всё необходимое для комфортной жизни: хорошая школа, новый спортивный комплекс, множество магазинов и других объектов инфраструктуры.

И вот однажды наша героиня увидела объявление о продаже небольшой двухкомнатной квартиры в сталинском доме, расположенном в этом же районе. После недолгих раздумий супруги приняли решение о покупке.

Сам дом является типичной "сталинкой" и был возведен в середине 50-х годов. С тех пор, возможно, и проводились какие-то работы по обновлению жилища, но это было очень давно. Поэтому нынешним владельцам досталась квартира в довольно плачевном состоянии.

В процессе ремонта заменили практически всё: начиная от электрики и заканчивая окнами. Благо хозяйка квартиры является дизайнером и весь дизайн-проект она придумала самостоятельно.

Проект

  • Местоположение: г. Новосибирск
  • Площадь квартиры: 55 квадратных метров
  • Владельцы: семья из трех человек

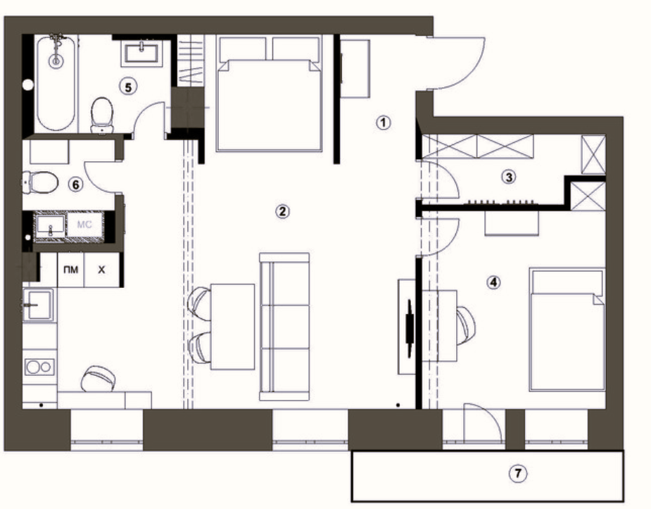
Прихожая

После перепланировки входная зона была органично интегрирована в пространство гостиной. Пол был покрыт ламинатом, а стены окрашены в насыщенный синий цвет, что придало помещению особый шарм.

-3

В том же оттенке были выполнены комод, расположенный напротив входной двери, и межкомнатные двери (комод достался нашей героине от бабушки). Для хранения вещей была предусмотрена просторная гардеробная.

Гостиная

Синий цвет их прихожей плавно перешел на акцентную стену в гостиной. Возле этой стены располагается телевизионная зона, напротив которой находится большой диван. Он был привезен владельцами с предыдущей квартиры (правда обивку у него заменили).

На окне красуется винтажная швейная машинка, которая досталась также от бабушки. Сразу за диваном располагается классическая столовая группа с бабушкиными стульями, который дизайнер самостоятельно перекрасила.

-5

Стену смежную с улицей зачистили до самого кирпича и решили её так и оставить, чтобы подчеркнуть исторический облик дома. Для грамотного оформления этой стены был приглашен специалист.

Кирпичи были тщательно очищены и отполированы, после чего швы были заново заделаны. Затем кирпичи были покрыты специальным матовым лаком.
-6

Спальня

В глубине пространства хозяева решились на нестандартное решение — они организовали здесь зону спальни. Они решили её оставить неизолированной, а вместо классической кровати они положили на пол обычный ортопедический матрац.

Кухня

В ходе перепланировки пространство кухни было объединено с гостиной, что позволило хозяйке создать единое пространство без лишних перегородок.

Справа от входа разместился невысокий, но вместительный холодильник, к которому примыкает кухонный гарнитур, изготовленный мужем хозяйки, занимающимся производством мебели. Каркас гарнитура был выполнен им собственноручно, а фасады были заказаны у знакомых. Благодаря этому, кухня получилась недорогой.

-8

Касательно цветового решения гарнитура, был выбран сдержанный серый оттенок, гармонично сочетающийся с цветом стен. Вместо традиционной керамической плитки для фартука было решено использовать моющуюся краску, при этом хозяйка сразу же оговорила, что краска должна быть исключительно высокого качества.

-9

Рабочая столешница плавно переходит на подоконник. Она изготовлена из термически обезвоженной березы, которую потом покрыли лаком. Такая столешница очень устойчива к повышенной влажности и к перепадам температур.

Детская

Единственную изолированную комнату наши герои отдали под детскую, чтобы у из дочки было свое личное пространство. В детской преобладают серые оттенки. Для того чтобы подчеркнуть высоту помещения, потолочный плинтус был окрашен в цвет стен.

-10

При входе появилась акцентная стена, которая была оклеена красивыми обоями. Рядом появилась кроватка, напротив которой находится рабочий уголок.

-11

Ванная комната и санузел

В ходе перепланировки в квартире были созданы два санузла, образованные за счёт присоединения кладовки. В одном из санузлов разместилась стиральная машина, сушилка для белья, раковина и унитаз.

-12

В другом — раковина и унитаз, а также была установлена полноценная ванна. Что касается отделки, то здесь использовали несколько видов керамической плитки и водостойкую краску.

-13

Если вам понравилась статья, то не забудьте поставить лайк и подписаться, чтобы не пропустить новый материал!

Так же пишите в комментариях, что вам понравилось в этом проекте, а что вызывает сомнения.