Добавить в корзинуПозвонить
Найти в Дзене

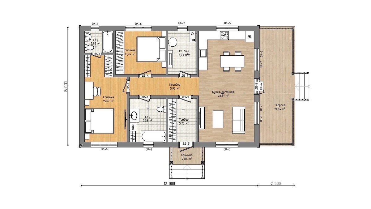
Одноэтажный дом 12х8 м.

Площадь помещений 82,2 м², терраса 19,8 м².
Утепление минеральной ватой.
Цокольное перекрытие 200 мм,
Наружные стены 150 мм + 50 мм перекрёстного утепления,
Чердачное перекрытие 300 мм.
Каркас из доски сечением 100х50, 150х50, 200х50 мм.
Фундамент ж/б сваи.
Стропильная система, опорные, несущие конструкции рассчитаны для строительства в III снеговом районе. В состав проекта входит:
- Эскизный проект;
- Конструктивный раздел;
- Спецификация на материалы
- Схема раскроя пиломатериала
- Схема раскроя OSB
- 3D визуализация дома и каркаса
Полный эскизный проект можно посмотреть по ссылке disk.yandex.ru/i/Ms4NceLm...
#купитьпроектдома #заказатьпроектдома #проекткаркасногодома #проектдома #каркасныйдом #проекткаркас #проектдомамосква #проектзагородногодома

Площадь помещений 82,2 м², терраса 19,8 м².
Утепление минеральной ватой.
Цокольное перекрытие 200 мм,
Наружные стены 150 мм + 50 мм перекрёстного утепления,
Чердачное перекрытие 300 мм.
Каркас из доски сечением 100х50, 150х50, 200х50 мм.
Фундамент ж/б сваи.
Стропильная система, опорные, несущие конструкции рассчитаны для строительства в III снеговом районе.

В состав проекта входит:
- Эскизный проект;
- Конструктивный раздел;
- Спецификация на материалы
- Схема раскроя пиломатериала
- Схема раскроя OSB
- 3D визуализация дома и каркаса
Полный эскизный проект можно посмотреть по ссылке
disk.yandex.ru/i/Ms4NceLm...
#купитьпроектдома #заказатьпроектдома #проекткаркасногодома #проектдома #каркасныйдом #проекткаркас #проектдомамосква #проектзагородногодома