Найти в Дзене
Красота в деталях

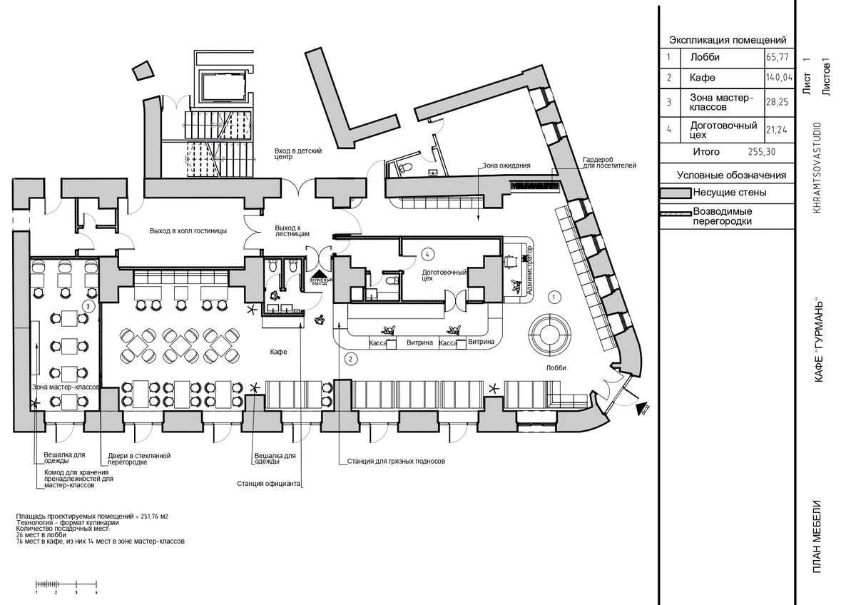
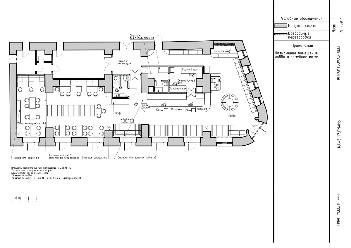
Планировка кафе «Гурмань»

При разработке планировки кафе «Гурмань» в историческом здании «Новая Гостиница Лавры» в Сергиевом Посаде, я стремилась создать пространство, которое будет не только функциональным, но и гармонично вписываться в архитектурный контекст. Основной задачей было учесть как потребности посетителей, так и сохранить историческую ценность здания. Кафе разделено на три ключевые зоны: лобби, основное кафе и зона мастер-классов. Каждая из этих зон имеет свои уникальные функции и атмосферу, что позволяет создать комфортное и разнообразное пространство для посетителей. Лобби: Эта зона предназначена для ожидания и отдыха. Здесь гости могут насладиться атмосферой кафе, пока ждут своих друзей, детей или заказ. Лобби оформлено в спокойных тонах, с легкой мебелью и уютными уголками. Основное кафе: в этой зоне посетители могут перекусить, выпить кофе или взять выпечку с собой. Пространство оформлено с учетом современных тенденций, но с уважением к историческим элементам. Сводчатые потолки и кирпичные стен

При разработке планировки кафе «Гурмань» в историческом здании «Новая Гостиница Лавры» в Сергиевом Посаде, я стремилась создать пространство, которое будет не только функциональным, но и гармонично вписываться в архитектурный контекст. Основной задачей было учесть как потребности посетителей, так и сохранить историческую ценность здания.

Вариант 1. С диванами и квадратными столами в центре кафе
Вариант 1. С диванами и квадратными столами в центре кафе

Кафе разделено на три ключевые зоны: лобби, основное кафе и зона мастер-классов. Каждая из этих зон имеет свои уникальные функции и атмосферу, что позволяет создать комфортное и разнообразное пространство для посетителей.

Вариант 2. С диваном для большой компании  и диванами в центре кафе
Вариант 2. С диваном для большой компании и диванами в центре кафе

Лобби: Эта зона предназначена для ожидания и отдыха. Здесь гости могут насладиться атмосферой кафе, пока ждут своих друзей, детей или заказ. Лобби оформлено в спокойных тонах, с легкой мебелью и уютными уголками.

Основное кафе: в этой зоне посетители могут перекусить, выпить кофе или взять выпечку с собой. Пространство оформлено с учетом современных тенденций, но с уважением к историческим элементам. Сводчатые потолки и кирпичные стены создают уникальную атмосферу, а легкая мебель из ротанга добавляет современности.

Вариант 3. С диванами и круглыми столами в центре кафе
Вариант 3. С диванами и круглыми столами в центре кафе

Зона мастер-классов: Эта часть кафе отгорожена стеклянной перегородкой, что позволяет проводить различные мероприятия, такие как мастер-классы по живописи, лепке или украшению пряников. Прозрачные перегородки создают ощущение открытости и вовлеченности, позволяя посетителям наблюдать за процессом.

При планировке уделяла особое внимание сохранению исторического контекста здания. Белый кирпич, использованный в оформлении, подчеркивает архитектурное наследие, а деревянные элементы медового цвета акцентируют внимание на сводах потолка.

Планировка кафе «Гурмань» — это результат тщательного анализа потребностей посетителей и уважения к историческому контексту, которое не только отвечает современным требованиям, но и сохраняет дух времени, в котором было построено здание. В следующей статье я подробнее расскажу о концепции кафе и источники вдохновения для ее создания.

С любовью к дизайну и бизнесу, Наталья Храмцова.

Проект выполнен в рамках обучения в RAD Academy.

кафе #интерьер #аутентичность #дизайн #ресторан #бар #кофейня #ресторанныйбизнес #кафебизнес #дизайнкафе #интерьеркафе #radacademy