Найти в Дзене
Берег Песочной

Ваша мечта о комфортной загородной жизни - уже в шаге от реальности!

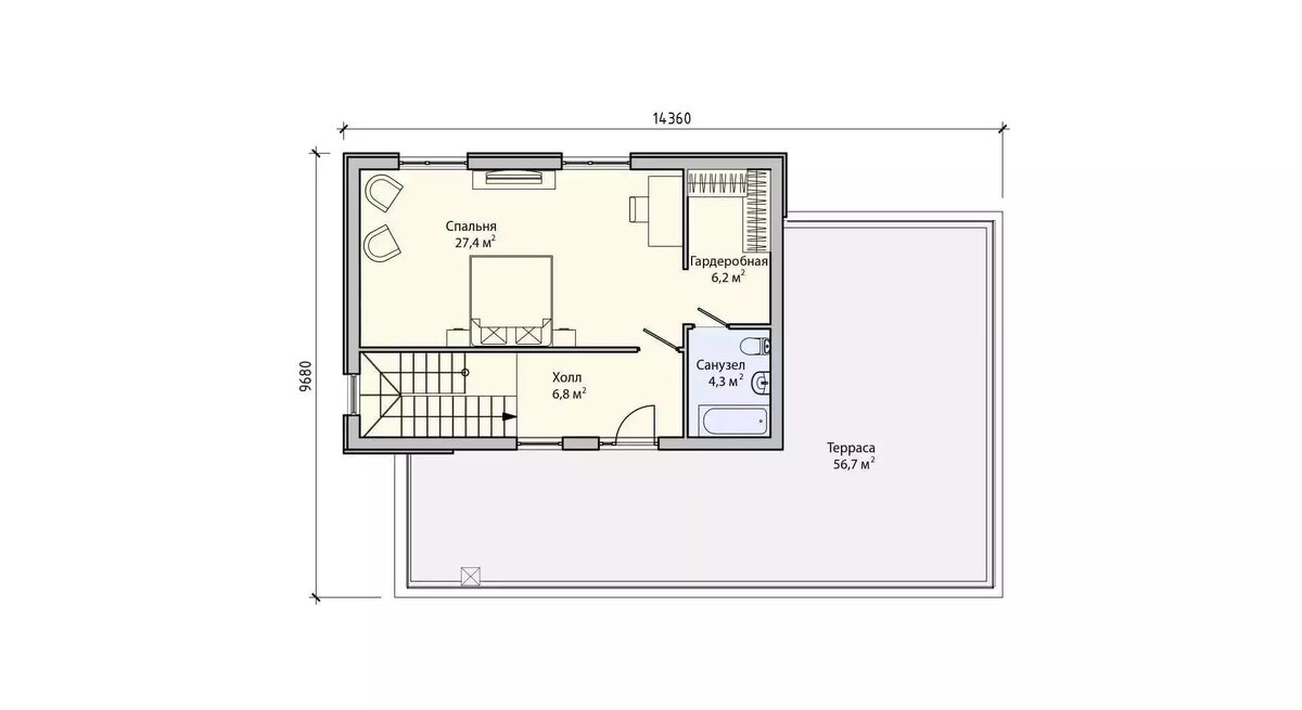
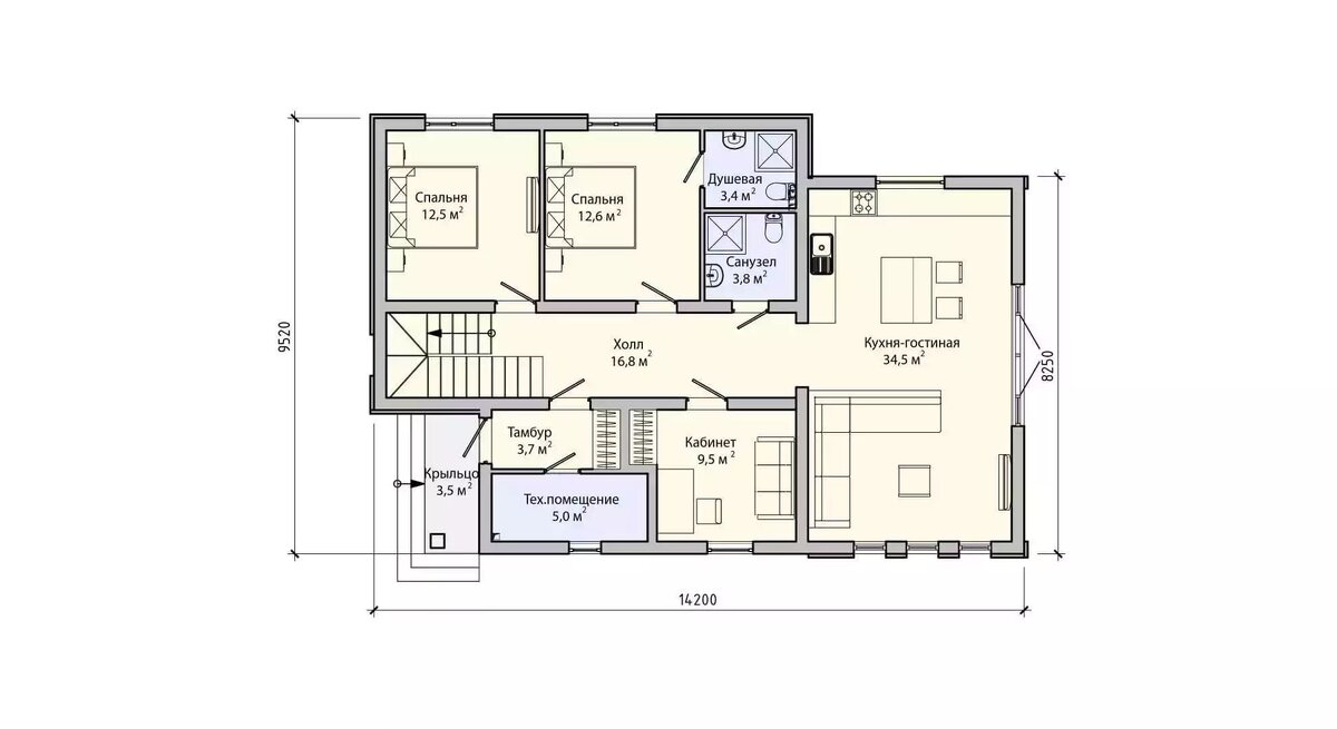
Представьте: утро в собственном доме с прекрасным видом из окна, просторный зал, объединяющий кухню и гостиную, где собирается вся семья. Это не мечта, а реальность в коттеджном поселке "Берег Песочной"! Представляем вам проект индивидуального дома ПБ-217/1 общей площадью 155,9 м2, комфортного для проживания 5-6 человек. Дом выполнен из панелей БЭНПАН премиум и БЭНПАН+, что гарантирует долговечность, тепло и тишину. В доме продумана каждая деталь: 🔸Вход через небольшой тамбур 🔸Техническое помещение 🔸Просторный холл с лестницей 🔸Две спальни на первом этаже 🔸Большая гостиная, объединенная с кухней 🔸Просторный балкон 🔸На втором этаже - большая спальня с гардеробной и собственным санузлом 🔸Выход на эксплуатируемую кровлю Дом отличается стильным и современным дизайном: 🔸Для наружной отделки используется штукатурка в сочетании с вертикальным планкеном и искусственным камнем. Коттеджный поселок "Берег Песочной" - это идеальное место для тех, кто ценит комфорт и уют. Хотите осуществи

Представьте: утро в собственном доме с прекрасным видом из окна, просторный зал, объединяющий кухню и гостиную, где собирается вся семья. Это не мечта, а реальность в коттеджном поселке "Берег Песочной"!

Представляем вам проект индивидуального дома ПБ-217/1 общей площадью 155,9 м2, комфортного для проживания 5-6 человек.

Дом выполнен из панелей БЭНПАН премиум и БЭНПАН+, что гарантирует долговечность, тепло и тишину.

В доме продумана каждая деталь:

🔸Вход через небольшой тамбур

🔸Техническое помещение

🔸Просторный холл с лестницей

🔸Две спальни на первом этаже

🔸Большая гостиная, объединенная с кухней

🔸Просторный балкон

🔸На втором этаже - большая спальня с гардеробной и собственным санузлом

🔸Выход на эксплуатируемую кровлю

Дом отличается стильным и современным дизайном:

🔸Для наружной отделки используется штукатурка в сочетании с вертикальным планкеном и искусственным камнем.

Коттеджный поселок "Берег Песочной" - это идеальное место для тех, кто ценит комфорт и уют.

Хотите осуществить свою мечту о собственном загородном доме?

Звоните нам уже сегодня!

📞 +7 (495) 927-93-28

#БерегПесочной #КоттеджныйПоселок #ЗагороднаяЖизнь #ДомМечты #ПродажаДома #Недвижимость #Уют #Комфорт