Добавить в корзинуПозвонить
Найти в Дзене
Проспект Мира

Откопанный в Красноярске ров 17 века хотят поместить под стеклянный купол

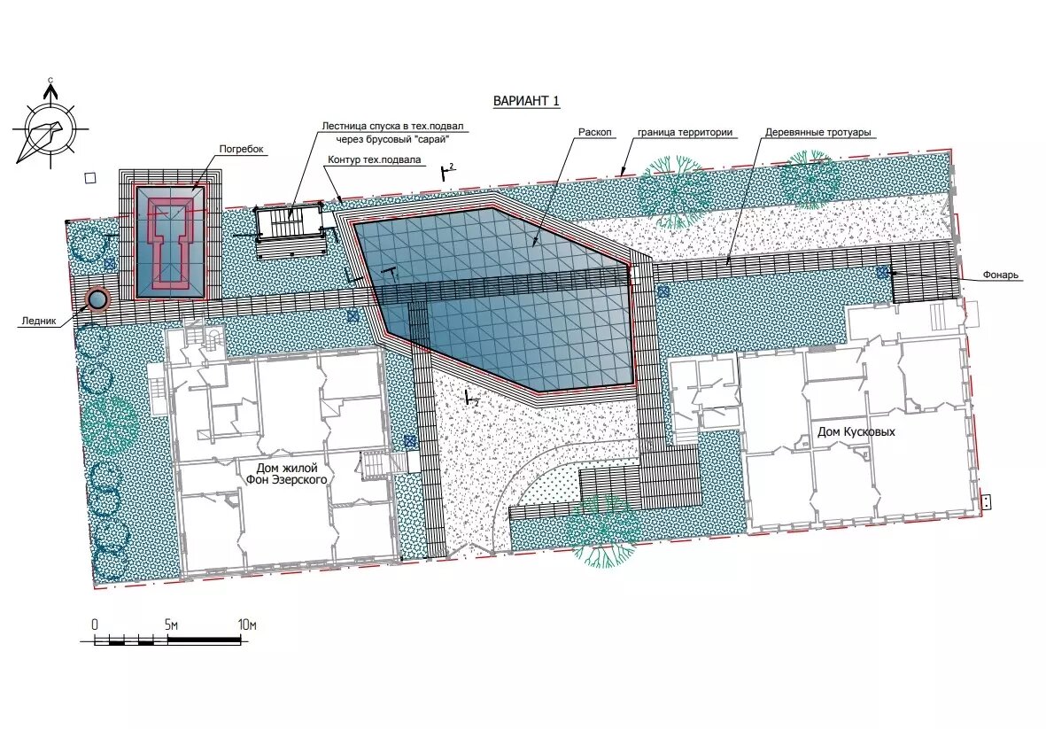
В Красноярске хотят построить стеклянный купол для оборонительного рва, датируемого концом 17 века. Его обнаружили этим летом и признали объектом культурного наследия края. Фрагмент оборонительной системы большого Красноярского острога нашли археологи во время раскопок на улице Карла Маркса, где находились «Дом Кусковых» и «Дом жилой Н. А. Фон-Эзерского» — дома второй половины 19 века разобрали и отвезли реставрацию. Сейчас на этом месте собираются сделать открытый выставочный комплекс — его начнут собирать в 2025 году. Как пишет издание «Город Прима», рядом с усадьбами под стеклянным куполом создадут специальные условия по температуре и влажности. Ров возвели первые русские поселенцы в 17 веке. Его не раз перестраивали и ремонтировали — последние изменения ученые датируют периодом правления Петра I. После большого пожара 1773 года деревянные элементы оборонительной системы были утрачены, и тогда их решили не восстанавливать. Находка помогла подтвердить данные о границах города в перио
Оглавление

В Красноярске хотят построить стеклянный купол для оборонительного рва, датируемого концом 17 века. Его обнаружили этим летом и признали объектом культурного наследия края.

    Источник: АО «Исторический квартал»
Источник: АО «Исторический квартал»

Фрагмент оборонительной системы большого Красноярского острога нашли археологи во время раскопок на улице Карла Маркса, где находились «Дом Кусковых» и «Дом жилой Н. А. Фон-Эзерского» — дома второй половины 19 века разобрали и отвезли реставрацию.

Сейчас на этом месте собираются сделать открытый выставочный комплекс — его начнут собирать в 2025 году. Как пишет издание «Город Прима», рядом с усадьбами под стеклянным куполом создадут специальные условия по температуре и влажности.

Ров возвели первые русские поселенцы в 17 веке. Его не раз перестраивали и ремонтировали — последние изменения ученые датируют периодом правления Петра I. После большого пожара 1773 года деревянные элементы оборонительной системы были утрачены, и тогда их решили не восстанавливать. Находка помогла подтвердить данные о границах города в период 17-18 веков. Считалось, что западная граница острога находилась значительно дальше.

В более поздних исторических слоях раскопа археологи нашли фундаменты построек, остатки печей и погребов, предметы быта, посуды, убранства домов, стеклянные флаконы для аптекарских снадобий и духов, фарфоровые изделия, монеты и другое.

Там располагался посад Красноярского острога — слобода, населенная торговцами и ремесленниками, выросшая у крепостных стен. Позже строения перестроили, строились новые дома, сегодня сохранились лишь два исторических дома 19 века, о которых написано выше.

Еще на месте раскопа нашли подвальное помещение дома, сгоревшее в большом пожаре 1881 года, уничтожившем большую часть тогда еще деревянного Красноярска. Удалось найти и «винный погреб» с остатками посуды, предметов быта и бакалеи.

Читайте также:

В центре Красноярска снова притормозили стройку метро из-за древних артефактов

Красноярские археологи нашли древнюю скульптуру человеческой головы

Археологи нашли человеческие кости в центре Красноярска