Найти в Дзене
Пикабу

Квартира в хрущёвке тоже может быть красивой

Когда-то давно написал пост про микро-студию, которую мы покупали в качестве первого жилья (я его добавлю первым постом в серии). Он собрал достаточно много комментариев и я планировал написать пост про следующую свою квартиру, но руки до него так и не дошли. Перед её продажей мы делали фото, поэтому решил, чтобы не пропадать добру, запилить пост. Итак, началось всё с того, что мы купили убитую двушку в хрущёвке, с такой планировкой. Напоминаю - супруга занимается дизайном интерьеров, поэтому ремонт нас не пугал. Это не назвать квартирой мечты, поэтому решено было её немного доработать. За несколько вечеров родилось вот такое решение: Сейчас покажу, как это выглядит в реальности. Прихожая: Обувницы слева и справа от комода тоже обрамили молдингами, внутрь рамки вклеили текстурные обои, которые заказали на маркетплейсе. И тоже покрасили. В комнате - электрокамин. С ним очень удобно в межсезонье, когда отопление ещё не включили или рановато выключили. Временное рабочее место, когда нужно

Когда-то давно написал пост про микро-студию, которую мы покупали в качестве первого жилья (я его добавлю первым постом в серии). Он собрал достаточно много комментариев и я планировал написать пост про следующую свою квартиру, но руки до него так и не дошли. Перед её продажей мы делали фото, поэтому решил, чтобы не пропадать добру, запилить пост.

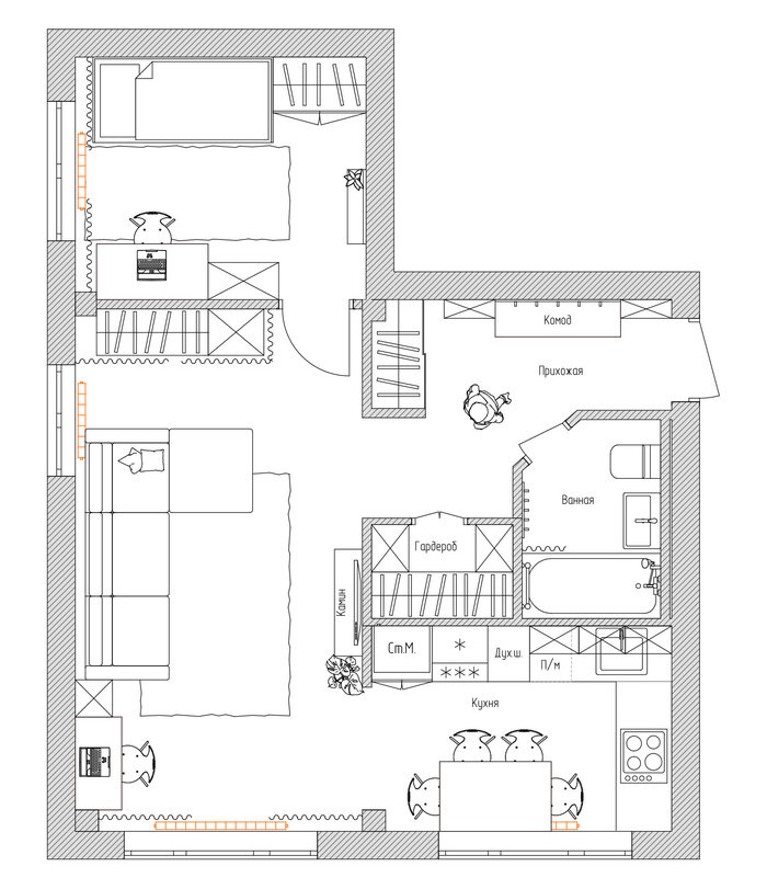
Итак, началось всё с того, что мы купили убитую двушку в хрущёвке, с такой планировкой. Напоминаю - супруга занимается дизайном интерьеров, поэтому ремонт нас не пугал.

Это не назвать квартирой мечты, поэтому решено было её немного доработать. За несколько вечеров родилось вот такое решение:

.
.

Сейчас покажу, как это выглядит в реальности.

Прихожая:

Обувницы слева и справа от комода тоже обрамили молдингами, внутрь рамки вклеили текстурные обои, которые заказали на маркетплейсе. И тоже покрасили.

В комнате - электрокамин. С ним очень удобно в межсезонье, когда отопление ещё не включили или рановато выключили.

-5

Временное рабочее место, когда нужно что-то срочно сделать, я подключаю ноутбук к монитору.

-6

Кухня:

Детская:

И немного котиков для уюта:

Пост автора ContentProvider.

Читать комментарии на Пикабу.