Найти в Дзене

ТОП-3 ЖК с ценой до 350 000 за квадратный метр

Сегодня рассмотрим ЖК с ценой до 350 000 за квадратный метр Жилой комплекс находится в районе Очаково-Матвеевском, в пешей доступности от метро и МЦД "Аминьевская". Дорога до Кутузовского проспекта займет 5 минут, до ТТК 12 минут и 10 минут до МКАД. Рядом много ведущих ВУЗОВ. Сам комплекс состоит из 8 корпусов переменной этажности. Ключи собственники получат в 3 квартале 2027 года Пример квартиры, 48,5 кв на 9м этаже с предчистовой отделкой по стоимости 16 939 692 рубля Комплекс располагается в Можайском районе, очень перспективный проект как для жизни, так и для инвестиций, возможна рассрочка до 4х лет. В ближайшее время анонсируют открытие станции метро в 2х-3х минутах пешком от дома. Рядом большая заповедная зона реки Сетунь Пример квартиры 64 метра на 6м этаже угловым остеклением за 21 900 800 ЖК расположился в районе Щукино. Есть своя эко-тропа до одного из самых больших парков в Москве - Покровов-Стрешнево, из окон открываются потрясающие виды на парк. в 5 минутах пешком МЦК "С
Оглавление

Сегодня рассмотрим ЖК с ценой до 350 000 за квадратный метр

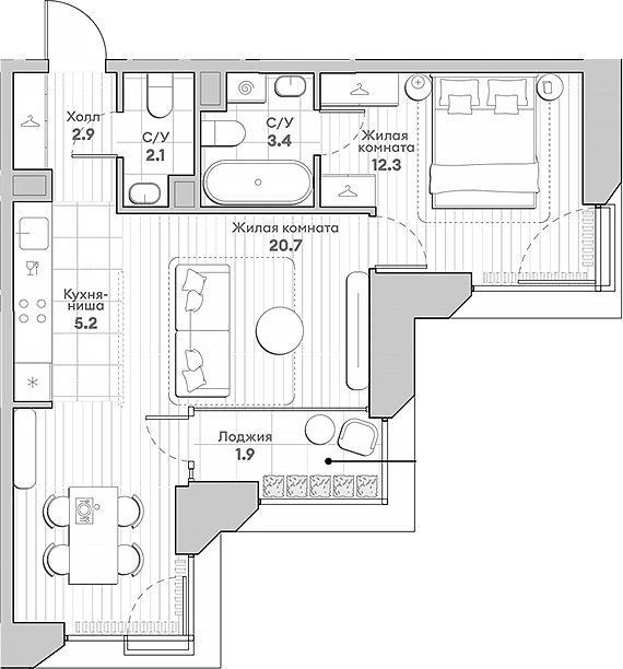
1. Среда на Лобачевского.

Жилой комплекс находится в районе Очаково-Матвеевском, в пешей доступности от метро и МЦД "Аминьевская". Дорога до Кутузовского проспекта займет 5 минут, до ТТК 12 минут и 10 минут до МКАД. Рядом много ведущих ВУЗОВ. Сам комплекс состоит из 8 корпусов переменной этажности. Ключи собственники получат в 3 квартале 2027 года

Пример квартиры, 48,5 кв на 9м этаже с предчистовой отделкой по стоимости 16 939 692 рубля

2. ЖК SET

Комплекс располагается в Можайском районе, очень перспективный проект как для жизни, так и для инвестиций, возможна рассрочка до 4х лет. В ближайшее время анонсируют открытие станции метро в 2х-3х минутах пешком от дома. Рядом большая заповедная зона реки Сетунь

-2

Пример квартиры

64 метра на 6м этаже угловым остеклением за 21 900 800

3. ЖК Moments

ЖК расположился в районе Щукино. Есть своя эко-тропа до одного из самых больших парков в Москве - Покровов-Стрешнево, из окон открываются потрясающие виды на парк. в 5 минутах пешком МЦК "Стрешнево" откуда легко добраться до Москва-сети.

-3

Пример квартиры

81,2 метра с предчистовой отделкой на 31 видовом этаже 27 452 096 рубля. Срок с дачи в 3 квартале 2027 года

За подробной информацией по способам приобретения и другим ЖК с ценой до 350 000 за кв м обращайтесь по телефону указанному в шапке профиля