Добавить в корзинуПозвонить
Найти в Дзене
Энергия ремонта

Хозяйка заплакала, когда увидела свою новую кухню: эта переделка от "Квартирного вопроса" расширит наш с вами список лучших решений

Всем ремонт, мои терпеливые! Теперь рубрика #обзорквартирноговопроса будет выходить по средам вместо вторника. На прошлой неделе разбора не было в связи с моим больничным. Но на этой неделе я справилась с задачей! Давайте познакомимся с героями и их квартирой из выпуска от 23 ноября. Уверена, что некоторые решения вас тоже понравятся! Переделке подлежит кухня 18,5 м2 с необычной планировкой. Можете полистать галерею, там немного фото, которые показывают как кухня выглядела до переделки, а также схема перепланировки квартиры, которую делали сами хозяева, как только туда заехали. Есть ещё один нюанс у кухни, вы видите его на этой схеме. Что хотят переделать хозяева в своей в принципе довольно уютной и просторной кухне? Главная героиня, кстати блогер-кондитер (делает цветы из зефира), считает, что её кухне не хватает функционала. За время жизни в этой квартире семья обросла разными вещами и техникой, всё это не помещается на кухне. Плюс здесь она снимает мастер-классы и контент для со
Оглавление

Всем ремонт, мои терпеливые!

Теперь рубрика #обзорквартирноговопроса будет выходить по средам вместо вторника. На прошлой неделе разбора не было в связи с моим больничным. Но на этой неделе я справилась с задачей! Давайте познакомимся с героями и их квартирой из выпуска от 23 ноября. Уверена, что некоторые решения вас тоже понравятся!

Кому и что переделываем?

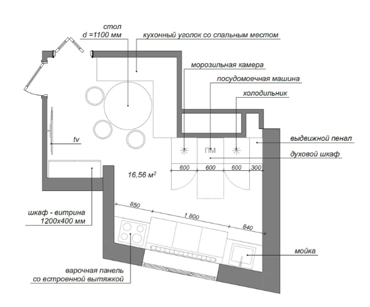
Переделке подлежит кухня 18,5 м2 с необычной планировкой. Можете полистать галерею, там немного фото, которые показывают как кухня выглядела до переделки, а также схема перепланировки квартиры, которую делали сами хозяева, как только туда заехали.

Есть ещё один нюанс у кухни, вы видите его на этой схеме.

-2

Что хотят переделать хозяева в своей в принципе довольно уютной и просторной кухне? Главная героиня, кстати блогер-кондитер (делает цветы из зефира), считает, что её кухне не хватает функционала. За время жизни в этой квартире семья обросла разными вещами и техникой, всё это не помещается на кухне. Плюс здесь она снимает мастер-классы и контент для социальных сетей. В связи с этим есть потребность в соответствующем по эстетике и функциям интерьере. Дочка хозяев видит эту кухню в нежных цветах, но при этом считает уместным добавить что-то яркое, а также считает, что пространство необходимо полностью переоформить. Ну а муж и отец семейства главным считает надежность и функциональность.

Вообще эта семья мне очень понравилась: хозяйка очень позитивная, муж смотрит на неё с обожанием, а дочка очень мудрая не смотря на свой юный возраст. И, кстати, прекрасно говорит. Так ладно, давайте уже смотреть, что там получилось. Но сегодня я буду идти не совсем так как обычно. Я покажу общие планы новой кухни лишь после как озвучу все плюсы и расскажу что лично мне понравилось в этом выпуске.

Плюсы переделки

Итак, что мне понравилось?

-3
  • Понравилось, что дизайнеры сделали дверь в кухню. Ранее ее не было, был лишь проем. Установили складную модель, так как для любой другой двери здесь просто не было места!
-4

А так как в кухне уже есть одна дверь, которая ведет в комнату дочери, то складную дверь сделали практически невидимой. Её выкрасили в цвет стен. А дверь в спальню сделали акцентной, но в стиле интерьера.

  • Все решения играют на расширение и без того не маленького помещения. Согласитесь, в наших реалиях кухня 18,5 м2 это очень хороший размер! Нежно-голубой цвет стен увеличивает пространство. Дизайнеры здесь проводят аналогию с небом – высоким и бескрайним.
-5

Я такое видение засчитываю! Действительно, голубой цвет словно расширяет пространство. Плюс перепады высоты на потолке также работают в этом направлении.

-6
  • Дизайнеры сделали вытяжку и поставили посудомойку! Молодцы. В моих последних обзорах с этим были проблемы! То посудомойку женщине, которая хозяйством заниматься не любит, не поставят, то многодетную семью лишат вытяжки. Здесь всё отлично! Кстати, зацените, здесь встроенная вытяжка.
-7
  • Рабочая зона у окна. Здесь и снимать хозяйке будет хорошо – много света. И любоваться закатом или рассветом пока отсаживаешь зефирные цветочки! Красота.
-8

Кстати, для кондитера предусмотрели ещё один столик. Откидной вариант между двумя сторонами кухни. Можно использовать для съёмок.

-9
  • Несмотря на то что холодильник встроенный, он все же получился, действительно, вместительным!
-10

Левая секция (кроме верхней антресоли) это холодильник. Морозильная камера установлена отдельно – под духовым шкафом. Для кондитера большой холодильник это очень важно! Хорошо что дизайнеры об этом подумали

  • Как и том, как обогревать кухню, если единственный радиатор закрыли шкафами. На полу теплый пол. Хотя, конечно, в гарнитуре для выхода тепла также сделали решетки.
-11
  • Обеденная зона. Здесь мне всё понравилось! Стол - это шедевр. Круглый стол из шпона дуба прекрасно дополняет интерьер данной кухни!
-12

И у стола есть небольшой секрет – он раскладной. В этом доме часто бывают гости и дизайнеры это учли. Смотрите какой классный механизм!

-13

Мне очень понравилось, я такое бы взяла в самое лучших решений для кухни.

-14

Хозяева хотели, чтобы здесь был диван – тоже сделано. Диван с выкатным механизмом создаёт дополнительное место для сна.

-15

А в оттоманке есть отсеки для хранения.

-16

Все члены остались очень довольны таким решением!

-17

А хозяйка прослезилась от счастья, когда увидела свою новую кухню. Теперь посмотрите и вы как кухня стала выглядеть после работы дизайнеров.

Вообще, кухня мне нравится и многие в комментариях пишут, что это чуть ли не самая лучшая переделка за последнее время от "Квартирного вопроса". Мне понравилось, что дизайнеры поняли хозяев и учли из пожелания.

-19

И даже в новый, прекрасный буфет поставили посуду героев программы. А как вам переделка?

Минусы

Ну и в любом проекте можно найти свои минусы. Я сейчас расскажу, что мне не очень понравилось в этом помещении.

-20
  • Посудомойка напротив мойки. Дизайнеры попытались максимально выйти из положения и продумали дополнительную сушилку над посудомойкой, упростив разгрузку машины. Но загрузка все же добавит хозяйке дополнительной беготни. Да и сами дизайнеры признают, что это вынужденная мера, к которой нужно привыкать.
-21
  • Отсутствие подсветки над рабочей зоной. Может быть этот нюанс все же можно компенсировать достаточным количеством источников как искусственного так и естественного света. Но вечером в зоне готовки от головы будет падать тень и это принесет дискомфорт и напряжение глазам .
  • Не совсем поняла что с микроволновой, которая есть у хозяев.
-22

Куда ее ставить? Может быть только в среднюю секцию буфета? Но там вроде вывода нет под розетку...

-23

И ещё мне показалось, что мест для хранения малова-то все же.

-24

По моему мнению, это основные минусы получившейся переделки. В остальном же считаю эту работу очень хорошей. И главное, что хозяевам искренне понравилось то, что сделали здесь дизайнеры. А вам как? Что скажете?