Добавить в корзинуПозвонить
Найти в Дзене

Дом 2ым светом, идеальная планировка

⠀🧧Hai boss на связи Зяблов Вадим и мой новый проект на 166м2. ⠀🕋 Проект подойдёт для участка с фасадом 19м. ⠀📌Проект подойдёт для #семьи из 4-5 человек. ⠀📌Материал - несущих стен - #газобетон. наружная отделка- клинкерная плитка и вставки из дикого камня. ⠀ 📌 Доп: Очень простой и крутой проект со 2ым светом. точно равнодушны вы к такому дому не будите. ♻️Габаритные размеры 12,м-9,25м ⠀♻️Площадь застройки - 137м2 ⠀♻️Общая площадь всех помещений -166м2 ⠀♻️Жилая площадь - 130м2 ⠀♻️Высота потолка - 3,0м, пристенок 2,0м. ⠀♻️Количество спален - 4 шт. ⠀♻️Количество сан.узов - 2 шт. Проекты постоянно пополняю, ты там подпишись вдруг что вкатит,
и если шо я на связи ... +7-918-44-22-08 Вадим 🤝
Стоит глянуть еще на дом со всех ракурсов. ниже. Плюсик сердечко тоже ставь, мне приятно, тебе один клик. На сайте проект имеет номер ZV - 054 сайт: https://m2-23.ru\ - кликай на сайте еще больше проектов М2 – архитектурно строительное бюро instagram: @domproekt https://www.instagram.com/domproekt/
Оглавление
Зяблов Вадим
Зяблов Вадим

⠀🧧Hai boss на связи Зяблов Вадим и мой новый проект на 166м2.

⠀🕋 Проект подойдёт для участка с фасадом 19м.

⠀📌Проект подойдёт для #семьи из 4-5 человек.

⠀📌Материал - несущих стен - #газобетон. наружная отделка- клинкерная плитка и вставки из дикого камня.

⠀ 📌 Доп: Очень простой и крутой проект со 2ым светом. точно равнодушны вы к такому дому не будите.

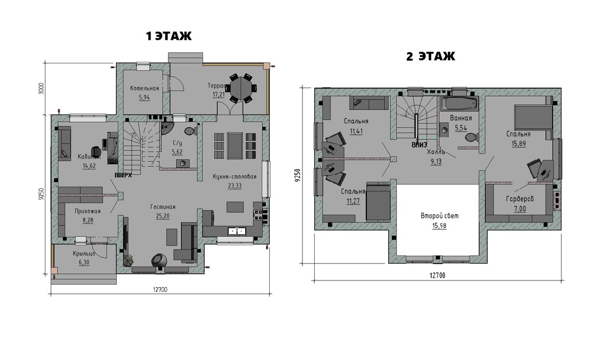
Планировка дома
Планировка дома

♻️Габаритные размеры 12,м-9,25м

⠀♻️Площадь застройки - 137м2

⠀♻️Общая площадь всех помещений -166м2

⠀♻️Жилая площадь - 130м2

⠀♻️Высота потолка - 3,0м, пристенок 2,0м.

⠀♻️Количество спален - 4 шт.

⠀♻️Количество сан.узов - 2 шт.

Проекты постоянно пополняю, ты там подпишись вдруг что вкатит,
и если шо я на связи ... +7-918-44-22-08 Вадим 🤝
Стоит глянуть еще на дом со всех ракурсов. ниже. Плюсик сердечко тоже ставь, мне приятно, тебе один клик.

-3
-4
-5
-6
-7
-8
-9
-10
-11

М2 – архитектурно строительное бюро

На сайте проект имеет номер ZV - 054

сайт: https://m2-23.ru\ - кликай на сайте еще больше проектов

М2 – архитектурно строительное бюро

instagram: @domproekt https://www.instagram.com/domproekt/

youtube: https://www.youtube.com/channel/UCuJVBu1fxnXXBWmR86yoJ9g

Почта: m2-23@yandex.ru

  • тел: 8-918-44-22-080 Вадим архитектор - пиши звони