Добавить в корзинуПозвонить
Найти в Дзене
Ромашковый сбор

Суровый интерьер с малахитовой кухней в Ростове-на-Дону

Квартира площадью 68 м² в Ростове-на-Дону по плану была трёшкой, но хозяева решили, что двух комнат им достаточно. В итоге получилось две с половиной: большая кухня-гостиная плюс спальня с примыкающей к ней малой гостиной. Раньше между этими двумя комнатами была полноценная глухая перегородка, теперь — раздвижная из перфорированного материала. Хозяева квартиры вообще не настаивали на межкомнатных дверях, но авторы проекта решили, что раздвижные перегородки сделают пространство более мобильным, а это всегда хорошо. Брутальный образ квартиры в каком-то смысле напрямую вытекает из стиля жизни заказчиков. У них два больших кота и небольшая собака, и присутствие в интерьере животных предполагало некоторую антивандальность отделки. При этом квартира — не единственное их жильё, что открыло простор для экспериментов. Алексей с гордостью рассказывает, что радикальный интерьер собран исключительно из натуральных материалов: на полу дерево и керамогранит, в отделке используется нержавеющая сталь
Оглавление

Ростовский архитектор Алексей Аладашвили и его команда никогда не злоупотребляли в своих проектах декоративностью, но тут у них получился прямо-таки манифест минимализма в самом суровом его воплощении.

Автор: Анастасия Ромашкевич. Фотограф: Инна Каблукова

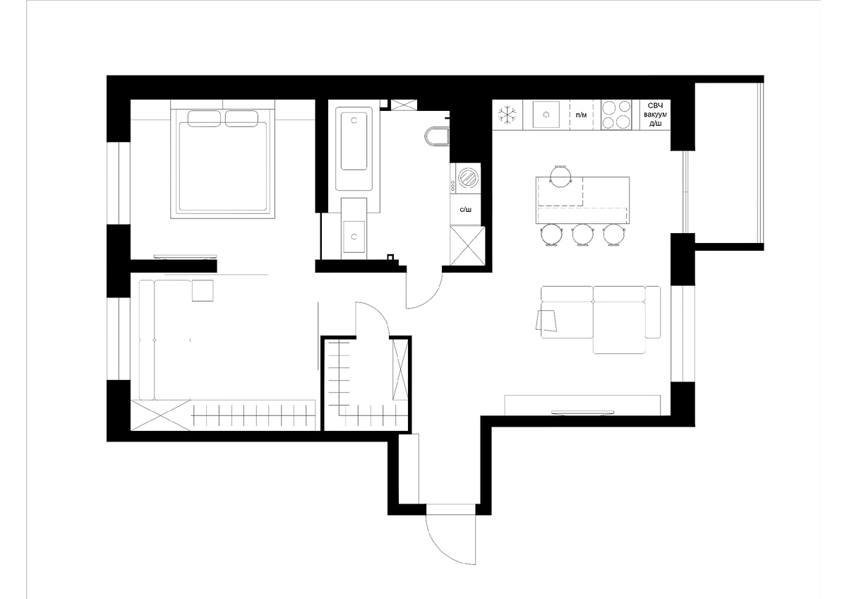
Планировка

Квартира площадью 68 м² в Ростове-на-Дону по плану была трёшкой, но хозяева решили, что двух комнат им достаточно. В итоге получилось две с половиной: большая кухня-гостиная плюс спальня с примыкающей к ней малой гостиной. Раньше между этими двумя комнатами была полноценная глухая перегородка, теперь — раздвижная из перфорированного материала.

Барные стулья сделаны на заказ. Кухонный остров — из мрамора.
Барные стулья сделаны на заказ. Кухонный остров — из мрамора.

Хозяева квартиры вообще не настаивали на межкомнатных дверях, но авторы проекта решили, что раздвижные перегородки сделают пространство более мобильным, а это всегда хорошо.

Материалы

Брутальный образ квартиры в каком-то смысле напрямую вытекает из стиля жизни заказчиков. У них два больших кота и небольшая собака, и присутствие в интерьере животных предполагало некоторую антивандальность отделки. При этом квартира — не единственное их жильё, что открыло простор для экспериментов.

Алексей с гордостью рассказывает, что радикальный интерьер собран исключительно из натуральных материалов: на полу дерево и керамогранит, в отделке используется нержавеющая сталь. Потолок оставили в первозданном бетонном виде, со всеми его сколами и потертостями. “Фактурные плиты отлично работают на контрасте с гладкими поверхностями пола и металлом в изголовье кровати”, — говорит архитектор.

Ну и главный герой интерьера — мрамор, расцветкой напоминающий малахит. Яркий и красивый камень выглядит на фоне брутальных материалов очень неожиданно. Между тем появление мрамора в интерьере тоже не случайность: заказчики хотели, чтобы в квартире обязательно было что-то зеленое.

Освещение

В квартире нет декоративного освещения в привычном понимании. Основной источник света — софиты под потолком. Но есть два необычных светящихся объекта. Один из них — гардеробная, стены которой сложены из матовых полупрозрачных блоков. Внутри — световой потолок, и эта комбинация превращает утилитарное помещение в самую яркую часть интерьера.

Кресло Cameleonda по дизайну Марио Беллини на фоне стены из стеклоблоков.
Кресло Cameleonda по дизайну Марио Беллини на фоне стены из стеклоблоков.

Второй сюрприз поджидает в ванной. Когда-то между этим помещением и соседней спальней был прямой проход. Алексей не стал его замуровывать, а закрыл проём полупрозрачным стеклом — получился великолепный светящийся фон для мраморного умывальника.

Связаться со студией Алексея Аладашвили можно через его сайт. Еще три интерьера для тех, кто любит минимализм: