Добавить в корзинуПозвонить
Найти в Дзене
ЭТО ВАШ ИНТЕРЬЕР

Я провела два часа, изучая фотографии этой прекрасной квартиры. Смотрите, как живут люди после ремонта

В сегодняшней статье речь пойдет о семье, состоящей из супружеской пары и двух детей. Младшая дочь — школьница, а старший сын уже поступил в институт. По сути, в квартире живет четыре взрослых человека со своими предпочтениями, вкусами и интересами. Поэтому для преображения старенького интерьера был приглашен профессиональный дизайнер — Кристина Мецкан, так как самостоятельно решить эту задачу супругам было не под силу. «Цель проекта — разработать практичное и комфортное пространство для семьи с двумя детьми, где каждый член семьи будет чувствовать себя комфортно и гармонично», — говорит Кристина. По итогу супруги выбрали стиль, который сочетает в себе современные тенденции и элементы классики. На полу в прихожей была уложена яркая узорчатая плитка. Стены были окрашены в голубой цвет, который плавно переходит на потолочные карнизы. С левой стороны от входной двери была установлена вместительная система хранения до самого потолка. Фасады представлены в двух вариантах: зеркальные и им
Оглавление

В сегодняшней статье речь пойдет о семье, состоящей из супружеской пары и двух детей. Младшая дочь — школьница, а старший сын уже поступил в институт. По сути, в квартире живет четыре взрослых человека со своими предпочтениями, вкусами и интересами.

Поэтому для преображения старенького интерьера был приглашен профессиональный дизайнер — Кристина Мецкан, так как самостоятельно решить эту задачу супругам было не под силу.

«Цель проекта — разработать практичное и комфортное пространство для семьи с двумя детьми, где каждый член семьи будет чувствовать себя комфортно и гармонично», — говорит Кристина. По итогу супруги выбрали стиль, который сочетает в себе современные тенденции и элементы классики.

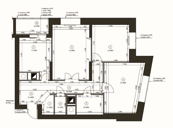
Проект

  • Местоположение: г. Москва
  • Площадь квартиры: 78 квадратных метров
  • Владельцы: семья из четырех человек

Прихожая

На полу в прихожей была уложена яркая узорчатая плитка. Стены были окрашены в голубой цвет, который плавно переходит на потолочные карнизы.

-3

С левой стороны от входной двери была установлена вместительная система хранения до самого потолка. Фасады представлены в двух вариантах: зеркальные и имитирующие поверхность из дерева.

Входная дверь была заменена на новую модель с зеркальным полотном. В прихожей так же нашлось место для компактной гардеробной неправильной формы.

-4

Кухня

Стены были окрашены в светлый оттенок. Напротив входа была организована столовая группа, декорированная красивой и яркой мебелью. В дополнение к оранжевым стульям был установлен удобный диван насыщенного синего цвета.

Стена за диваном была выбрана в качестве акцентной и оформлена итальянским керамогранитом.

Напротив обеденной зоны был установлен линейный гарнитур с фасадами сложного зелёного оттенка. Фартук был выполнен из того же керамогранита, которым была облицована акцентная стена. Холодильник остался прежним, так как он был совсем новым. Ближе ко входу на стене был размещён телевизор.

-7

Хозяйская спальня

В отделке стен использовали обои с имитацией бетонной поверхности. Напротив входа расположилась двуспальная кровать, стену за которой оформили искусственным камнем, напоминающий скалу.

Возле окна было организовано рабочее место, которое плавно переходит в небольшой комод. При входе в комнату расположился большой шкаф для хранения одежды.

-9

Спальня сына

Хозяин комнаты лично определял цветовую гамму для своей спальни. Акцентная стена декорирована дизайнерскими обоями, которые были сделаны на заказ. Оригинальным решением в комнате стал черный потолок. Такое оформление потолка придаёт комнате мужественности и создаёт ощущение бескрайнего ночного неба.

-10

В первоначальных планах обустройства комнаты было предусмотрено создание полноценного спального места. Однако в ходе ремонтных работ стало известно о скором переезде сына в другую квартиру.

-11

В связи с этим хозяева решили использовать комнату в качестве кабинета. Именно из-за этого стандартную кровать заменили на раскладной диван.

-12

Спальня дочери

Спальня для дочки получилась очень нежной и уютной. Справа от входа располагается большой гардероб, а слева организовали спальное место, которое можно зонировать светлой шторой.

У окна было организовано уютное место для релаксации, а вокруг него предусмотрели систему хранения для книг, декора и игрушек. В центре комнате находится рабочее место и туалетный столик.

Ванная комната

Для оформления ванной комнаты использовали керамогранит с имитацией мрамора и с имитацией дерева. Что касается пола, то здесь уложена плитка под бетон.

От классической ванны было решено отказаться в пользу душа. Благодаря этому здесь удалось сэкономить место и расположить постирочную зону со стиральной и сушильной машинками.

-16

Санузел

В отделке санузла использовали тот же керамогранит и ту же плитку, которую вы видели в ванной комнате. Помимо инсталляции с унитазом здесь удалось установить компактный рукомойник и шкаф с зеркалом. За деревянными дверцами скрывается доступ ко всем коммуникациям, а так же проточный водонагреватель.

-17

Если вам понравилась статья, то не забудьте поставить лайк и подписаться, чтобы не пропустить новый материал!

Так же пишите в комментариях, что вам понравилось в этом проекте, а что вызывает сомнения.