Найти в Дзене

Подъемник для перемещения грузов для склада в Санкт-Петербурге

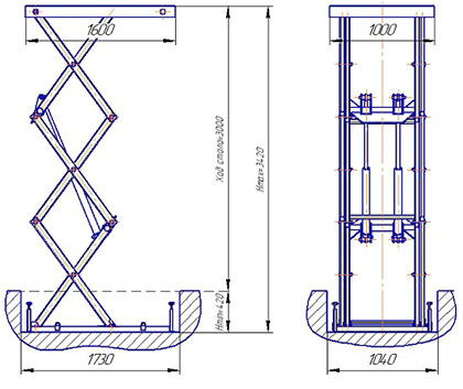
Грузовой подъемник для склада производства МЛС – гидравлический стол с тремя парами ножниц готов к монтажу на промышленном объекте в Санкт-Петербурге. Подъемный стол будет установлен между двух стеллажей в приямок. Задача грузового подъемника – вертикальное перемещение материалов из подвала на первый этаж цеха. Длина платформы подъемного стола составляет 1600мм, ширина – 1000мм, грузоподъемность – 1000кг, ход стола – 3000мм. Высота стола в сложенном состоянии составляет 420мм. Для обеспечения беспрепятственного съезда тележек с платформы, гидравлический стол будет установлен в приямок. Приямок – это специально подготовленная в полу ниша, глубина которой соответствует высоте ножничного стола в сложенном состоянии. Таким образом, платформа опущенного стола будет находиться на уровне пола. Такая конструкция позволяет избежать применения специальных погрузочных рамп, требующих много места для их размещения. Одним из ключевых направлений деятельности компании МЛС является изготовление подъе

Грузовой подъемник для склада производства МЛС – гидравлический стол с тремя парами ножниц готов к монтажу на промышленном объекте в Санкт-Петербурге.

Грузовой многоножничный подъемный стол
Грузовой многоножничный подъемный стол

Подъемный стол будет установлен между двух стеллажей в приямок. Задача грузового подъемника – вертикальное перемещение материалов из подвала на первый этаж цеха. Длина платформы подъемного стола составляет 1600мм, ширина – 1000мм, грузоподъемность – 1000кг, ход стола – 3000мм. Высота стола в сложенном состоянии составляет 420мм.

Для обеспечения беспрепятственного съезда тележек с платформы, гидравлический стол будет установлен в приямок. Приямок – это специально подготовленная в полу ниша, глубина которой соответствует высоте ножничного стола в сложенном состоянии. Таким образом, платформа опущенного стола будет находиться на уровне пола. Такая конструкция позволяет избежать применения специальных погрузочных рамп, требующих много места для их размещения. Одним из ключевых направлений деятельности компании МЛС является изготовление подъемных столов на заказ. При производстве подъемных столов используются лучшие материалы и электроника, применяются передовые европейские технологии.

Макет подъемного стола
Макет подъемного стола

Длина платформы 1600мм

Ширина платформы 1000мм

Грузоподъёмность 1000кг

Ход стола 3000мм

Минимальная высота 420мм

Время подъёма/опускания 50/50сек

Масса стола 800кг

Длина приямка 1730мм

Ширина приямка 1040мм

Глубина приямка 420мм

В верхней позиции остановка подъемного гидравлическо стола осуществляется на уровне пола первого этажа автоматически. Это происходит благодаря применению концевых выключателей. Помимо крайних положений, с помощью пульта управления, возможна остановка платформы на любой промежуточной высоте.

Данный грузовой подъемник, как и все столы производства МЛС снабжен механической кромкой безопасности по всему периметру столешницы. Кромка безопасности предотвращает защемление столом посторонних вещей при опускании столешницы.

Тестирование грузового подъемника перед монтажом на промышленном объекте

смотрите тут

Серийное производство гидравлических подъемных столов МЛС - аналогов Edmolift

Подъемное и погрузочно - разгрузочное оборудование для склада