Найти в Дзене
ЭТО ВАШ ИНТЕРЬЕР

Вот это я понимаю — ремонт! Мы с мужем после покупки устаревшей квартиры в старом фонде сразу её преобразили (Смотрите фото до и после)

Оглавление

Сегодня мы рассмотрим историю одной супружеской пары, которая решила вложить свои средства в инвестиционный проект, связанный с приобретением и последующей перепродажей недвижимости.

Выбор пары пал на трёхкомнатную квартиру в доме старого фонда, возведённом в 1959 году. В силу того, что ремонт в квартире не проводился в течение многих лет, супруги обратились к дизайнеру интерьеров — Юлии Гришиной, чтобы преобразить пространство.

Проект

  • Местоположение: г. Москва
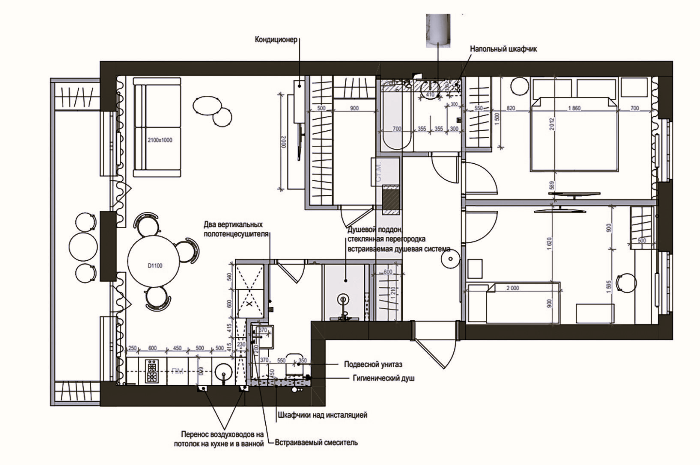
  • Площадь квартиры: 70 квадратных метров
  • Владельцы: супруги (квартира ремонтируется для перепродажи)
  • Бюджет: 3 000 000 рублей

Прихожая

Стены в прихожей выложили ламинатом в раскладке "елочка", а для стен выбрали моющуюся краску светлого оттенка. Дверной портал оформили под "дерево", и теперь он стал выразительным элементом в светлом пространстве.

-3

Слева от входа был установлен "парящий" шкаф, под которым организовали место для обуви. Фасады выполнены в свет стен, благодаря чему шкаф визуально не утяжеляет узкое пространство. Напротив мест хранения находится мягкий пуфик и большое зеркало в контрастной черной раме.

-4

В квартире установлены межкомнатные двери, которые выполнены с использованием технологии скрытого монтажа. Эти двери практически невидны, что позволяет сохранить целостность отделки и создать иллюзию расширения пространства.

Кухня-гостиная

По просьбе владельцев гостиную и кухню было решено объединить в одно большое пространство. С левой стороны располагается кухонная зона. Там, где раньше находился проход на кухню, теперь установлены функциональные пеналы с бытовой техникой (включая холодильник).

-5

Далее разместили линейный гарнитур с белоснежными фасадами. Что касается фасадов пеналов, то они имитируют деревянную поверхность. Столешница изготовлена из акрилового камня. Из этого же материала выполнен кухонный фартук.

Между кухней и гостиной была организована просторная обеденная группа с дизайнерской мебелью, которая приковывает к себе внимание.

-7

Далее располагается зона отдыха с элегантным и лаконичным диваном, который выполнен в приятном молочном оттенке. Напротив него поставили журнальный стильный столик и разместили "парящую" телевизионную тумбу в насыщенном черном цвете.

Стены помещения окрашены в белый и серый цвета, которые гармонично сочетаются между собой, а также дополнены молдингами, придающими интерьеру завершённость и изысканность.

Спальня

Слева от входа была сооружена специальная ниша, где был установлен встроенный шкаф до самого потолка. В центре помещения располагается серая кровать, изголовье которой имеет мягкую округлую форму.

-10

По обе стороны от спального места расположены прикроватные столики и осветительные приборы разного дизайна. Картина над кроватью специально смещена ближе к окну. Благодаря асимметричному расположению элементов, монохромный интерьер выглядит более оживлённым.

Вторая спальня осталась без мебели, поскольку было неясно, кто станет покупателем данной квартиры: семья с ребёнком или просто супружеская пара. Поэтому дизайнер решила оставить её пустой, предоставив будущим хозяевам возможность самостоятельно её обставить.

Санузел

Площадь санузла была расширена за счёт коридора, что позволило разместить не только унитаз и раковину, но и полноценную душевую.

В качестве отделки стен и пола был выбран крупноформатный керамогранит, дополненный деревянными элементами: подвесной тумбой и системой хранения над инсталляцией.

-13

Ванная комната

Отделка ванной комнаты так же выполнена керамогранитом. Небольшая раковина была заменена на более монументальную модель, которая придаёт пространству особую изысканность.

-14

Рядом с раковиной расположился деревянный пенал, скрывающий за своими дверцами стояки. Благодаря использованию чёрных элементов, пространство стало более графичным и динамичным.

-15

Если вам понравилась статья, то не забудьте поставить лайк и подписаться, чтобы не пропустить новый материал!

Так же пишите в комментариях, что вам понравилось в этом проекте, а что вызывает сомнения.