Добавить в корзинуПозвонить
Найти в Дзене
Татьяна SMART DESIGN

Выгодно ли покупать готовую квартиру с отделкой от застройщика?

Многие застройщики такие как ПИК, Самолет, ЛСР предлагают купить квартиру с отделкой. Я Татьяна Зотова, руководитель компании Smart Design, решила рассмотреть на примере наших проектов, насколько выгодно покупать такие квартиры и разобрать их плюсы и минусы. Плюсы квартир с готовой отделкой от застройщика: - экономия времени, не нужно ждать когда завершится ремонт, можно сразу заехать и жить; - экономия денег (не нужно снимать жилье, в ожидании окончания ремонта, экономия на черновых и чистовых работах строителей). Что представляет собой готовая отделка от застройщика в жилье комфорт класса? В квартирах с отделкой как правило поклеены белые обои под покраску, на полу стандартная плитка и ламинат. Потолок натяжной, с выводом под люстры и подсветку. Электрика проведена, стандартное количество розеток. В санузлах есть плитка, унитаз, ванна, раковина; установлены смесители. Минусы покупки квартиры с готовой отделкой: - Невозможно сделать перепланировку. Планировка от застройщи

Многие застройщики такие как ПИК, Самолет, ЛСР предлагают купить квартиру с отделкой.

Я Татьяна Зотова, руководитель компании Smart Design, решила рассмотреть на примере наших проектов, насколько выгодно покупать такие квартиры и разобрать их плюсы и минусы.

Плюсы квартир с готовой отделкой от застройщика:

- экономия времени, не нужно ждать когда завершится ремонт, можно сразу заехать и жить;

- экономия денег (не нужно снимать жилье, в ожидании окончания ремонта, экономия на черновых и чистовых работах строителей).

Что представляет собой готовая отделка от застройщика в жилье комфорт класса?

В квартирах с отделкой как правило поклеены белые обои под покраску, на полу стандартная плитка и ламинат. Потолок натяжной, с выводом под люстры и подсветку. Электрика проведена, стандартное количество розеток. В санузлах есть плитка, унитаз, ванна, раковина; установлены смесители.

Фото квартиры с отделкой от застройщика
Фото квартиры с отделкой от застройщика
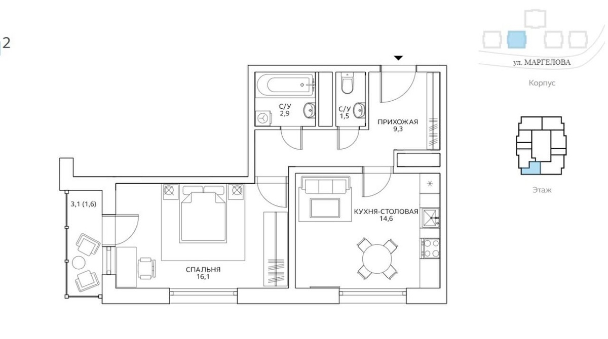
Планировка квартиры от застройщика
Планировка квартиры от застройщика

Минусы покупки квартиры с готовой отделкой:

- Невозможно сделать перепланировку. Планировка от застройщика должна вас полностью устраивать;

- Стандартная цветовая гамма: белые стены (под покраску), серая плитка на полу и стандартный ламинат;

- Самые простые, не всегда качественные отделочные материалы. К примеру, срок службы дверей, по отзывам наших заказчиков, 3 года;

- Стандартное расположение розеток. Скорее всего, будут провода и удлинители. Потому, что застройщик не знает, где у вас рабочий стол и телевизор в итоговом ремонте;

- Нет возможности встроить систему "умный дом";

- Потолки как правило натяжные и простое освещение. Нет возможности сделать сценарий света под себя.

- Нет возможности сделать приточно-вытяжную систему вентиляции.

Что можно сделать, чтобы квартира была индивидуальной?

- Покрасить стены, умело сочетая цвета.

ЖК Авиатика. Гостиная 14 м2. На этой площади мы разместили барную, столовую и зону гостиной
ЖК Авиатика. Гостиная 14 м2. На этой площади мы разместили барную, столовую и зону гостиной

- Использовать рейки на стенах, 3D панели (для красоты и чтобы скрыть провода при переносе розеток)

- Грамотно зонировать пространство мебелью

- В интерьере добавить индивидуальность с помощью произведений искусства. На примере нашего проекта в #ЖКАвиатика показываем, фото итоговой отделки от застройщика и итоговый результат после работы дизайнера.

ЖК Авиатика.Балкон 3,1м2.
ЖК Авиатика.Балкон 3,1м2.

А вы бы купили квартиру с ремонтом от застройщика?

Больше полезной информации по ремонту и дизайну квартир

в нашей группе ВК https://vk.com/public212847535?ysclid=m3wyslsl4o603140558

#студиядизайнататьянызотовой #ремонтвновостройке #квартирысотделкой #пик #лср #жкавиатика #чистоваяотделкаот застройщика